3119 Pinetree Street Port Charlotte, FL 33952
For Sale MLS# C7514762
2 beds 2 baths 1,604 sq ft Single Family
Details for 3119 Pinetree Street
MLS# C7514762
Description for 3119 Pinetree Street, Port Charlotte, FL, 33952
Welcome to 3119 Pinetree Street, a beautifully maintained 2-bedroom, 2-bathroom home with a 1-car garage in the heart of Port Charlotte. This residence combines comfort, style, and peace of mind with a host of modern upgrades and energy-efficient features. Step inside and you’ll find an inviting layout with tile flooring throughout, offering both durability and a clean, cohesive look. The kitchen is a true highlight, featuring sleek granite countertops that pair perfectly with the home’s modern touches. Both bathrooms have been tastefully updated, providing a fresh and contemporary feel. Major improvements have been thoughtfully completed, ensuring years of worry-free living. A new roof, hurricane-impact windows and exterior doors, an updated electrical panel, and a new hot water heater were all installed in 2017. In 2023, solar panels were added for energy efficiency, and in 2025, the home received a brand-new AC system and a new fence to enhance privacy and security. Outdoor living is just as appealing, with a screened lanai overlooking the fully fenced backyard—ideal for relaxing, entertaining, or enjoying Florida’s sunshine. A paver extension adds extra space for gatherings, grilling, or simply unwinding in your own private retreat. Perfectly located near shopping, dining, medical facilities, and Gulf Coast beaches, this home blends convenience with comfort. With its extensive updates and inviting design, 3119 Pinetree Street is ready to welcome its next owner.
Listing Information
Property Type: Residential, Single Family Residence
Status: Active
Bedrooms: 2
Bathrooms: 2
Lot Size: 0.23 Acres
Square Feet: 1,604 sq ft
Year Built: 1967
Garage: Yes
Stories: 1 Story
Construction: Block,Stucco
Subdivision: Port Charlotte Sec 005
Foundation: Slab
County: Charlotte
School Information
Elementary: Peace River Elementary
Middle: Murdock Middle
High: Port Charlotte High
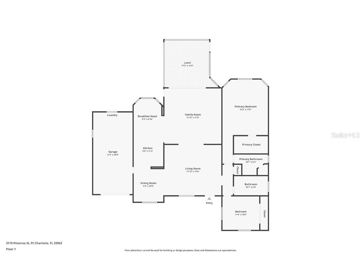
Room Information
Main Floor
Porch: 14.75x17
Living Room: 15.75x18
Bathroom 1: 6x10.5
Bedroom 1: 10.5x11.5
Primary Bathroom: 6.5x10.5
Primary Bedroom: 17.5x14
Dining Room: 10.75x9
Kitchen: 11x9
Dinette: 10x9
Family Room: 17.5x18
Bathrooms
Full Baths: 2
Additonal Room Information
Laundry: In Garage
Interior Features
Appliances: Dishwasher, Dryer, Microwave, Range, Refrigerator, Washer
Flooring: Tile
Additional Interior Features: Ceiling Fan(s), Living/Dining Room
Utilities
Water: Public
Sewer: Public Sewer
Other Utilities: High Speed Internet Available
Cooling: Ceiling Fan(s), Central Air
Heating: Central
Exterior / Lot Features
Attached Garage: Attached Garage
Garage Spaces: 1
Roof: Shingle
Additional Exterior/Lot Features: Rain Gutters
Driving Directions
From Port Charlotte, make your way to U.S. Highway 41 (Tamiami Trail) and head toward Port Charlotte Boulevard. Turn onto Port Charlotte Boulevard and continue west until you reach Center Avenue NW, where you’ll turn right. Follow Center Avenue NW, then make a right onto Pinetree Street. Your destination, 3119 Pinetree Street, will be on the left.
Financial Considerations
Terms: Cash,Conventional,FHA,VA Loan
Tax/Property ID: 402221209022
Tax Amount: 4148
Tax Year: 2024
A broker reciprocity listing courtesy: GRANT TEAM REAL ESTATE, LLC
Based on information provided by Stellar MLS as distributed by the MLS GRID. Information from the Internet Data Exchange is provided exclusively for consumers’ personal, non-commercial use, and such information may not be used for any purpose other than to identify prospective properties consumers may be interested in purchasing. This data is deemed reliable but is not guaranteed to be accurate by Edina Realty, Inc., or by the MLS. Edina Realty, Inc., is not a multiple listing service (MLS), nor does it offer MLS access.
Copyright 2025 Stellar MLS as distributed by the MLS GRID. All Rights Reserved.
Payment Calculator
Interest rate and annual percentage rate (APR) are based on current market conditions, are for informational purposes only, are subject to change without notice and may be subject to pricing add-ons related to property type, loan amount, loan-to-value, credit score and other variables. Estimated closing costs used in the APR calculation are assumed to be paid by the borrower at closing. If the closing costs are financed, the loan, APR and payment amounts will be higher. If the down payment is less than 20%, mortgage insurance may be required and could increase the monthly payment and APR. Contact us for details. Additional loan programs may be available. Accuracy is not guaranteed, and all products may not be available in all borrower's geographical areas and are based on their individual situation. This is not a credit decision or a commitment to lend.
Sales History & Tax Summary for 3119 Pinetree Street
Sales History
| Date | Price | Change |
|---|---|---|
| Currently not available. | ||
Tax Summary
| Tax Year | Estimated Market Value | Total Tax |
|---|---|---|
| Currently not available. | ||
Data powered by ATTOM Data Solutions. Copyright© 2025. Information deemed reliable but not guaranteed.
Schools
Schools nearby 3119 Pinetree Street
| Schools in attendance boundaries | Grades | Distance | Rating |
|---|---|---|---|
| Loading... | |||
| Schools nearby | Grades | Distance | Rating |
|---|---|---|---|
| Loading... | |||
Data powered by ATTOM Data Solutions. Copyright© 2025. Information deemed reliable but not guaranteed.
The schools shown represent both the assigned schools and schools by distance based on local school and district attendance boundaries. Attendance boundaries change based on various factors and proximity does not guarantee enrollment eligibility. Please consult your real estate agent and/or the school district to confirm the schools this property is zoned to attend. Information is deemed reliable but not guaranteed.
SchoolDigger ® Rating
The SchoolDigger rating system is a 1-5 scale with 5 as the highest rating. SchoolDigger ranks schools based on test scores supplied by each state's Department of Education. They calculate an average standard score by normalizing and averaging each school's test scores across all tests and grades.
Coming soon properties will soon be on the market, but are not yet available for showings.