312 Dunlawton Avenue Port Orange, FL 32127
For Sale MLS# NS1085397
1 beds 1 baths 480 sq ft Single Family
Details for 312 Dunlawton Avenue
MLS# NS1085397
Description for 312 Dunlawton Avenue, Port Orange, FL, 32127
Discover this beautifully maintained 1-bedroom, 1-bathroom home nestled in the heart of Port Orange, Florida. This home offers a cozy and quiet retreat with timeless historic charm, perfect for those seeking a unique property full of character. Conveniently located near Beaches, Shopping, Restaurants & Entertainment, this home places you minutes from the best of coastal living on Florida’s east coast. The property offers excellent potential as a rental investment, appealing to buyers looking for a vacation home, seasonal residence, or income property in a highly desirable area. Enjoy the lovely garden area ideal for relaxing, reading, or entertaining outdoors. The attached garage presents exciting options for conversion into additional living space, guest suite, or home office, adding valuable flexibility and potential equity to the home. No HOA, providing freedom for your personal touches or investment goals. Do not miss this opportunity to own a piece of Port Orange real estate combining historic appeal, coastal lifestyle, and excellent investment potential!
Listing Information
Property Type: Residential, Single Family Residence
Status: Active
Bedrooms: 1
Bathrooms: 1
Lot Size: 0.17 Acres
Square Feet: 480 sq ft
Year Built: 1949
Garage: Yes
Stories: 2 Story
Construction: Block,Stucco
Subdivision: Dagwood Acres
Foundation: Block
County: Volusia
School Information
Elementary: Port Orange Elem
Middle: Silver Sands Middle
High: Spruce Creek High School
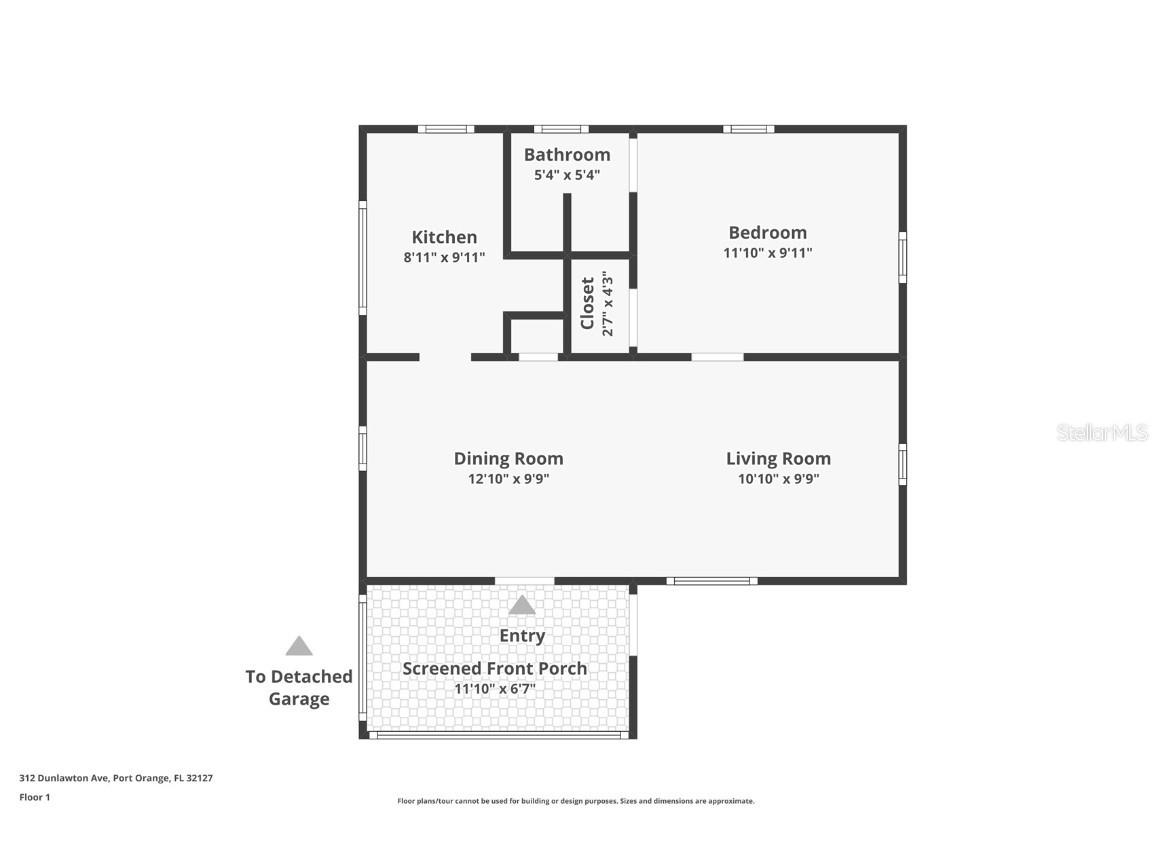
Room Information
Upper Floor
Porch: 12x6
Living Room: 23x9.5
Kitchen: 9.5x6
Primary Bedroom: 9.5x11.5
Bathrooms
Full Baths: 1
Additonal Room Information
Laundry: In Garage
Interior Features
Appliances: Electric Water Heater, Microwave, Range, Refrigerator
Flooring: Concrete,Wood
Doors/Windows: Blinds
Additional Interior Features: Ceiling Fan(s)
Utilities
Water: Public
Sewer: Public Sewer
Other Utilities: Electricity Available
Cooling: Ductless, Ceiling Fan(s)
Heating: Other, Window Unit, Wall Furnace
Exterior / Lot Features
Attached Garage: Attached Garage
Garage Spaces: 2
Roof: Shingle
Lot View: Garden
Lot Dimensions: 54x137
Fencing: fenced
Additional Exterior/Lot Features: Balcony, Balcony, Covered, Front Porch, Landscaped, City Lot
Driving Directions
Going east on Dunlawton Ave, continue past railroad tracks and Port Orange Elementary. Property is on the right side
Financial Considerations
Terms: Cash,Conventional
Tax/Property ID: 63-03-11-08-0054
Tax Amount: 2465
Tax Year: 2024
A broker reciprocity listing courtesy: CENTURY 21 ALTON CLARK
Based on information provided by Stellar MLS as distributed by the MLS GRID. Information from the Internet Data Exchange is provided exclusively for consumers’ personal, non-commercial use, and such information may not be used for any purpose other than to identify prospective properties consumers may be interested in purchasing. This data is deemed reliable but is not guaranteed to be accurate by Edina Realty, Inc., or by the MLS. Edina Realty, Inc., is not a multiple listing service (MLS), nor does it offer MLS access.
Copyright 2026 Stellar MLS as distributed by the MLS GRID. All Rights Reserved.
Payment Calculator
Interest rate and annual percentage rate (APR) are based on current market conditions, are for informational purposes only, are subject to change without notice and may be subject to pricing add-ons related to property type, loan amount, loan-to-value, credit score and other variables. Estimated closing costs used in the APR calculation are assumed to be paid by the borrower at closing. If the closing costs are financed, the loan, APR and payment amounts will be higher. If the down payment is less than 20%, mortgage insurance may be required and could increase the monthly payment and APR. Contact us for details. Additional loan programs may be available. Accuracy is not guaranteed, and all products may not be available in all borrower's geographical areas and are based on their individual situation. This is not a credit decision or a commitment to lend.
Sales History & Tax Summary for 312 Dunlawton Avenue
Sales History
| Date | Price | |
|---|---|---|
| Currently not available. | ||
Tax Summary
| Tax Year | Estimated Market Value | Total Tax |
|---|---|---|
| Currently not available. | ||
Data powered by ATTOM Data Solutions. Copyright© 2026. Information deemed reliable but not guaranteed.
Schools
Schools nearby 312 Dunlawton Avenue
| Schools in attendance boundaries | Grades | Distance | Rating |
|---|---|---|---|
| Loading... | |||
| Schools nearby | Grades | Distance | Rating |
|---|---|---|---|
| Loading... | |||
Data powered by ATTOM Data Solutions. Copyright© 2026. Information deemed reliable but not guaranteed.
The schools shown represent both the assigned schools and schools by distance based on local school and district attendance boundaries. Attendance boundaries change based on various factors and proximity does not guarantee enrollment eligibility. Please consult your real estate agent and/or the school district to confirm the schools this property is zoned to attend. Information is deemed reliable but not guaranteed.
SchoolDigger ® Rating
The SchoolDigger rating system is a 1-5 scale with 5 as the highest rating. SchoolDigger ranks schools based on test scores supplied by each state's Department of Education. They calculate an average standard score by normalizing and averaging each school's test scores across all tests and grades.
Coming soon properties will soon be on the market, but are not yet available for showings.