312 Progress Avenue Lehigh Acres, FL 33974
For Sale MLS# TB8436549
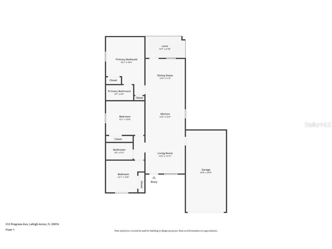
3 beds 2 baths 1,130 sq ft Single Family
Details for 312 Progress Avenue
MLS# TB8436549
Description for 312 Progress Avenue, Lehigh Acres, FL, 33974
Luxury is the best way to describe this beautiful BRAND NEW 2025 home. 3 bedrooms 2 bathrooms home with a 1 car garage. Kitchen and bathrooms have granite counter tops, Main bathroom has shower only 2nd bathroom has tub shower combination. Epoxied Garage floor is ready for all your toys, long driveway can accommodate several cars. Lanai/patio floor is nicely tiled. Property has sprinklers throughout to keep your plants and grass perfectly green throughout the year.
Listing Information
Property Type: Residential, Single Family Residence
Status: Active
Bedrooms: 3
Bathrooms: 2
Lot Size: 0.24 Acres
Square Feet: 1,130 sq ft
Year Built: 2025
Garage: Yes
Stories: 1 Story
Construction: Block
Construction Display: New Construction
Subdivision: Southwood
Foundation: Slab
County: Lee
Construction Status: New Construction
Room Information
Main Floor
Primary Bedroom:
Bathroom 2:
Dining Room:
Living Room:
Kitchen:
Bathroom 1:
Bathrooms
Full Baths: 2
Additonal Room Information
Laundry: Laundry Room
Interior Features
Appliances: Range, Refrigerator, Dishwasher, Electric Water Heater
Flooring: Tile
Additional Interior Features: High Ceilings, Open Floorplan, Kitchen/Family Room Combo
Utilities
Water: Private
Sewer: Septic Tank
Other Utilities: Cable Available,Electricity Connected,Water Connected
Cooling: Central Air
Heating: Electric, Central
Exterior / Lot Features
Attached Garage: Attached Garage
Garage Spaces: 2
Roof: Shingle
Additional Exterior/Lot Features: Rain Gutters, Sprinkler/Irrigation
Driving Directions
gps
Financial Considerations
Terms: Cash,Conventional,FHA,VA Loan
Tax/Property ID: 08-45-27-L1-29155.0190
Tax Amount: 436.7
Tax Year: 2024
A broker reciprocity listing courtesy: SOUTHERN LUXURY REALTY, LLC
Based on information provided by Stellar MLS as distributed by the MLS GRID. Information from the Internet Data Exchange is provided exclusively for consumers’ personal, non-commercial use, and such information may not be used for any purpose other than to identify prospective properties consumers may be interested in purchasing. This data is deemed reliable but is not guaranteed to be accurate by Edina Realty, Inc., or by the MLS. Edina Realty, Inc., is not a multiple listing service (MLS), nor does it offer MLS access.
Copyright 2026 Stellar MLS as distributed by the MLS GRID. All Rights Reserved.
Payment Calculator
Interest rate and annual percentage rate (APR) are based on current market conditions, are for informational purposes only, are subject to change without notice and may be subject to pricing add-ons related to property type, loan amount, loan-to-value, credit score and other variables. Estimated closing costs used in the APR calculation are assumed to be paid by the borrower at closing. If the closing costs are financed, the loan, APR and payment amounts will be higher. If the down payment is less than 20%, mortgage insurance may be required and could increase the monthly payment and APR. Contact us for details. Additional loan programs may be available. Accuracy is not guaranteed, and all products may not be available in all borrower's geographical areas and are based on their individual situation. This is not a credit decision or a commitment to lend.
Sales History & Tax Summary for 312 Progress Avenue
Sales History
| Date | Price | Change |
|---|---|---|
| Currently not available. | ||
Tax Summary
| Tax Year | Estimated Market Value | Total Tax |
|---|---|---|
| Currently not available. | ||
Data powered by ATTOM Data Solutions. Copyright© 2026. Information deemed reliable but not guaranteed.
Schools
Schools nearby 312 Progress Avenue
| Schools in attendance boundaries | Grades | Distance | Rating |
|---|---|---|---|
| Loading... | |||
| Schools nearby | Grades | Distance | Rating |
|---|---|---|---|
| Loading... | |||
Data powered by ATTOM Data Solutions. Copyright© 2026. Information deemed reliable but not guaranteed.
The schools shown represent both the assigned schools and schools by distance based on local school and district attendance boundaries. Attendance boundaries change based on various factors and proximity does not guarantee enrollment eligibility. Please consult your real estate agent and/or the school district to confirm the schools this property is zoned to attend. Information is deemed reliable but not guaranteed.
SchoolDigger ® Rating
The SchoolDigger rating system is a 1-5 scale with 5 as the highest rating. SchoolDigger ranks schools based on test scores supplied by each state's Department of Education. They calculate an average standard score by normalizing and averaging each school's test scores across all tests and grades.
Coming soon properties will soon be on the market, but are not yet available for showings.