3123 W La Salle Street Tampa, FL 33607
For Sale MLS# TB8450611
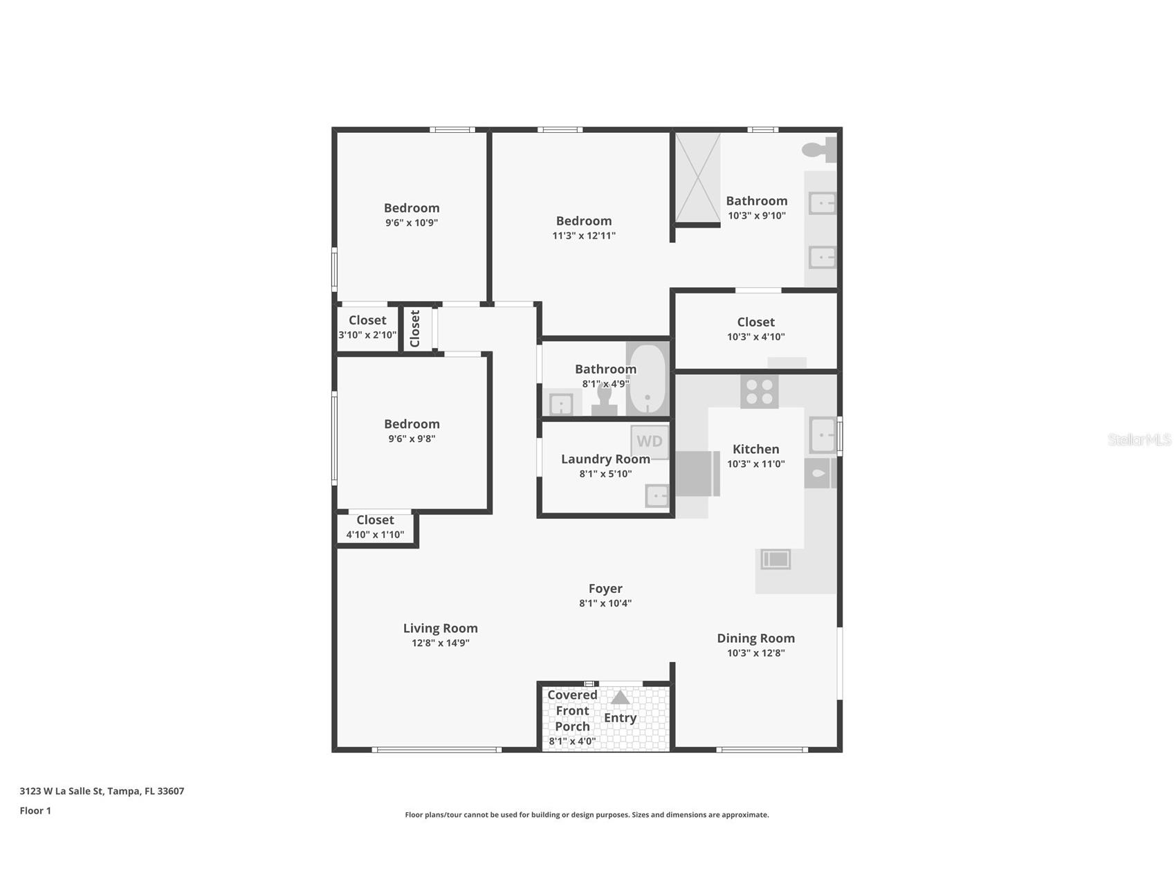
3 beds 2 baths 1,396 sq ft Single Family
OPEN HOUSE: Sunday, 5/3 12:00 PM - 03:00 PM
Details for 3123 W La Salle Street
MLS# TB8450611
Description for 3123 W La Salle Street, Tampa, FL, 33607
Stunning gem completely remodeled. All new electrical, duct work and vents, new plumbing. Walls moved and rebuilt, Level 5 drywall finish, all new shaker style doors and baseboards, tankless hot water installed, laundry tub, just to name a few. Exterior has a brand new 50-year steel roof, new impact french doors and impact front door. Impact windows, cedar accents, aluminum covered eaves and soffits, all for worry free maintenance for years to come. This re-imagined and totally updated home will not disappoint. The kitchen has white shaker cabinets with crown molding and light rails as well as under counter lighting. Countertops are quartz with waterfall over the peninsula. Your counters will be clutter free because the range has a built in air fryer and there’s a microwave drawer in the peninsula. The master bath has been beautifully updated with herringbone tile floors, walk-in shower and white shaker cabinets with lots of storage and quartz countertops. The walk-in closet is 10’ wide with closet organizer.The second bath also has white shaker cabinets with quartz countertops. The main living areas have new Coretec waterproof luxury vinyl. The retaining wall from the 1920s has been reinforced with rebar and concrete, and broken portions replaced. The spacious back yard is completely fenced and has double gates which open to a former alleyway so you can bring you boat, build an office with private access, or build a pool. An irrigation system has been added. This home embraces the Tampa of the 20s with the wall and it's location next to the brick paved dead end street, the nostalgia of the 70s and the modern comforts and conveniences of a new build. Not only is it just a short walking distance to McFarlane Park, but it's just minutes away from I275, International Mall and Tampa International Airport as well as Tampa's amazing Riverwalk, Cultural Centers, Raymond James Stadium and Benchmark International Area. Compare with newbuilds in the area and be prepared to be wowed.
Listing Information
Property Type: Residential, Single Family Residence
Status: Active
Bedrooms: 3
Bathrooms: 2
Lot Size: 0.14 Acres
Square Feet: 1,396 sq ft
Year Built: 1971
Stories: 1 Story
Construction: Block,Stucco,Wood Frame
Subdivision: Mac Farlane Park
Foundation: Slab
County: Hillsborough
School Information
Elementary: West Tampa-Hb
Middle: Madison-Hb
High: Jefferson
Room Information
Main Floor
Bathroom 3: 10x10
Bathroom 2: 10x11
Primary Bedroom: 14x13
Living Room: 13x15
Dinette: 11x11
Kitchen: 11x15
Bathrooms
Full Baths: 2
Additonal Room Information
Laundry: Washer Hookup, Laundry Room, Electric Dryer Hookup
Interior Features
Appliances: Exhaust Fan, Tankless Water Heater, Washer, Range Hood, Dishwasher, Disposal, Dryer, Microwave, Range, Refrigerator
Flooring: Luxury Vinyl,Tile
Doors/Windows: Window Treatments, ENERGY STAR Qualified Windows
Additional Interior Features: Ceiling Fan(s), Walk-In Closet(s), Window Treatments, Main Level Primary, Open Floorplan, Solid Surface Counters
Utilities
Water: Public
Sewer: Public Sewer
Other Utilities: High Speed Internet Available,Municipal Utilities
Cooling: Central Air, Ceiling Fan(s)
Heating: Electric, Central
Exterior / Lot Features
Roof: Metal
Lot Dimensions: 52x115
Additional Exterior/Lot Features: Private Yard, Sprinkler/Irrigation, French Patio Doors, Lighting
Community Features
Community Features: Sidewalks
Driving Directions
From Kennedy Boulevard, North on MacDill to Left on La Salle Street.
Financial Considerations
Terms: Cash,Conventional,FHA,VA Loan
Tax/Property ID: A-15-29-18-4PV-000001-00013.0
Tax Amount: 706.34
Tax Year: 2024
A broker reciprocity listing courtesy: RE/MAX REALTY UNLIMITED
Based on information provided by Stellar MLS as distributed by the MLS GRID. Information from the Internet Data Exchange is provided exclusively for consumers’ personal, non-commercial use, and such information may not be used for any purpose other than to identify prospective properties consumers may be interested in purchasing. This data is deemed reliable but is not guaranteed to be accurate by Edina Realty, Inc., or by the MLS. Edina Realty, Inc., is not a multiple listing service (MLS), nor does it offer MLS access.
Copyright 2026 Stellar MLS as distributed by the MLS GRID. All Rights Reserved.
Payment Calculator
Interest rate and annual percentage rate (APR) are based on current market conditions, are for informational purposes only, are subject to change without notice and may be subject to pricing add-ons related to property type, loan amount, loan-to-value, credit score and other variables. Estimated closing costs used in the APR calculation are assumed to be paid by the borrower at closing. If the closing costs are financed, the loan, APR and payment amounts will be higher. If the down payment is less than 20%, mortgage insurance may be required and could increase the monthly payment and APR. Contact us for details. Additional loan programs may be available. Accuracy is not guaranteed, and all products may not be available in all borrower's geographical areas and are based on their individual situation. This is not a credit decision or a commitment to lend.
Sales History & Tax Summary for 3123 W La Salle Street
Sales History
| Date | Price | |
|---|---|---|
| Currently not available. | ||
Tax Summary
| Tax Year | Estimated Market Value | Total Tax |
|---|---|---|
| Currently not available. | ||
Data powered by ATTOM Data Solutions. Copyright© 2026. Information deemed reliable but not guaranteed.
Schools
Schools nearby 3123 W La Salle Street
| Schools in attendance boundaries | Grades | Distance | Rating |
|---|---|---|---|
| Loading... | |||
| Schools nearby | Grades | Distance | Rating |
|---|---|---|---|
| Loading... | |||
Data powered by ATTOM Data Solutions. Copyright© 2026. Information deemed reliable but not guaranteed.
The schools shown represent both the assigned schools and schools by distance based on local school and district attendance boundaries. Attendance boundaries change based on various factors and proximity does not guarantee enrollment eligibility. Please consult your real estate agent and/or the school district to confirm the schools this property is zoned to attend. Information is deemed reliable but not guaranteed.
SchoolDigger ® Rating
The SchoolDigger rating system is a 1-5 scale with 5 as the highest rating. SchoolDigger ranks schools based on test scores supplied by each state's Department of Education. They calculate an average standard score by normalizing and averaging each school's test scores across all tests and grades.
Coming soon properties will soon be on the market, but are not yet available for showings.