31276 Paper Birch Street Wesley Chapel, FL 33545
For Sale MLS# TB8374773
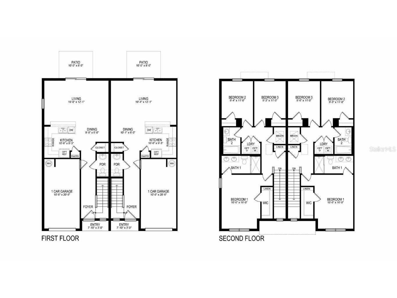
3 beds 3 baths 1,463 sq ft Townhouse/Twinhome
Details for 31276 Paper Birch Street
MLS# TB8374773
Description for 31276 Paper Birch Street, Wesley Chapel, FL, 33545
Under Construction. The builder is offering buyers up to $25,000 towards closing costs with the use of a preferred lender and title company. Woodsdale is situated with quick access to I-75 and in a prime location of the booming city, which was recently named by the North Tampa Bay Chambers of Commerce as the region’s most desirable location in the Tampa suburbs. Close to all things shopping, dining, entertainment, and not to mention the area’s top-rated local and charter schools, this community offers you endless opportunities. Each home is constructed with concrete block on 1st and 2nd stories, comes equipped with D.R. Horton’s Smart Home System, and is backed by America’s #1 Builder since 2002. Pictures, photographs, colors, features, and sizes are for illustration purposes only and will vary from the homes as built. Home and community information, including pricing, included features, terms, availability, and amenities, are subject to change and prior sale at any time without notice or obligation. Materials may vary based on availability. D.R. Horton Reserves all Rights.
Listing Information
Property Type: Residential, Townhouse
Status: Active
Bedrooms: 3
Bathrooms: 3
Square Feet: 1,463 sq ft
Year Built: 2025
Garage: Yes
Stories: 2 Story
Construction: Block,Stucco
Construction Display: New Construction
Subdivision: Towns At Woodsdale
Builder: D.R. Horton
Foundation: Slab
County: Pasco
Construction Status: Under Construction
School Information
Elementary: Wesley Chapel Elementary-Po
Middle: Thomas E Weightman Middle-Po
High: Wesley Chapel High-Po
Room Information
Main Floor
Kitchen: 9x10
Great Room: 12x19
Upper Floor
Primary Bedroom: 16x11
Bathrooms
Full Baths: 2
1/2 Baths: 1
Additonal Room Information
Laundry: Laundry Room
Interior Features
Appliances: Electric Water Heater, Dishwasher, Microwave, Refrigerator, Washer
Flooring: Carpet,Ceramic Tile
Doors/Windows: Low-Emissivity Windows, Blinds, Double Pane Windows
Additional Interior Features: Open Floorplan
Utilities
Water: Public
Sewer: Public Sewer
Other Utilities: Municipal Utilities
Cooling: Central Air
Heating: Central, Heat Pump
Exterior / Lot Features
Attached Garage: Attached Garage
Garage Spaces: 1
Parking Description: Parking Pad
Roof: Shingle
Pool: Community, Association
Additional Exterior/Lot Features: Sprinkler/Irrigation
Community Features
Community Features: Pool, Playground, Park
Association Amenities: Playground, Pool, Clubhouse
HOA Dues Include: Maintenance Grounds
Homeowners Association: Yes
HOA Dues: $61 / Monthly
Driving Directions
Via I-75, take Exit 282 toward Overpass Rd. Turn right onto Boyette Rd, Boyette turns right and become Elam Rd. Turn left on to Majestic Woodland Blvd. Turn right onto Ancient Sage Rd. Destination will be on your right.
Financial Considerations
Tax/Property ID: 27-25-20-0230-01500-1440
Tax Year: 2025
A broker reciprocity listing courtesy: D R HORTON REALTY OF TAMPA LLC
Based on information provided by Stellar MLS as distributed by the MLS GRID. Information from the Internet Data Exchange is provided exclusively for consumers’ personal, non-commercial use, and such information may not be used for any purpose other than to identify prospective properties consumers may be interested in purchasing. This data is deemed reliable but is not guaranteed to be accurate by Edina Realty, Inc., or by the MLS. Edina Realty, Inc., is not a multiple listing service (MLS), nor does it offer MLS access.
Copyright 2025 Stellar MLS as distributed by the MLS GRID. All Rights Reserved.
Payment Calculator
Interest rate and annual percentage rate (APR) are based on current market conditions, are for informational purposes only, are subject to change without notice and may be subject to pricing add-ons related to property type, loan amount, loan-to-value, credit score and other variables. Estimated closing costs used in the APR calculation are assumed to be paid by the borrower at closing. If the closing costs are financed, the loan, APR and payment amounts will be higher. If the down payment is less than 20%, mortgage insurance may be required and could increase the monthly payment and APR. Contact us for details. Additional loan programs may be available. Accuracy is not guaranteed, and all products may not be available in all borrower's geographical areas and are based on their individual situation. This is not a credit decision or a commitment to lend.
Sales History & Tax Summary for 31276 Paper Birch Street
Sales History
| Date | Price | Change |
|---|---|---|
| Currently not available. | ||
Tax Summary
| Tax Year | Estimated Market Value | Total Tax |
|---|---|---|
| Currently not available. | ||
Data powered by ATTOM Data Solutions. Copyright© 2025. Information deemed reliable but not guaranteed.
Schools
Schools nearby 31276 Paper Birch Street
| Schools in attendance boundaries | Grades | Distance | Rating |
|---|---|---|---|
| Loading... | |||
| Schools nearby | Grades | Distance | Rating |
|---|---|---|---|
| Loading... | |||
Data powered by ATTOM Data Solutions. Copyright© 2025. Information deemed reliable but not guaranteed.
The schools shown represent both the assigned schools and schools by distance based on local school and district attendance boundaries. Attendance boundaries change based on various factors and proximity does not guarantee enrollment eligibility. Please consult your real estate agent and/or the school district to confirm the schools this property is zoned to attend. Information is deemed reliable but not guaranteed.
SchoolDigger ® Rating
The SchoolDigger rating system is a 1-5 scale with 5 as the highest rating. SchoolDigger ranks schools based on test scores supplied by each state's Department of Education. They calculate an average standard score by normalizing and averaging each school's test scores across all tests and grades.
Coming soon properties will soon be on the market, but are not yet available for showings.