3129 Holmes Avenue S Minneapolis, MN 55408
Pending MLS# 6751513
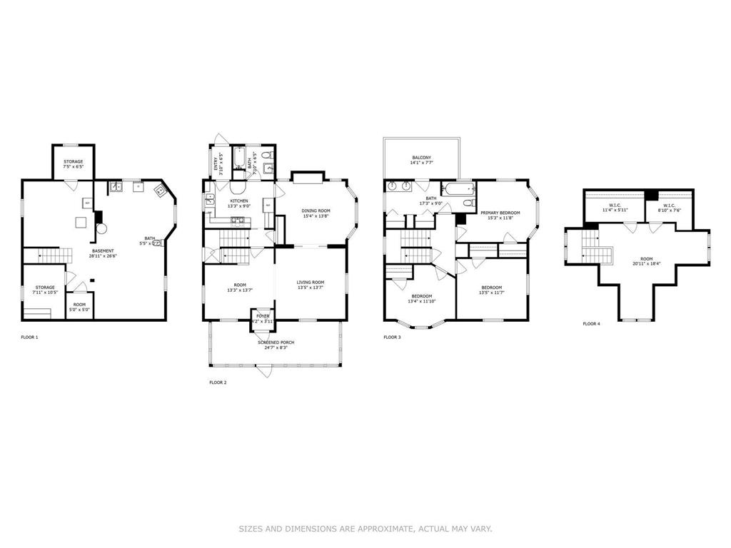
4 beds 2 baths 2,479 sq ft Single Family
Details for 3129 Holmes Avenue S
MLS# 6751513
Description for 3129 Holmes Avenue S, Minneapolis, MN, 55408
Welcome to an Uptown classic reimagined for modern living. Step through the freshly repainted front door and into sun-soaked rooms filled with original woodwork, character, and warmth. A gorgeous built-in buffet anchors the main level, while bay windows brighten the living and dining spaces with natural light.The updated kitchen blends timeless charm with everyday functionality, featuring modern appliances and thoughtful finishes. Upstairs, a beautifully redesigned bathroom delivers a spa-like experience, expanded by incorporating a former bedroom—now complete with access to a private balcony ideal for morning coffee or evening relaxation.The top floor offers a hidden getaway wrapped in rich wood paneling—perfect as a fourth bedroom, creative studio, lounge, or office. Virtual staging pictures give your imagination a starting point. Lower level unfinished with a non-conforming lbathroom adds convenience and future potential.Outside, enjoy a landscaped backyard designed for gatherings, plus a rare 2.5-car garage with a deep driveway—an Uptown luxury. With lakes, dining, shopping, and culture just steps away, this home delivers both comfort and lifestyle.A move-in-ready gem with history, charm, and modern updates—don’t miss it.
Listing Information
Property Type: Residential, Single Family
Status: Pending
Bedrooms: 4
Bathrooms: 2
Lot Size: 0.13 Acres
Square Feet: 2,479 sq ft
Year Built: 1909
Foundation: 798 sq ft
Garage: Yes
Stories: 2 Stories
Subdivision: Calhoun Park
County: Hennepin
Days On Market: 159
Construction Status: Previously Owned
School Information
District: 1 - Minneapolis
Room Information
Main Floor
Dining Room: 15x14
Kitchen: 13x9
Living Room: 14x13
Screened Porch: 25x8
Sitting Room: 13x14
Upper Floor
Bedroom 1: 15x12
Bedroom 2: 14x12
Bedroom 3: 13x12
Bathrooms
Full Baths: 2
Additonal Room Information
Other: Bedroom 4 (21x18)
Dining: Separate/Formal Dining Room
Laundry: Lower Level
Bath Description: 1/2 Basement,Basement,Main Floor Full Bath,Upper Level Full Bath
Interior Features
Square Footage above: 2,479 sq ft
Appliances: Gas Water Heater, Washer, Exhaust Fan/Hood, Refrigerator, Microwave, Dishwasher, Disposal, Dryer, Cooktop
Basement: Unfinished
Additional Interior Features: Kitchen Window, Hardwood Floors, Ceiling Fan(s), 3 BR on One Level
Utilities
Water: City Water/Connected
Sewer: City Sewer/Connected
Cooling: Ductless Mini-Split
Heating: Hot Water, Baseboard, Boiler, Natural Gas
Exterior / Lot Features
Garage Spaces: 2
Parking Description: Detached Garage, Garage Door Opener, Garage Sq Ft - 0.00
Exterior: Wood
Roof: Age 8 Years or Less
Lot Dimensions: 46x127
Zoning: Residential-Single Family
Fencing: Wood, Full
Additional Exterior/Lot Features: Patio, Porch, Tree Coverage - Medium, Public Transit (w/in 6 blks)
Driving Directions
Lake to Holmes to home.
Financial Considerations
Tax/Property ID: 0402824210176
Tax Amount: 9103
Tax Year: 2025
HomeStead Description: Homesteaded
A broker reciprocity listing courtesy: Coldwell Banker Realty - Lakes
The data relating to real estate for sale on this web site comes in part from the Broker Reciprocity℠ Program of the Regional Multiple Listing Service of Minnesota, Inc. Real estate listings held by brokerage firms other than Edina Realty, Inc. are marked with the Broker Reciprocity℠ logo or the Broker Reciprocity℠ thumbnail and detailed information about them includes the name of the listing brokers. Edina Realty, Inc. is not a Multiple Listing Service (MLS), nor does it offer MLS access. This website is a service of Edina Realty, Inc., a broker Participant of the Regional Multiple Listing Service of Minnesota, Inc. IDX information is provided exclusively for consumers personal, non-commercial use and may not be used for any purpose other than to identify prospective properties consumers may be interested in purchasing. Open House information is subject to change without notice. Information deemed reliable but not guaranteed.
Copyright 2026 Regional Multiple Listing Service of Minnesota, Inc. All Rights Reserved.
Sales History & Tax Summary for 3129 Holmes Avenue S
Sales History
| Date | Price | |
|---|---|---|
| Currently not available. | ||
Tax Summary
| Tax Year | Estimated Market Value | Total Tax |
|---|---|---|
| Currently not available. | ||
Data powered by ATTOM Data Solutions. Copyright© 2026. Information deemed reliable but not guaranteed.
Schools
Schools nearby 3129 Holmes Avenue S
| Schools in attendance boundaries | Grades | Distance | Rating |
|---|---|---|---|
| Loading... | |||
| Schools nearby | Grades | Distance | Rating |
|---|---|---|---|
| Loading... | |||
Data powered by ATTOM Data Solutions. Copyright© 2026. Information deemed reliable but not guaranteed.
The schools shown represent both the assigned schools and schools by distance based on local school and district attendance boundaries. Attendance boundaries change based on various factors and proximity does not guarantee enrollment eligibility. Please consult your real estate agent and/or the school district to confirm the schools this property is zoned to attend. Information is deemed reliable but not guaranteed.
SchoolDigger ® Rating
The SchoolDigger rating system is a 1-5 scale with 5 as the highest rating. SchoolDigger ranks schools based on test scores supplied by each state's Department of Education. They calculate an average standard score by normalizing and averaging each school's test scores across all tests and grades.
Coming soon properties will soon be on the market, but are not yet available for showings.