3130 Sugar Maple Drive Chaska, MN 55318
Pending MLS# 7002615
4 beds 3 baths 2,469 sq ft Single Family
Details for 3130 Sugar Maple Drive
MLS# 7002615
Description for 3130 Sugar Maple Drive, Chaska, MN, 55318
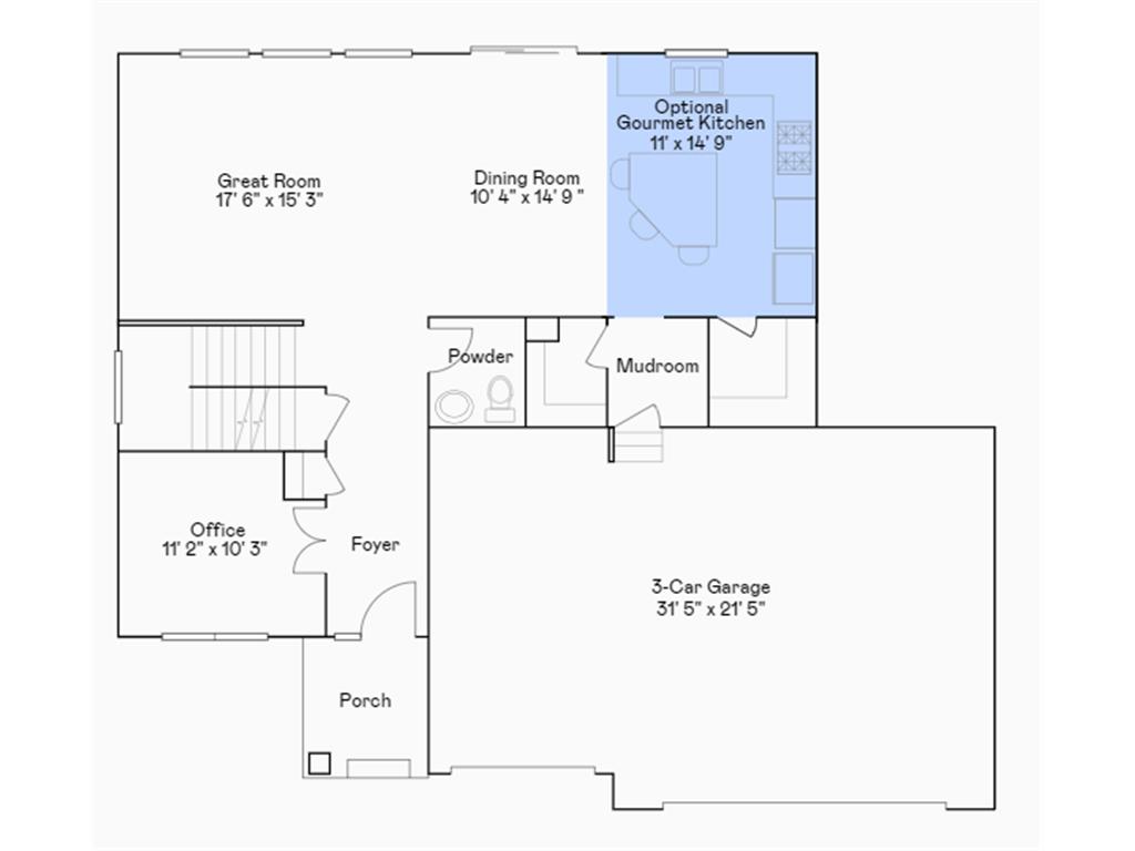
This home is available for a quick close! Don’t miss one of the final opportunities to own in the Reserve at Autumn Woods! The Sinclair floorplan offers 4 bedrooms and 2.5 bathrooms, thoughtfully designed to blend style, comfort, and functionality. The main level showcases a gourmet kitchen with white cabinetry, quartz countertops, stainless steel appliances, a walk-in pantry, and a crisp white tile backsplash. A cozy gas-stone fireplace anchors the inviting great room, while a versatile main-floor study provides space for work or hobbies. Upstairs, the spacious primary suite features a spa-like bathroom with a tiled serenity shower, complemented by a large laundry room and walk-in linen closet for added convenience. This home includes LP SmartSide siding on all four sides, full-yard sod, professional landscaping, and an irrigation system. As part of the Jonathan Association, residents enjoy access to parks, trails, community events, and professional management.
Listing Information
Property Type: Residential, Single Family
Status: Pending
Bedrooms: 4
Bathrooms: 3
Lot Size: 0.25 Acres
Square Feet: 2,469 sq ft
Year Built: 2025
Foundation: 1,096 sq ft
Garage: Yes
Stories: 2 Stories
Date Available: 11/9/2025
Construction Display: New Construction
Completion date: 2025-11-09T06:00:00Z
Subdivision: Reserve At Autumn Woods
Builder: LENNAR
County: Carver
Days On Market: 37
Construction Status: Completed New Construction
School Information
District: 112 - Eastern Carver County Schools
Room Information
Main Floor
Great Room: 18x15
Informal Dining Room: 10x15
Kitchen: 11x15
Study: 11x10
Upper Floor
Bedroom 1: 15x15
Bedroom 2: 12x11
Bedroom 3: 11x11
Bedroom 4: 11x10
Bathrooms
Full Baths: 1
3/4 Baths: 1
1/2 Baths: 1
Additonal Room Information
Family: Great Room,Main Level
Dining: Eat In Kitchen,Informal Dining Room,Kitchen/Dining Room
Bath Description: 3/4 Primary,Main Floor 1/2 Bath,Private Primary,Upper Level Full Bath
Interior Features
Square Footage above: 2,469 sq ft
Appliances: Tankless Water Heater, Stainless Steel Appliances, Furnace Humidifier, Microwave, Refrigerator, Wall Oven, Air-To-Air Exchanger, Cooktop, Dishwasher, Disposal, Exhaust Fan/Hood
Basement: Egress Windows, Unfinished
Fireplaces: 1, Gas Burning, Family Room
Additional Interior Features: Kitchen Window, Washer/Dryer Hookup, Kitchen Center Island, French Doors, 2nd Floor Laundry, Walk-In Closet, Primary Bdr Suite, 4 BR on One Level
Utilities
Water: City Water/Connected
Sewer: City Sewer/Connected
Cooling: Central
Heating: Forced Air, Natural Gas
Exterior / Lot Features
Attached Garage: Attached Garage
Garage Spaces: 3
Parking Description: Garage Door Opener, Driveway - Asphalt, Attached Garage, Garage Dimensions - 30x22, Garage Sq Ft - 780.0
Exterior: Brick/Stone, Engineered Wood
Roof: Age 8 Years or Less, Asphalt Shingles
Lot Dimensions: TBD
Zoning: Residential-Single Family
Additional Exterior/Lot Features: Porch, In-Ground Sprinkler, Sod Included in Price, Road Frontage - City, Paved Streets, Sidewalks
Community Features
HOA Dues Include: Professional Mgmt, Other
Homeowners Association: Yes
Association Name: First Service Residential - Jonathan Association
HOA Dues: $360 / Yearly
Driving Directions
Hwy 212 West; take Powers Blvd exit & go North; go West on Lyman Blvd; go South on Audubon Rd then right on Autumn Woods Dr then left on Ironwood Blvd right on Sugar Maple home is on the right. Please reference GPS such as, Google Maps using “Lennar at Reserve at Autumn Woods" for further details.
Financial Considerations
Tax/Property ID: TBD
Tax Year: 2026
HomeStead Description: Non-Homesteaded
A broker reciprocity listing courtesy: Lennar Sales Corp
The data relating to real estate for sale on this web site comes in part from the Broker Reciprocity℠ Program of the Regional Multiple Listing Service of Minnesota, Inc. Real estate listings held by brokerage firms other than Edina Realty, Inc. are marked with the Broker Reciprocity℠ logo or the Broker Reciprocity℠ thumbnail and detailed information about them includes the name of the listing brokers. Edina Realty, Inc. is not a Multiple Listing Service (MLS), nor does it offer MLS access. This website is a service of Edina Realty, Inc., a broker Participant of the Regional Multiple Listing Service of Minnesota, Inc. IDX information is provided exclusively for consumers personal, non-commercial use and may not be used for any purpose other than to identify prospective properties consumers may be interested in purchasing. Open House information is subject to change without notice. Information deemed reliable but not guaranteed.
Copyright 2026 Regional Multiple Listing Service of Minnesota, Inc. All Rights Reserved.
Sales History & Tax Summary for 3130 Sugar Maple Drive
Sales History
| Date | Price | |
|---|---|---|
| Currently not available. | ||
Tax Summary
| Tax Year | Estimated Market Value | Total Tax |
|---|---|---|
| Currently not available. | ||
Data powered by ATTOM Data Solutions. Copyright© 2026. Information deemed reliable but not guaranteed.
Schools
Schools nearby 3130 Sugar Maple Drive
| Schools in attendance boundaries | Grades | Distance | Rating |
|---|---|---|---|
| Loading... | |||
| Schools nearby | Grades | Distance | Rating |
|---|---|---|---|
| Loading... | |||
Data powered by ATTOM Data Solutions. Copyright© 2026. Information deemed reliable but not guaranteed.
The schools shown represent both the assigned schools and schools by distance based on local school and district attendance boundaries. Attendance boundaries change based on various factors and proximity does not guarantee enrollment eligibility. Please consult your real estate agent and/or the school district to confirm the schools this property is zoned to attend. Information is deemed reliable but not guaranteed.
SchoolDigger ® Rating
The SchoolDigger rating system is a 1-5 scale with 5 as the highest rating. SchoolDigger ranks schools based on test scores supplied by each state's Department of Education. They calculate an average standard score by normalizing and averaging each school's test scores across all tests and grades.
Coming soon properties will soon be on the market, but are not yet available for showings.