3132 Connemara Drive Ormond Beach, FL 32174
For Sale MLS# FC310573
3 beds 2 baths 1,670 sq ft Townhouse/Twinhome
Details for 3132 Connemara Drive
MLS# FC310573
Description for 3132 Connemara Drive, Ormond Beach, FL, 32174
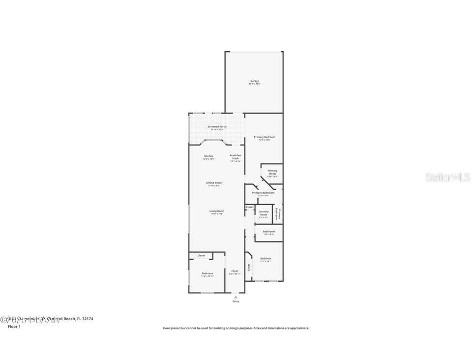
One or more photo(s) has been virtually staged. HALIFAX PLANTATION TOWNHOME... This is a single-family attached home located in the desirable Dunmore neighborhood of one of Ormond Beach's premier golf communities. It features 10-foot ceilings, large windows, and an open floor plan that seamlessly connects the kitchen, dining area, and living room. You'll find warm cherry wood flooring throughout the main living areas and 3 bedrooms, with tile in the foyer, kitchen, inside laundry room, and both bathrooms. The kitchen boasts newer granite countertops, and the primary bedroom includes French doors. The home offers two porches (one screened) and an attached two-car garage. Will have a NEW ROOF in August. It's also conveniently located very close to the public golf course, clubhouse, and the awesome restaurant/pub. For a nominal fee, memberships are available for the tennis courts, pool, and fitness center. The Master HOA covers common ground maintenance, and Dunmore's HOA fee includes lawn maintenance, landscaping, irrigation, and exterior painting every five years. All information recorded in the MLS is intended to be accurate but cannot be guaranteed.
Listing Information
Property Type: Residential, Townhouse
Status: Active
Bedrooms: 3
Bathrooms: 2
Lot Size: 0.14 Acres
Square Feet: 1,670 sq ft
Year Built: 2004
Garage: Yes
Stories: 1 Story
Construction: Block,Concrete,Stucco
Subdivision: Halifax Plantation Unit 02 N-1
Foundation: Slab
County: Volusia
Room Information
Main Floor
Living Room: 12x17
Dining Room: 9x12
Kitchen: 13x13
Bedroom 3: 11x12
Bedroom 2: 12x12
Primary Bedroom: 12x16
Bathrooms
Full Baths: 2
Additonal Room Information
Laundry: Inside
Interior Features
Appliances: Range, Refrigerator, Washer, Dishwasher, Disposal, Dryer, Microwave
Flooring: Tile,Wood
Additional Interior Features: Ceiling Fan(s), Split Bedrooms
Utilities
Water: Public
Sewer: Public Sewer
Other Utilities: Cable Available,Electricity Connected,Sewer Connected,Water Connected
Cooling: Ceiling Fan(s), Central Air
Heating: Heat Pump, Central
Exterior / Lot Features
Attached Garage: Attached Garage
Garage Spaces: 2
Roof: Shingle
Pool: Community, Association
Additional Exterior/Lot Features: Other, Screened, Front Porch, Rear Porch, Cul-de-Sac
Community Features
Community Features: Tennis Court(s), Pool, Golf, Clubhouse
Association Amenities: Clubhouse, Golf Course, Pool, Tennis Court(s)
HOA Dues Include: Maintenance Grounds
Homeowners Association: Yes
HOA Dues: $195 / Quarterly
Driving Directions
I95- EXIT 278- E ON OLD DIXIE HWY- R ON MONOGHAN-R ON CONNOMARA DRIVE
Financial Considerations
Terms: Cash,Conventional,FHA,VA Loan
Tax/Property ID: 3137-19-00-0430
Tax Amount: 4832
Tax Year: 2024
A broker reciprocity listing courtesy: ADAMS, CAMERON & CO., REALTORS
Based on information provided by Stellar MLS as distributed by the MLS GRID. Information from the Internet Data Exchange is provided exclusively for consumers’ personal, non-commercial use, and such information may not be used for any purpose other than to identify prospective properties consumers may be interested in purchasing. This data is deemed reliable but is not guaranteed to be accurate by Edina Realty, Inc., or by the MLS. Edina Realty, Inc., is not a multiple listing service (MLS), nor does it offer MLS access.
Copyright 2025 Stellar MLS as distributed by the MLS GRID. All Rights Reserved.
Payment Calculator
Interest rate and annual percentage rate (APR) are based on current market conditions, are for informational purposes only, are subject to change without notice and may be subject to pricing add-ons related to property type, loan amount, loan-to-value, credit score and other variables. Estimated closing costs used in the APR calculation are assumed to be paid by the borrower at closing. If the closing costs are financed, the loan, APR and payment amounts will be higher. If the down payment is less than 20%, mortgage insurance may be required and could increase the monthly payment and APR. Contact us for details. Additional loan programs may be available. Accuracy is not guaranteed, and all products may not be available in all borrower's geographical areas and are based on their individual situation. This is not a credit decision or a commitment to lend.
Sales History & Tax Summary for 3132 Connemara Drive
Sales History
| Date | Price | Change |
|---|---|---|
| Currently not available. | ||
Tax Summary
| Tax Year | Estimated Market Value | Total Tax |
|---|---|---|
| Currently not available. | ||
Data powered by ATTOM Data Solutions. Copyright© 2025. Information deemed reliable but not guaranteed.
Schools
Schools nearby 3132 Connemara Drive
| Schools in attendance boundaries | Grades | Distance | Rating |
|---|---|---|---|
| Loading... | |||
| Schools nearby | Grades | Distance | Rating |
|---|---|---|---|
| Loading... | |||
Data powered by ATTOM Data Solutions. Copyright© 2025. Information deemed reliable but not guaranteed.
The schools shown represent both the assigned schools and schools by distance based on local school and district attendance boundaries. Attendance boundaries change based on various factors and proximity does not guarantee enrollment eligibility. Please consult your real estate agent and/or the school district to confirm the schools this property is zoned to attend. Information is deemed reliable but not guaranteed.
SchoolDigger ® Rating
The SchoolDigger rating system is a 1-5 scale with 5 as the highest rating. SchoolDigger ranks schools based on test scores supplied by each state's Department of Education. They calculate an average standard score by normalizing and averaging each school's test scores across all tests and grades.
Coming soon properties will soon be on the market, but are not yet available for showings.