315 31st Street W Bradenton, FL 34205
For Sale MLS# TB8460301
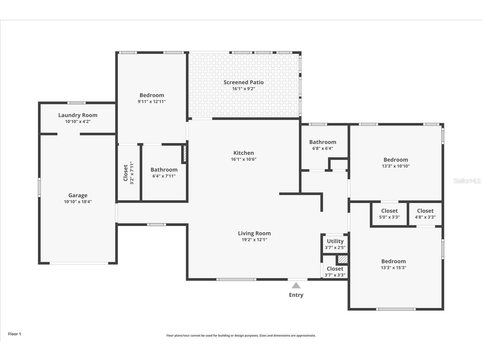
3 beds 2 baths 1,222 sq ft Single Family
Details for 315 31st Street W
MLS# TB8460301
Description for 315 31st Street W, Bradenton, FL, 34205
Welcome home to this beautifully reimagined Bradenton retreat, where modern upgrades meet effortless Florida living. This solid concrete block 3-bedroom, 2-bath home offers an open, light-filled layout designed for both relaxing and entertaining. Brand-new windows flood the space with natural light, while fresh interior and exterior paint give the home a crisp, move-in-ready feel. The completely updated kitchen and both bathrooms showcase today’s finishes, complemented by major system upgrades including a new roof, updated electrical, and a new water heater—providing peace of mind for years to come. Step outside to a spacious backyard with a new fence, perfect for gatherings, pets, or enjoying quiet evenings under the Florida sky. Ideally located near Manatee High School, Bradenton Country Club, and just minutes from beautiful Gulf beaches, this home delivers comfort, convenience, and lifestyle. A rare opportunity to own a fully renovated home in one of Bradenton’s most desirable areas yet still NO FLOOD ZONE.
Listing Information
Property Type: Residential, Single Family Residence
Status: Active
Bedrooms: 3
Bathrooms: 2
Lot Size: 0.22 Acres
Square Feet: 1,222 sq ft
Year Built: 1948
Garage: Yes
Stories: 1 Story
Construction: Block,Stucco
Subdivision: Sunset Terrace
Foundation: Slab
County: Manatee
School Information
Elementary: Ballard Elementary
Middle: Martha B. King Middle
High: Manatee High
Room Information
Main Floor
Great Room:
Kitchen:
Bedroom 3:
Bathroom 2:
Bedroom 2:
Primary Bathroom:
Primary Bedroom:
Bathrooms
Full Baths: 2
Additonal Room Information
Laundry: In Garage, Washer Hookup, Laundry Room, Electric Dryer Hookup
Interior Features
Appliances: Exhaust Fan, Dishwasher, Disposal, Freezer, Microwave, Range, Refrigerator, Electric Water Heater, Built-In Oven, Ice Maker
Flooring: Luxury Vinyl
Additional Interior Features: Ceiling Fan(s), Eat-In Kitchen, Kitchen/Family Room Combo, Open Floorplan, Main Level Primary
Utilities
Water: Public
Sewer: Public Sewer
Other Utilities: Cable Available,Electricity Connected,High Speed Internet Available,Municipal Utilities,Sewer Connected,Water Connected
Cooling: Central Air, Ceiling Fan(s)
Heating: Central
Exterior / Lot Features
Attached Garage: Attached Garage
Garage Spaces: 1
Roof: Shingle
Lot Dimensions: 81x120
Fencing: Wood
Additional Exterior/Lot Features: Private Yard, Awning(s)
Community Features
Community Features: Sidewalks
Driving Directions
Exit HWY 41 and head west on Manatee Ave W. Turn Right or head North on 31st St W. Subject property will be on the East side of the street.
Financial Considerations
Terms: Cash,Conventional,FHA,VA Loan
Tax/Property ID: 3504200001
Tax Amount: 2632.32
Tax Year: 2024
A broker reciprocity listing courtesy: DALTON WADE INC
Based on information provided by Stellar MLS as distributed by the MLS GRID. Information from the Internet Data Exchange is provided exclusively for consumers’ personal, non-commercial use, and such information may not be used for any purpose other than to identify prospective properties consumers may be interested in purchasing. This data is deemed reliable but is not guaranteed to be accurate by Edina Realty, Inc., or by the MLS. Edina Realty, Inc., is not a multiple listing service (MLS), nor does it offer MLS access.
Copyright 2026 Stellar MLS as distributed by the MLS GRID. All Rights Reserved.
Payment Calculator
Interest rate and annual percentage rate (APR) are based on current market conditions, are for informational purposes only, are subject to change without notice and may be subject to pricing add-ons related to property type, loan amount, loan-to-value, credit score and other variables. Estimated closing costs used in the APR calculation are assumed to be paid by the borrower at closing. If the closing costs are financed, the loan, APR and payment amounts will be higher. If the down payment is less than 20%, mortgage insurance may be required and could increase the monthly payment and APR. Contact us for details. Additional loan programs may be available. Accuracy is not guaranteed, and all products may not be available in all borrower's geographical areas and are based on their individual situation. This is not a credit decision or a commitment to lend.
Sales History & Tax Summary for 315 31st Street W
Sales History
| Date | Price | |
|---|---|---|
| Currently not available. | ||
Tax Summary
| Tax Year | Estimated Market Value | Total Tax |
|---|---|---|
| Currently not available. | ||
Data powered by ATTOM Data Solutions. Copyright© 2026. Information deemed reliable but not guaranteed.
Schools
Schools nearby 315 31st Street W
| Schools in attendance boundaries | Grades | Distance | Rating |
|---|---|---|---|
| Loading... | |||
| Schools nearby | Grades | Distance | Rating |
|---|---|---|---|
| Loading... | |||
Data powered by ATTOM Data Solutions. Copyright© 2026. Information deemed reliable but not guaranteed.
The schools shown represent both the assigned schools and schools by distance based on local school and district attendance boundaries. Attendance boundaries change based on various factors and proximity does not guarantee enrollment eligibility. Please consult your real estate agent and/or the school district to confirm the schools this property is zoned to attend. Information is deemed reliable but not guaranteed.
SchoolDigger ® Rating
The SchoolDigger rating system is a 1-5 scale with 5 as the highest rating. SchoolDigger ranks schools based on test scores supplied by each state's Department of Education. They calculate an average standard score by normalizing and averaging each school's test scores across all tests and grades.
Coming soon properties will soon be on the market, but are not yet available for showings.