315 NE Cardinal NE #L15 Jensen Beach, FL 34957
For Sale MLS# TB8481029
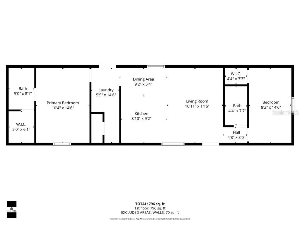
2 beds 2 baths 869 sq ft Single Family
Details for 315 NE Cardinal NE #L15
MLS# TB8481029
Description for 315 NE Cardinal NE #L15, Jensen Beach, FL, 34957
Refined Coastal Living — Brand New Construction with Ownership Advantages Welcome to little gem in the sought-after 55+ ocean-access community of Tropical Acres in Jensen Beach. This is true ownership within a co-op community — no lot rent — with remarkably low HOA dues of $168 each month, covering common areas, pool service, and reserves. This never-occupied residence delivers modern comfort with quality construction standards, including 200-amp electrical service, 8-foot ceilings, attic-distributed A/C ventilation, and a transferable home warranty for added peace of mind. An 8x10 storage shed, constructed to Martin County Wind Mitigation Code (Cat 3) standards and prepped for electrical service, adds practical convenience. The property is connected to city water and sewer, with a private well dedicated to irrigation. Residents also enjoy optional on-site RV and boat storage for $30 each month. Ideally positioned just moments from downtown Jensen Beach and minutes to the beach, this home offers the rare combination of coastal lifestyle, low-maintenance living, and true land ownership. All appliances are brand new. The home has never been lived in.
Listing Information
Property Type: Residential, Manufactured Home
Status: Active
Bedrooms: 2
Bathrooms: 2
Lot Size: 0.07 Acres
Square Feet: 869 sq ft
Year Built: 2025
Stories: 1 Story
Construction: Other
Construction Display: New Construction
Subdivision: Tropical Acres Mhp Co-Op
Foundation: Crawlspace
County: Martin
Construction Status: New Construction
Room Information
Main Floor
Kitchen:
Living Room:
Bedroom 2:
Bedroom 1:
Primary Bedroom:
Bathrooms
Full Baths: 2
Additonal Room Information
Laundry: Laundry Room
Interior Features
Appliances: Cooktop
Flooring: Laminate
Basement: Crawl Space
Additional Interior Features: Other
Utilities
Water: Public
Sewer: Public Sewer
Other Utilities: Cable Available
Cooling: Central Air
Heating: Central
Exterior / Lot Features
Roof: Shingle
Community Features
Homeowners Association: Yes
HOA Dues: $168 / Monthly
Driving Directions
Savannah into Tropical Acres. straight, left after the bridge, left again into the unit
Financial Considerations
Tax/Property ID: 27-37-41-036-000-00790-1
Tax Amount: 473
Tax Year: 2025
A broker reciprocity listing courtesy: MIAMI WATERFRONT REALTY
Based on information provided by Stellar MLS as distributed by the MLS GRID. Information from the Internet Data Exchange is provided exclusively for consumers’ personal, non-commercial use, and such information may not be used for any purpose other than to identify prospective properties consumers may be interested in purchasing. This data is deemed reliable but is not guaranteed to be accurate by Edina Realty, Inc., or by the MLS. Edina Realty, Inc., is not a multiple listing service (MLS), nor does it offer MLS access.
Copyright 2026 Stellar MLS as distributed by the MLS GRID. All Rights Reserved.
Payment Calculator
Interest rate and annual percentage rate (APR) are based on current market conditions, are for informational purposes only, are subject to change without notice and may be subject to pricing add-ons related to property type, loan amount, loan-to-value, credit score and other variables. Estimated closing costs used in the APR calculation are assumed to be paid by the borrower at closing. If the closing costs are financed, the loan, APR and payment amounts will be higher. If the down payment is less than 20%, mortgage insurance may be required and could increase the monthly payment and APR. Contact us for details. Additional loan programs may be available. Accuracy is not guaranteed, and all products may not be available in all borrower's geographical areas and are based on their individual situation. This is not a credit decision or a commitment to lend.
Sales History & Tax Summary for 315 NE Cardinal NE #L15
Sales History
| Date | Price | |
|---|---|---|
| Currently not available. | ||
Tax Summary
| Tax Year | Estimated Market Value | Total Tax |
|---|---|---|
| Currently not available. | ||
Data powered by ATTOM Data Solutions. Copyright© 2026. Information deemed reliable but not guaranteed.
Schools
Schools nearby 315 NE Cardinal NE #L15
| Schools in attendance boundaries | Grades | Distance | Rating |
|---|---|---|---|
| Loading... | |||
| Schools nearby | Grades | Distance | Rating |
|---|---|---|---|
| Loading... | |||
Data powered by ATTOM Data Solutions. Copyright© 2026. Information deemed reliable but not guaranteed.
The schools shown represent both the assigned schools and schools by distance based on local school and district attendance boundaries. Attendance boundaries change based on various factors and proximity does not guarantee enrollment eligibility. Please consult your real estate agent and/or the school district to confirm the schools this property is zoned to attend. Information is deemed reliable but not guaranteed.
SchoolDigger ® Rating
The SchoolDigger rating system is a 1-5 scale with 5 as the highest rating. SchoolDigger ranks schools based on test scores supplied by each state's Department of Education. They calculate an average standard score by normalizing and averaging each school's test scores across all tests and grades.
Coming soon properties will soon be on the market, but are not yet available for showings.