$142,500
3150 Excelsior Boulevard #101 Minneapolis, MN 55416
For Sale MLS# 7017779
1 beds 1 baths 730 sq ft Condo
Details for 3150 Excelsior Boulevard #101
MLS# 7017779
Description for 3150 Excelsior Boulevard #101, Minneapolis, MN, 55416
Completely refreshed and updated!! Why keep paying your landlord when you could start building equity instead? This beautifully updated 1-bedroom, 1-bath condo with underground heated garage parking is one of the most attractively priced opportunities in the area—making it a rare find in today’s Uptown market.Located just steps from Bde Maka Ska, Whole Foods, top-rated restaurants, coffee shops, and miles of scenic trails, this is true walkable city living.Inside, you’ll find thoughtful modern updates including new shower tile, vanity, toilet, cabinetry, and a brand-new stainless steel fridge and cooktop. The open layout offers comfortable, low-maintenance living, while heated underground parking keeps Minnesota winters simple and stress-free.The unit has been completely freshened up with paint touch-ups and professionally cleaned—so there’s nothing left to do but move right in and start enjoying your new space from day one.With HOA dues covering nearly everything except electricity, ownership here is both convenient and affordable. Ideal for first-time buyers, downsizers, or anyone wanting prime Uptown living at a price that’s hard to beat.
Listing Information
Property Type: Residential, High Rise (4+ Levels)
Status: Active
Bedrooms: 1
Bathrooms: 1
Lot Size: 0.75 Acres
Square Feet: 730 sq ft
Year Built: 1966
Foundation: 730 sq ft
Garage: Yes
Stories: 1 Story
Property Attached: Yes
Subdivision: Cic 1474 Condos At Lake Calhoun Co
County: Hennepin
Days On Market: 35
Construction Status: Previously Owned
School Information
District: 1 - Minneapolis
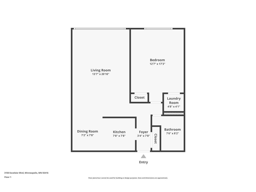
Room Information
Main Floor
Bedroom 1: 14x12
Dining Room: 7x8
Kitchen: 7x7
Living Room: 13x20
Bathrooms
Full Baths: 1
Additonal Room Information
Family: Main Level
Laundry: In Unit
Bath Description: Main Floor Full Bath
Interior Features
Square Footage above: 730 sq ft
Appliances: Range, Refrigerator, Dishwasher, Microwave
Accessibility: Elevator
Utilities
Water: City Water/Connected
Sewer: City Sewer/Connected
Cooling: Wall
Heating: Natural Gas, Hot Water, Baseboard
Exterior / Lot Features
Garage Spaces: 1
Parking Description: Heated Garage, Garage Sq Ft - 200.0
Exterior: Brick/Stone
Roof: Flat
Lot Dimensions: Irr
Zoning: Residential-Multi-Family
Community Features
HOA Dues Include: Heating, Internet, Lawn Care, Building Exterior, Cable TV, Professional Mgmt, Outside Maintenance, Parking Space, Sanitation, Shared Amenities, Snow Removal
Pets Allowed: Yes
Homeowners Association: Yes
Association Name: Cities Management An Associa
HOA Dues: $660 / Monthly
Driving Directions
Hwy 100 to Excelsior Blvd, east on Excelsior Blvd, building will be on the right just past France Ave. Unit 101 is on the main level.
Financial Considerations
Covenants/Deed Restrictions: Mandatory Owners Assoc, Pets - Breed Restriction, Pets - Number Limit, Rental Restrictions May Apply, Pets - Dogs Allowed, Pets - Cats Allowed
Tax/Property ID: 0502824210353
Tax Amount: 2179
Tax Year: 2025
HomeStead Description: Non-Homesteaded
A broker reciprocity listing courtesy: Pemberton RE
The data relating to real estate for sale on this web site comes in part from the Broker Reciprocity℠ Program of the Regional Multiple Listing Service of Minnesota, Inc. Real estate listings held by brokerage firms other than Edina Realty, Inc. are marked with the Broker Reciprocity℠ logo or the Broker Reciprocity℠ thumbnail and detailed information about them includes the name of the listing brokers. Edina Realty, Inc. is not a Multiple Listing Service (MLS), nor does it offer MLS access. This website is a service of Edina Realty, Inc., a broker Participant of the Regional Multiple Listing Service of Minnesota, Inc. IDX information is provided exclusively for consumers personal, non-commercial use and may not be used for any purpose other than to identify prospective properties consumers may be interested in purchasing. Open House information is subject to change without notice. Information deemed reliable but not guaranteed.
Copyright 2026 Regional Multiple Listing Service of Minnesota, Inc. All Rights Reserved.
Payment Calculator
Interest rate and annual percentage rate (APR) are based on current market conditions, are for informational purposes only, are subject to change without notice and may be subject to pricing add-ons related to property type, loan amount, loan-to-value, credit score and other variables. Estimated closing costs used in the APR calculation are assumed to be paid by the borrower at closing. If the closing costs are financed, the loan, APR and payment amounts will be higher. If the down payment is less than 20%, mortgage insurance may be required and could increase the monthly payment and APR. Contact us for details. Additional loan programs may be available. Accuracy is not guaranteed, and all products may not be available in all borrower's geographical areas and are based on their individual situation. This is not a credit decision or a commitment to lend.
Sales History & Tax Summary for 3150 Excelsior Boulevard #101
Sales History
| Date | Price | |
|---|---|---|
| Currently not available. | ||
Tax Summary
| Tax Year | Estimated Market Value | Total Tax |
|---|---|---|
| Currently not available. | ||
Data powered by ATTOM Data Solutions. Copyright© 2026. Information deemed reliable but not guaranteed.
Schools
Schools nearby 3150 Excelsior Boulevard #101
| Schools in attendance boundaries | Grades | Distance | Rating |
|---|---|---|---|
| Loading... | |||
| Schools nearby | Grades | Distance | Rating |
|---|---|---|---|
| Loading... | |||
Data powered by ATTOM Data Solutions. Copyright© 2026. Information deemed reliable but not guaranteed.
The schools shown represent both the assigned schools and schools by distance based on local school and district attendance boundaries. Attendance boundaries change based on various factors and proximity does not guarantee enrollment eligibility. Please consult your real estate agent and/or the school district to confirm the schools this property is zoned to attend. Information is deemed reliable but not guaranteed.
SchoolDigger ® Rating
The SchoolDigger rating system is a 1-5 scale with 5 as the highest rating. SchoolDigger ranks schools based on test scores supplied by each state's Department of Education. They calculate an average standard score by normalizing and averaging each school's test scores across all tests and grades.
Coming soon properties will soon be on the market, but are not yet available for showings.