316 S Cypress Avenue Green Cove Springs, FL 32043
For Sale MLS# FC311972
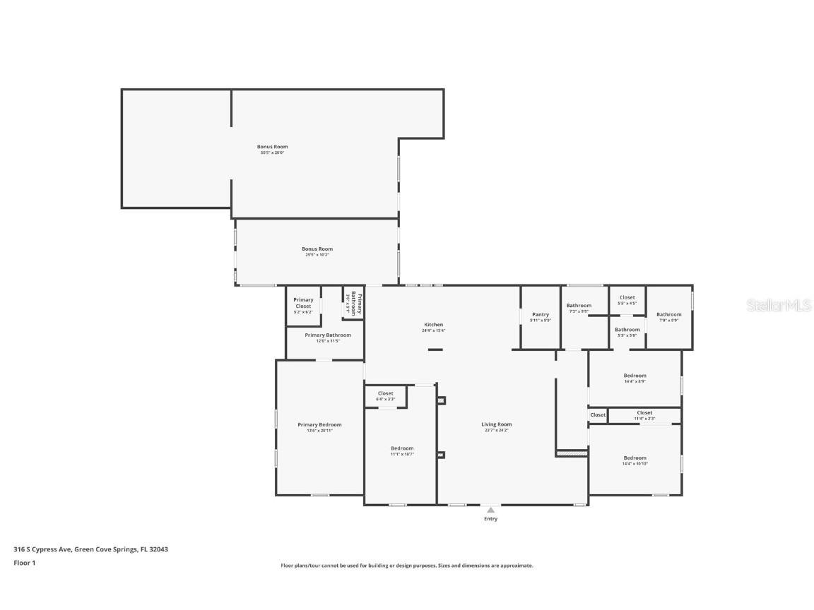
4 beds 3 baths 2,472 sq ft Single Family
Details for 316 S Cypress Avenue
MLS# FC311972
Description for 316 S Cypress Avenue, Green Cove Springs, FL, 32043
**FULL RENOVATION**CORNER LOT**NEW APPLIANCES** Welcome to this stunning, FULLY RENOVATED home! This home sits on a huge corner lot with beautiful magnolia and oak trees, creating a peaceful setting. Inside, a bright and welcoming atmosphere greets you with an OPEN LAYOUT and stylish, modern touches throughout. The spacious kitchen features a large island, WALK-IN PANTRY, soft-close cabinets, and elegant quartz countertops. Beautiful accent walls add a custom touch, while plenty of STORAGE ensures a clutter-free space. The home offers 4 beds/3 baths, including a huge master suite with a gorgeous, large walk-in shower. All bathrooms have luxurious FLOOR TO CEILING TILE. Step outside to a FENCED SIDE YARD and a pavered driveway for convenience. The true highlight of this property is the incredible 1200 SQFT WORKSHOP, offering a perfect space for a hobbyist, or a massive amount of storage. This home perfectly blends modern design with functional space, inside and out. Don't miss out!
Listing Information
Property Type: Residential, Single Family Residence
Status: Active
Bedrooms: 4
Bathrooms: 3
Lot Size: 0.32 Acres
Square Feet: 2,472 sq ft
Year Built: 1950
Stories: 1 Story
Construction: Other
Subdivision: Green Cove Spgs
Foundation: Slab
County: Clay
Room Information
Main Floor
Kitchen:
Living Room:
Primary Bathroom:
Primary Bedroom:
Bathrooms
Full Baths: 3
Additonal Room Information
Laundry: Other, Inside, Washer Hookup, Laundry Room, Electric Dryer Hookup
Interior Features
Appliances: Microwave, Dishwasher, Range, Refrigerator, Electric Water Heater
Flooring: Laminate
Additional Interior Features: Walk-In Closet(s), Eat-In Kitchen, Ceiling Fan(s), Other, Open Floorplan, Crown Molding, Kitchen/Family Room Combo
Utilities
Water: Public
Sewer: Public Sewer
Other Utilities: Cable Available,Electricity Available,Sewer Available,Water Available
Cooling: Ceiling Fan(s), Central Air
Heating: Electric, Heat Pump, Central
Exterior / Lot Features
Roof: Shingle
Additional Exterior/Lot Features: Other, Cleared
Out Buildings: Workshop
Driving Directions
Hwy 17 S to Green Cove Springs. Right on SR 16. Left on Cypress Ave. Home on left.
Financial Considerations
Terms: Cash,Conventional,FHA,VA Loan
Tax/Property ID: 38-06-26-017327-000-00
Tax Amount: 2757
Tax Year: 2024
A broker reciprocity listing courtesy: CHAD AND SANDY REAL ESTATE GRP
Based on information provided by Stellar MLS as distributed by the MLS GRID. Information from the Internet Data Exchange is provided exclusively for consumers’ personal, non-commercial use, and such information may not be used for any purpose other than to identify prospective properties consumers may be interested in purchasing. This data is deemed reliable but is not guaranteed to be accurate by Edina Realty, Inc., or by the MLS. Edina Realty, Inc., is not a multiple listing service (MLS), nor does it offer MLS access.
Copyright 2025 Stellar MLS as distributed by the MLS GRID. All Rights Reserved.
Payment Calculator
Interest rate and annual percentage rate (APR) are based on current market conditions, are for informational purposes only, are subject to change without notice and may be subject to pricing add-ons related to property type, loan amount, loan-to-value, credit score and other variables. Estimated closing costs used in the APR calculation are assumed to be paid by the borrower at closing. If the closing costs are financed, the loan, APR and payment amounts will be higher. If the down payment is less than 20%, mortgage insurance may be required and could increase the monthly payment and APR. Contact us for details. Additional loan programs may be available. Accuracy is not guaranteed, and all products may not be available in all borrower's geographical areas and are based on their individual situation. This is not a credit decision or a commitment to lend.
Sales History & Tax Summary for 316 S Cypress Avenue
Sales History
| Date | Price | Change |
|---|---|---|
| Currently not available. | ||
Tax Summary
| Tax Year | Estimated Market Value | Total Tax |
|---|---|---|
| Currently not available. | ||
Data powered by ATTOM Data Solutions. Copyright© 2025. Information deemed reliable but not guaranteed.
Schools
Schools nearby 316 S Cypress Avenue
| Schools in attendance boundaries | Grades | Distance | Rating |
|---|---|---|---|
| Loading... | |||
| Schools nearby | Grades | Distance | Rating |
|---|---|---|---|
| Loading... | |||
Data powered by ATTOM Data Solutions. Copyright© 2025. Information deemed reliable but not guaranteed.
The schools shown represent both the assigned schools and schools by distance based on local school and district attendance boundaries. Attendance boundaries change based on various factors and proximity does not guarantee enrollment eligibility. Please consult your real estate agent and/or the school district to confirm the schools this property is zoned to attend. Information is deemed reliable but not guaranteed.
SchoolDigger ® Rating
The SchoolDigger rating system is a 1-5 scale with 5 as the highest rating. SchoolDigger ranks schools based on test scores supplied by each state's Department of Education. They calculate an average standard score by normalizing and averaging each school's test scores across all tests and grades.
Coming soon properties will soon be on the market, but are not yet available for showings.