316 Shore Drive E Oldsmar, FL 34677 - UPPER TAMPA BAY
For Sale MLS# TB8408673
4 beds 3 baths 2,496 sq ft Single Family
Details for 316 Shore Drive E
MLS# TB8408673
Description for 316 Shore Drive E, Oldsmar, FL, 34677 - UPPER TAMPA BAY
Wake up to million-dollar views, and unwind with spectacular sunsets - this is the waterfront lifestyle you've been waiting for. This updated 4-bedroom, 3-bath pool home sits directly on Tampa Bay on an oversized lot along iconic Shore Drive in Oldsmar. Enjoy panoramic water views across the Bay from a home that's high and dry - built on an elevated slab that has never flooded, eliminating the need for stilts or the stairs that come with them. Inside, a welcoming foyer leads to the open-concept living and dining area, where sliding doors frame the scenic backdrop and open to the covered deck, pool, and backyard. The new kitchen features quartz countertops, premium cabinetry, and stainless steel appliances. Also on the first floor: a bedroom (or office) and a renovated full bath. Upstairs, the primary suite offers a private balcony with sweeping water views and an ensuite bath. Two additional bedrooms share an updated full bath. Fish, kayak, windsurf, or watch dolphins from your own backyard - or add a dock for boating. Prefer to launch nearby? The city’s boat ramp is just minutes away. This home is in Oldsmar’s most coveted neighborhood, surrounded by parks and close to everything: top-rated schools, walkable and golf cart-friendly streets, and easy access to dining, shopping, Tampa International Airport, and sparkling Gulf beaches. New seawall (2024). New pool pump (2024). New water heater (2024). Two new AC units (2022). Metal roof (2008). Hurricane shutters. Low-cost, transferable flood insurance. No HOA or CDD fees. Centrally-located waterfront homes with views like this are rare - schedule your private showing today and see it for yourself.
Listing Information
Property Type: Residential, Single Family Residence
Status: Active
Bedrooms: 4
Bathrooms: 3
Lot Size: 0.42 Acres
Square Feet: 2,496 sq ft
Year Built: 1975
Garage: Yes
Stories: 2 Story
Construction: Stucco
Subdivision: Country Club Add To Oldsmar Rev
Foundation: Slab
County: Pinellas
School Information
Elementary: Oldsmar Elementary-Pn
Middle: Carwise Middle-Pn
High: East Lake High-Pn
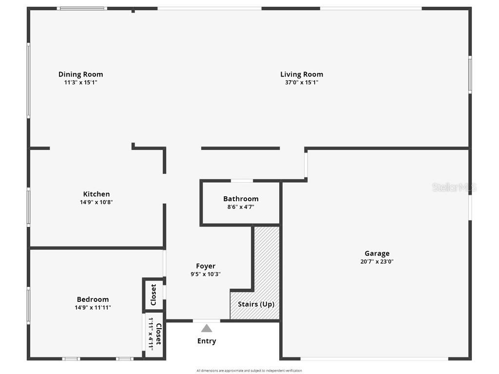
Room Information
Main Floor
Bedroom 4: 12x14
Great Room: 15x37
Dining Room: 15x11
Kitchen: 14x12
Upper Floor
Primary Bathroom: 11x7
Primary Bedroom: 20x15
Bathrooms
Full Baths: 3
Additonal Room Information
Laundry: Washer Hookup, In Garage, Electric Dryer Hookup
Interior Features
Appliances: Convection Oven, Exhaust Fan, Range, Refrigerator, Dishwasher, Microwave, Freezer, Electric Water Heater
Flooring: Luxury Vinyl,Tile
Doors/Windows: Skylight(s)
Additional Interior Features: Walk-In Closet(s), Built-in Features, Skylights, Ceiling Fan(s), Living/Dining Room, Upper Level Primary, Open Floorplan, Wood Cabinets, Solid Surface Counters, Stone Counters
Utilities
Water: Public
Sewer: Public Sewer
Other Utilities: Cable Available,Electricity Connected,Fiber Optic Available,High Speed Internet Available,Municipal Utilities,Phone Available,Sewer Connected,Water Connected
Cooling: Ceiling Fan(s), Central Air
Heating: Electric, Central
Exterior / Lot Features
Attached Garage: Attached Garage
Garage Spaces: 2
Parking Description: Oversized, Parking Pad, Guest, driveway, Garage, Off Street, Garage Door Opener
Roof: Metal
Pool: Other, Gunite, In Ground
Lot View: Bay,Water
Lot Dimensions: 100x200
Additional Exterior/Lot Features: Storm/Security Shutters, Balcony, Awning(s), Balcony, Covered, Deck, Rear Porch, Front Porch, Flat, Level, Landscaped, City Lot, Oversized Lot
Waterfront Details
Standard Water Body: UPPER TAMPA BAY
Water Front Features: Bay Access
Community Features
Community Features: Park, Dog Park, Fishing, Golf Carts OK, Water Access, Street Lights, Boat Facilities, Tennis Court(s), Sidewalks, Waterfront, Playground, Dock
Security Features: Fire Hydrant(s)
Driving Directions
From the intersection of W Hillsborough Ave and Race Track Rd / Lafayette Blvd, go Southwest on Lafayette Blvd, turn Left onto Shore Dr E, and house is on the Right.
Financial Considerations
Terms: Cash,Conventional,VA Loan
Tax/Property ID: 25-28-16-18432-001-0020
Tax Amount: 17562.21
Tax Year: 2024
A broker reciprocity listing courtesy: CHARLES RUTENBERG REALTY INC
Based on information provided by Stellar MLS as distributed by the MLS GRID. Information from the Internet Data Exchange is provided exclusively for consumers’ personal, non-commercial use, and such information may not be used for any purpose other than to identify prospective properties consumers may be interested in purchasing. This data is deemed reliable but is not guaranteed to be accurate by Edina Realty, Inc., or by the MLS. Edina Realty, Inc., is not a multiple listing service (MLS), nor does it offer MLS access.
Copyright 2025 Stellar MLS as distributed by the MLS GRID. All Rights Reserved.
Payment Calculator
Interest rate and annual percentage rate (APR) are based on current market conditions, are for informational purposes only, are subject to change without notice and may be subject to pricing add-ons related to property type, loan amount, loan-to-value, credit score and other variables. Estimated closing costs used in the APR calculation are assumed to be paid by the borrower at closing. If the closing costs are financed, the loan, APR and payment amounts will be higher. If the down payment is less than 20%, mortgage insurance may be required and could increase the monthly payment and APR. Contact us for details. Additional loan programs may be available. Accuracy is not guaranteed, and all products may not be available in all borrower's geographical areas and are based on their individual situation. This is not a credit decision or a commitment to lend.
Sales History & Tax Summary for 316 Shore Drive E
Sales History
| Date | Price | Change |
|---|---|---|
| Currently not available. | ||
Tax Summary
| Tax Year | Estimated Market Value | Total Tax |
|---|---|---|
| Currently not available. | ||
Data powered by ATTOM Data Solutions. Copyright© 2025. Information deemed reliable but not guaranteed.
Schools
Schools nearby 316 Shore Drive E
| Schools in attendance boundaries | Grades | Distance | Rating |
|---|---|---|---|
| Loading... | |||
| Schools nearby | Grades | Distance | Rating |
|---|---|---|---|
| Loading... | |||
Data powered by ATTOM Data Solutions. Copyright© 2025. Information deemed reliable but not guaranteed.
The schools shown represent both the assigned schools and schools by distance based on local school and district attendance boundaries. Attendance boundaries change based on various factors and proximity does not guarantee enrollment eligibility. Please consult your real estate agent and/or the school district to confirm the schools this property is zoned to attend. Information is deemed reliable but not guaranteed.
SchoolDigger ® Rating
The SchoolDigger rating system is a 1-5 scale with 5 as the highest rating. SchoolDigger ranks schools based on test scores supplied by each state's Department of Education. They calculate an average standard score by normalizing and averaging each school's test scores across all tests and grades.
Coming soon properties will soon be on the market, but are not yet available for showings.