3165 Landmark Drive #714 Clearwater, FL 33761
For Sale MLS# TB8423285
1 beds 1 baths 850 sq ft Condo
Details for 3165 Landmark Drive #714
MLS# TB8423285
Description for 3165 Landmark Drive #714, Clearwater, FL, 33761
Looking for a move-in ready Clearwater condo with a garage, peaceful pond views, and a maintenance-free lifestyle and a Motivated Seller? Welcome to Eagles Glen, one of Countryside’s most desirable communities. This beautifully updated first-floor home offers modern comfort in a quiet, convenient setting just minutes from shopping, golf, and the Gulf beaches. Inside, you’ll find a bright open floor plan with crown molding, neutral finishes, and a spacious great room that opens to a glass-enclosed Florida room overlooking the pond—perfect for morning coffee or relaxing evenings. The remodeled kitchen features granite countertops, solid wood cabinets, stainless steel appliances, and a large walk-in pantry, a rare feature in this price range. The owner’s suite includes a walk-in closet, updated bath with walk-in shower, and sliding doors to the Florida room. Additional highlights include an interior laundry area, ample storage, and a private garage with guest parking nearby. Residents of Eagles Glen enjoy a heated community pool, tennis courts, and well-maintained grounds, with HOA fees covering water, cable, internet, exterior maintenance, and landscaping. Located in a No-Flood, No-Evacuation Zone, this home offers peace of mind and easy access to Countryside Mall, Whole Foods, US-19, Safety Harbor, Dunedin, and Clearwater Beach. If you’ve been searching for an updated Clearwater condo with a garage, pond view, and resort-style amenities—this is the one.
Listing Information
Property Type: Residential, Condominium
Status: Active
Bedrooms: 1
Bathrooms: 1
Lot Size: 0.63 Acres
Square Feet: 850 sq ft
Year Built: 1981
Garage: Yes
Stories: 1 Story
Construction: Block,Concrete,Stucco
Subdivision: Eagles Glen Condo
Foundation: Slab
County: Pinellas
School Information
Elementary: Curlew Creek Elementary-Pn
Middle: Safety Harbor Middle-Pn
High: Countryside High-Pn
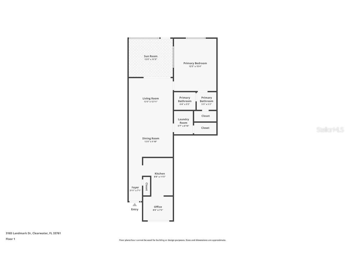
Room Information
Main Floor
Florida Room: 11x12
Primary Bedroom: 12x14
Kitchen: 18x8
Living Room: 22x12
Bathrooms
Full Baths: 1
Additonal Room Information
Laundry: Inside, Laundry Closet, Laundry Room
Interior Features
Appliances: Electric Water Heater, Washer, Microwave, Range, Refrigerator, Dishwasher, Disposal, Dryer
Flooring: Carpet,Tile
Additional Interior Features: Eat-In Kitchen, Built-in Features, Walk-In Closet(s), Ceiling Fan(s), Main Level Primary, Crown Molding, Living/Dining Room, Stone Counters, Wood Cabinets, Open Floorplan
Utilities
Water: Public
Sewer: Public Sewer
Other Utilities: Cable Connected,Electricity Connected,Sewer Connected,Underground Utilities,Water Connected
Cooling: Ceiling Fan(s), Central Air
Heating: Central, Electric
Exterior / Lot Features
Garage Spaces: 1
Parking Description: Garage, Deeded, Guest, Garage Door Opener
Roof: Shingle
Pool: Community
Lot View: Pond,Water
Additional Exterior/Lot Features: Lighting, Courtyard, Tennis Court(s), Enclosed, Patio, Rear Porch, Buyer Approval Required
Waterfront Details
Water Front Features: Pond
Community Features
Community Features: Community Mailbox, Sidewalks, Pool, Tennis Court(s)
HOA Dues Include: Cable TV, Water, Trash, Internet, Sewer, Maintenance Structure, Pool(s), Maintenance Grounds, Reserve Fund
Homeowners Association: Yes
HOA Dues: $513 / Monthly
Driving Directions
From SR 580, Go North on Landmark Drive, go Right into Eagles Glen. Make your first left, the unit is your first building on the left, unit #714. From Curlew Road, go South onto Landmark Drive, then Left into Eagles Glen. Make your first left, the unit is your first building on the left, unit #714.
Financial Considerations
Terms: Cash,Conventional
Tax/Property ID: 20-28-16-23692-007-7140
Tax Amount: 2734
Tax Year: 2024
A broker reciprocity listing courtesy: BHHS FLORIDA PROPERTIES GROUP
Based on information provided by Stellar MLS as distributed by the MLS GRID. Information from the Internet Data Exchange is provided exclusively for consumers’ personal, non-commercial use, and such information may not be used for any purpose other than to identify prospective properties consumers may be interested in purchasing. This data is deemed reliable but is not guaranteed to be accurate by Edina Realty, Inc., or by the MLS. Edina Realty, Inc., is not a multiple listing service (MLS), nor does it offer MLS access.
Copyright 2025 Stellar MLS as distributed by the MLS GRID. All Rights Reserved.
Payment Calculator
Interest rate and annual percentage rate (APR) are based on current market conditions, are for informational purposes only, are subject to change without notice and may be subject to pricing add-ons related to property type, loan amount, loan-to-value, credit score and other variables. Estimated closing costs used in the APR calculation are assumed to be paid by the borrower at closing. If the closing costs are financed, the loan, APR and payment amounts will be higher. If the down payment is less than 20%, mortgage insurance may be required and could increase the monthly payment and APR. Contact us for details. Additional loan programs may be available. Accuracy is not guaranteed, and all products may not be available in all borrower's geographical areas and are based on their individual situation. This is not a credit decision or a commitment to lend.
Sales History & Tax Summary for 3165 Landmark Drive #714
Sales History
| Date | Price | Change |
|---|---|---|
| Currently not available. | ||
Tax Summary
| Tax Year | Estimated Market Value | Total Tax |
|---|---|---|
| Currently not available. | ||
Data powered by ATTOM Data Solutions. Copyright© 2025. Information deemed reliable but not guaranteed.
Schools
Schools nearby 3165 Landmark Drive #714
| Schools in attendance boundaries | Grades | Distance | Rating |
|---|---|---|---|
| Loading... | |||
| Schools nearby | Grades | Distance | Rating |
|---|---|---|---|
| Loading... | |||
Data powered by ATTOM Data Solutions. Copyright© 2025. Information deemed reliable but not guaranteed.
The schools shown represent both the assigned schools and schools by distance based on local school and district attendance boundaries. Attendance boundaries change based on various factors and proximity does not guarantee enrollment eligibility. Please consult your real estate agent and/or the school district to confirm the schools this property is zoned to attend. Information is deemed reliable but not guaranteed.
SchoolDigger ® Rating
The SchoolDigger rating system is a 1-5 scale with 5 as the highest rating. SchoolDigger ranks schools based on test scores supplied by each state's Department of Education. They calculate an average standard score by normalizing and averaging each school's test scores across all tests and grades.
Coming soon properties will soon be on the market, but are not yet available for showings.