3167 Wood Rose Way Deltona, FL 32725
For Sale MLS# O6326681
3 beds 2 baths 1,282 sq ft Single Family
Details for 3167 Wood Rose Way
MLS# O6326681
Description for 3167 Wood Rose Way, Deltona, FL, 32725
Welcome to 3167 Wood Rose Way – Your Peaceful Retreat in Deltona, FL! Nestled in a quiet neighborhood, this charming single-story ranch-style home offers 3 cozy bedrooms and 2 bathrooms, ideal for comfortable living. The spacious primary suite features a walk-in closet and an en-suite bath complete with dual sinks, a relaxing soaking tub, and a separate shower. Step inside to a warm and welcoming atmosphere, with large windows that flood the space with natural light and offer tranquil views of the lush greenery outside. Enjoy versatile living areas including a separate formal dining room, a casual dinette, and a spacious living room—perfect for everyday living or entertaining guests. The kitchen is a chef’s delight, featuring 42-inch wood cabinets with crown molding, sleek stainless steel appliances, and ample counter space. Additional highlights include an inside laundry room, a two-car garage, and a partially fenced backyard offering privacy and room to enjoy the outdoors. Don't miss this opportunity to own a lovely home with timeless charm and modern comfort!
Listing Information
Property Type: Residential, Single Family Residence
Status: Active
Bedrooms: 3
Bathrooms: 2
Lot Size: 0.16 Acres
Square Feet: 1,282 sq ft
Year Built: 2005
Garage: Yes
Stories: 1 Story
Construction: Block,Stucco
Subdivision: Arbor Ridge Unit 03
Foundation: Slab
County: Volusia
School Information
Elementary: Timbercrest Elem
Middle: Galaxy Middle
High: Deltona High
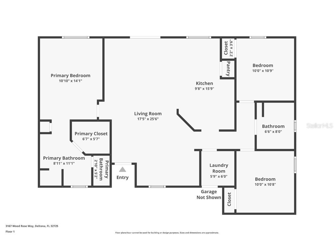
Room Information
Main Floor
Bathroom 2: 8x6.6
Laundry: 6x5.9
Bedroom 3: 10.8x10.1
Bedroom 2: 10.9x10.1
Primary Bathroom: 11.11x8.11
Primary Bedroom: 14.1x10.1
Kitchen: 15.9x9.8
Dining Room:
Living Room: 25.6x17.5
Bathrooms
Full Baths: 2
Additonal Room Information
Laundry: Inside, Laundry Room
Interior Features
Appliances: Dishwasher, Microwave, Range, Refrigerator
Flooring: Carpet,Tile
Additional Interior Features: Split Bedrooms, Open Floorplan, Main Level Primary
Utilities
Water: Public
Sewer: Public Sewer
Other Utilities: Cable Available,Electricity Available
Cooling: Central Air
Heating: Central
Exterior / Lot Features
Attached Garage: Attached Garage
Garage Spaces: 2
Parking Description: driveway
Roof: Shingle
Pool: Association, Community
Additional Exterior/Lot Features: Landscaped
Community Features
Community Features: Pool, Sidewalks, Playground
Association Amenities: Pool, Playground, Basketball Court
Homeowners Association: Yes
HOA Dues: $185 / Semi-Annually
Driving Directions
Start in downtown Orlando (e.g., Lake Eola area). Get on I-4 East via the nearest on-ramp (toward Daytona Beach). Continue on I-4 E for ~20 miles through eastern Orange County. Take Exit 126 for FL-472 toward DeLand/Deltona. Merge onto FL-472 East, continue ~6 miles toward Deltona. FL-472 ends at Howland Boulevard. travelmath.com Turn right onto Howland Boulevard (CR-4145) and follow it south about 1–2 miles. Turn left onto Wood Rose Way, then follow it to 3167 Wood Rose Way, your destination will be on the left.
Financial Considerations
Tax/Property ID: 8105-23-00-2420
Tax Amount: 4810
Tax Year: 2024
A broker reciprocity listing courtesy: REAL BROKER, LLC
Based on information provided by Stellar MLS as distributed by the MLS GRID. Information from the Internet Data Exchange is provided exclusively for consumers’ personal, non-commercial use, and such information may not be used for any purpose other than to identify prospective properties consumers may be interested in purchasing. This data is deemed reliable but is not guaranteed to be accurate by Edina Realty, Inc., or by the MLS. Edina Realty, Inc., is not a multiple listing service (MLS), nor does it offer MLS access.
Copyright 2026 Stellar MLS as distributed by the MLS GRID. All Rights Reserved.
Payment Calculator
Interest rate and annual percentage rate (APR) are based on current market conditions, are for informational purposes only, are subject to change without notice and may be subject to pricing add-ons related to property type, loan amount, loan-to-value, credit score and other variables. Estimated closing costs used in the APR calculation are assumed to be paid by the borrower at closing. If the closing costs are financed, the loan, APR and payment amounts will be higher. If the down payment is less than 20%, mortgage insurance may be required and could increase the monthly payment and APR. Contact us for details. Additional loan programs may be available. Accuracy is not guaranteed, and all products may not be available in all borrower's geographical areas and are based on their individual situation. This is not a credit decision or a commitment to lend.
Sales History & Tax Summary for 3167 Wood Rose Way
Sales History
| Date | Price | |
|---|---|---|
| Currently not available. | ||
Tax Summary
| Tax Year | Estimated Market Value | Total Tax |
|---|---|---|
| Currently not available. | ||
Data powered by ATTOM Data Solutions. Copyright© 2026. Information deemed reliable but not guaranteed.
Schools
Schools nearby 3167 Wood Rose Way
| Schools in attendance boundaries | Grades | Distance | Rating |
|---|---|---|---|
| Loading... | |||
| Schools nearby | Grades | Distance | Rating |
|---|---|---|---|
| Loading... | |||
Data powered by ATTOM Data Solutions. Copyright© 2026. Information deemed reliable but not guaranteed.
The schools shown represent both the assigned schools and schools by distance based on local school and district attendance boundaries. Attendance boundaries change based on various factors and proximity does not guarantee enrollment eligibility. Please consult your real estate agent and/or the school district to confirm the schools this property is zoned to attend. Information is deemed reliable but not guaranteed.
SchoolDigger ® Rating
The SchoolDigger rating system is a 1-5 scale with 5 as the highest rating. SchoolDigger ranks schools based on test scores supplied by each state's Department of Education. They calculate an average standard score by normalizing and averaging each school's test scores across all tests and grades.
Coming soon properties will soon be on the market, but are not yet available for showings.