3180 Wiltshire Avenue Spring Hill, FL 34608
For Sale MLS# TB8448211
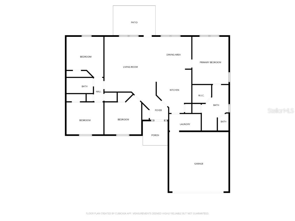
4 beds 2 baths 1,775 sq ft Single Family
Details for 3180 Wiltshire Avenue
MLS# TB8448211
Description for 3180 Wiltshire Avenue, Spring Hill, FL, 34608
One or more photo(s) has been virtually staged. Welcome to 3180 Wiltshire Ave, Spring Hill, FL 34608 — a fully renovated home that blends modern upgrades with everyday comfort. This move-in-ready property features a brand-new roof, new AC unit, and a new water heater, offering peace of mind for years to come. Inside, you'll find elegant new porcelain tile flooring throughout, along with freshly remodeled bathrooms and a stylish kitchen equipped with new cabinets, quartz countertops, and stainless steel appliances including a stove, dishwasher, and microwave. The home has been freshly painted inside and out, creating a clean, inviting atmosphere. Outside, the property offers a new PVC privacy fence along the right side and a gated PVC entrance on the left, ideal for secure access and curb appeal. The septic tank has been recently emptied, and the home is located in a non-flood zone, which means added security and potential savings on insurance. With no HOA restrictions, you’ll enjoy the freedom to personalize your space. This home is ideally situated near some of Spring Hill’s most popular attractions. Weeki Wachee Springs State Park, known for its natural springs and mermaid shows, is just 5.5 miles away. Nature Coast Botanical Gardens, a peaceful retreat with themed gardens and walking paths, is only 3.2 miles from the property. Delta Woods Park, offering tennis courts, trails, and playgrounds, is just 2.5 miles away. For shopping and dining, Spring Hill Drive is less than 2 miles away, and the Suncoast Parkway (FL-589) is approximately 6 miles, making commuting to Tampa and surrounding areas easy and convenient. Whether you're a first-time buyer, retiree, or investor, this turnkey home offers style, location, and value. Schedule your private showing today and discover the comfort and style that 3180 Wiltshire Ave provides.
Listing Information
Property Type: Residential, Single Family Residence
Status: Active
Bedrooms: 4
Bathrooms: 2
Lot Size: 0.25 Acres
Square Feet: 1,775 sq ft
Year Built: 2006
Garage: Yes
Stories: 1 Story
Construction: Block,Stucco
Subdivision: Spring Hill
Foundation: Concrete Perimeter
County: Hernando
Room Information
Main Floor
Living Room:
Primary Bedroom:
Primary Bathroom:
Kitchen:
Bathroom 1:
Bathrooms
Full Baths: 2
Additonal Room Information
Laundry: Inside
Interior Features
Appliances: Dishwasher, Microwave, Range, Refrigerator
Flooring: Tile
Doors/Windows: Aluminum Frames
Additional Interior Features: Ceiling Fan(s), Split Bedrooms, Eat-In Kitchen, Main Level Primary, Open Floorplan
Utilities
Water: Public
Sewer: Septic Tank
Other Utilities: Electricity Available,Electricity Connected,Water Available,Water Connected
Cooling: Ceiling Fan(s), Central Air
Heating: Central
Exterior / Lot Features
Garage Spaces: 2
Roof: Shingle
Lot Dimensions: 86x125
Fencing: Vinyl, Wood
Additional Exterior/Lot Features: Rain Gutters, Sprinkler/Irrigation, Garden
Driving Directions
From US-19 or Suncoast Parkway, head east or west toward Spring Hill Drive. Turn onto Mariner Boulevard, then take a right onto Wiltshire Avenue. The property will be on your left-hand side.
Financial Considerations
Terms: Cash,Conventional,Other
Tax/Property ID: R32-323-17-5150-0948-0060
Tax Amount: 4475
Tax Year: 2024
A broker reciprocity listing courtesy: AVISTA BAY REALTY, LLC
Based on information provided by Stellar MLS as distributed by the MLS GRID. Information from the Internet Data Exchange is provided exclusively for consumers’ personal, non-commercial use, and such information may not be used for any purpose other than to identify prospective properties consumers may be interested in purchasing. This data is deemed reliable but is not guaranteed to be accurate by Edina Realty, Inc., or by the MLS. Edina Realty, Inc., is not a multiple listing service (MLS), nor does it offer MLS access.
Copyright 2025 Stellar MLS as distributed by the MLS GRID. All Rights Reserved.
Payment Calculator
Interest rate and annual percentage rate (APR) are based on current market conditions, are for informational purposes only, are subject to change without notice and may be subject to pricing add-ons related to property type, loan amount, loan-to-value, credit score and other variables. Estimated closing costs used in the APR calculation are assumed to be paid by the borrower at closing. If the closing costs are financed, the loan, APR and payment amounts will be higher. If the down payment is less than 20%, mortgage insurance may be required and could increase the monthly payment and APR. Contact us for details. Additional loan programs may be available. Accuracy is not guaranteed, and all products may not be available in all borrower's geographical areas and are based on their individual situation. This is not a credit decision or a commitment to lend.
Sales History & Tax Summary for 3180 Wiltshire Avenue
Sales History
| Date | Price | Change |
|---|---|---|
| Currently not available. | ||
Tax Summary
| Tax Year | Estimated Market Value | Total Tax |
|---|---|---|
| Currently not available. | ||
Data powered by ATTOM Data Solutions. Copyright© 2025. Information deemed reliable but not guaranteed.
Schools
Schools nearby 3180 Wiltshire Avenue
| Schools in attendance boundaries | Grades | Distance | Rating |
|---|---|---|---|
| Loading... | |||
| Schools nearby | Grades | Distance | Rating |
|---|---|---|---|
| Loading... | |||
Data powered by ATTOM Data Solutions. Copyright© 2025. Information deemed reliable but not guaranteed.
The schools shown represent both the assigned schools and schools by distance based on local school and district attendance boundaries. Attendance boundaries change based on various factors and proximity does not guarantee enrollment eligibility. Please consult your real estate agent and/or the school district to confirm the schools this property is zoned to attend. Information is deemed reliable but not guaranteed.
SchoolDigger ® Rating
The SchoolDigger rating system is a 1-5 scale with 5 as the highest rating. SchoolDigger ranks schools based on test scores supplied by each state's Department of Education. They calculate an average standard score by normalizing and averaging each school's test scores across all tests and grades.
Coming soon properties will soon be on the market, but are not yet available for showings.