$712,990
Off-Market Date: 09/13/20253186 Voyager Avenue Saint Cloud, FL 34771
Pending MLS# G5102060
4 beds 4 baths 2,364 sq ft Single Family
Details for 3186 Voyager Avenue
MLS# G5102060
Description for 3186 Voyager Avenue, Saint Cloud, FL, 34771
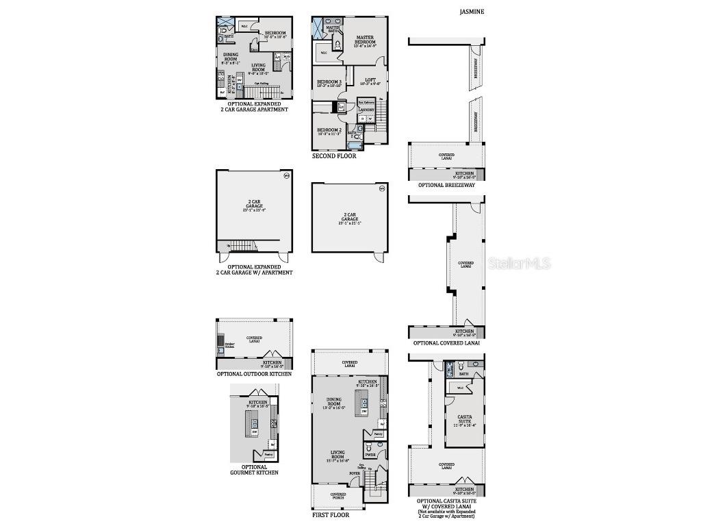
One or more photo(s) has been virtually staged. Under Construction. Located in the sought-after community of Weslyn Park at Sunbridge, this Jasmine with In-Law Suite floor plan features 4 bedrooms, 3.5 baths, and a 2-car garage. Designed with flexibility and function in mind, this home includes a private in-law suite with its own full bath and separate entry—ideal for multigenerational living or hosting guests.
Listing Information
Property Type: Residential, Single Family Residence
Status: Pending
Bedrooms: 4
Bathrooms: 4
Lot Size: 0.15 Acres
Square Feet: 2,364 sq ft
Year Built: 2026
Garage: Yes
Stories: 2 Story
Construction: Block,HardiPlank Type,Wood Frame
Construction Display: New Construction
Subdivision: Weslyn Park
Builder: Craft Homes
Foundation: Slab
County: Osceola
Construction Status: Under Construction
School Information
Elementary: Narcoossee Elementary
Middle: Narcoossee Middle
High: Harmony High
Room Information
Main Floor
Kitchen: 16.5x9.1
Living Room: 16.8x15.7
Dining Room: 16.5x13.2
Upper Floor
Bedroom 3: 10.1x10.3
Bedroom 2: 11.3x10.3
Primary Bedroom: 14.9x13.6
Bathrooms
Full Baths: 3
1/2 Baths: 1
Additonal Room Information
Laundry: Inside, Laundry Room
Interior Features
Appliances: Exhaust Fan, Range Hood, Built-In Oven, Cooktop, Dishwasher, Microwave, Range
Flooring: Ceramic Tile
Additional Interior Features: Walk-In Closet(s), Open Floorplan
Utilities
Water: Public
Sewer: Public Sewer
Other Utilities: Electricity Available
Cooling: Central Air
Heating: Central, Electric
Exterior / Lot Features
Attached Garage: Attached Garage
Garage Spaces: 2
Parking Description: Oversized, Garage Faces Rear
Roof: Shingle
Pool: Association, Community, In Ground
Lot Dimensions: 44x120
Additional Exterior/Lot Features: Sprinkler/Irrigation, Landscaped
Community Features
Community Features: Pool, Sidewalks, Playground
Security Features: Smoke Detector(s)
Association Amenities: Pool, Playground
HOA Dues Include: Pool(s)
Homeowners Association: Yes
HOA Dues: $138 / Monthly
Driving Directions
Narcoossee Road, turn right onto Cyrils Drive and continue for about 2.5 miles. Then, make a left onto Voyager Ave. You'll find the Weslyn Park Sales Center just ahead on your left at 6406 Rover Way St Cloud Fl 34771
Financial Considerations
Terms: Cash,Conventional,FHA,VA Loan
Tax/Property ID: 01-25-31-5541-0001-2460
Tax Amount: 1000
Tax Year: 2024
A broker reciprocity listing courtesy: OLYMPUS EXECUTIVE REALTY INC
Based on information provided by Stellar MLS as distributed by the MLS GRID. Information from the Internet Data Exchange is provided exclusively for consumers’ personal, non-commercial use, and such information may not be used for any purpose other than to identify prospective properties consumers may be interested in purchasing. This data is deemed reliable but is not guaranteed to be accurate by Edina Realty, Inc., or by the MLS. Edina Realty, Inc., is not a multiple listing service (MLS), nor does it offer MLS access.
Copyright 2026 Stellar MLS as distributed by the MLS GRID. All Rights Reserved.
Sales History & Tax Summary for 3186 Voyager Avenue
Sales History
| Date | Price | |
|---|---|---|
| Currently not available. | ||
Tax Summary
| Tax Year | Estimated Market Value | Total Tax |
|---|---|---|
| Currently not available. | ||
Data powered by ATTOM Data Solutions. Copyright© 2026. Information deemed reliable but not guaranteed.
Schools
Schools nearby 3186 Voyager Avenue
| Schools in attendance boundaries | Grades | Distance | Rating |
|---|---|---|---|
| Loading... | |||
| Schools nearby | Grades | Distance | Rating |
|---|---|---|---|
| Loading... | |||
Data powered by ATTOM Data Solutions. Copyright© 2026. Information deemed reliable but not guaranteed.
The schools shown represent both the assigned schools and schools by distance based on local school and district attendance boundaries. Attendance boundaries change based on various factors and proximity does not guarantee enrollment eligibility. Please consult your real estate agent and/or the school district to confirm the schools this property is zoned to attend. Information is deemed reliable but not guaranteed.
SchoolDigger ® Rating
The SchoolDigger rating system is a 1-5 scale with 5 as the highest rating. SchoolDigger ranks schools based on test scores supplied by each state's Department of Education. They calculate an average standard score by normalizing and averaging each school's test scores across all tests and grades.
Coming soon properties will soon be on the market, but are not yet available for showings.