3188 Legends Preserve Drive Daytona Beach, FL 32124
For Sale MLS# FC311253
5 beds 4 baths 4,693 sq ft Single Family
Details for 3188 Legends Preserve Drive
MLS# FC311253
Description for 3188 Legends Preserve Drive, Daytona Beach, FL, 32124
The PINNACLE of Luxury Living – 5 Bed, 4 Bath, 4,693 SqFt, Preserve & Pond View, 2024 Build!! Welcome to an extraordinary, newly built luxury home where no detail has been overlooked. Perfectly positioned in one of the area’s most desirable new communities, this masterpiece presents high-end finishes throughout, a meticulously landscaped yard with a three-car garage, a fully fenced backyard, and no rear neighbors—just tranquil preserve views and a serene pond backdrop. Step inside to tray ceilings, luxury vinyl plank flooring, and designer fixtures in every room, setting the tone for a home that is truly one of a kind. The expansive floor plan flows effortlessly through a formal dining room, an elegant living area, and into a chef’s dream kitchen. Outfitted with gleaming quartz countertops, an enormous center island, dual built-in ovens, a cooktop with hood vent, and a butler’s pantry featuring a second refrigerator, coffee bar, and walk-in pantry—this kitchen is STUNNING! The first-floor primary suite is an absolute showstopper, featuring plush carpet, tray ceiling accents, and a master bathroom that belongs in a magazine—highlighted by a glass-enclosed rain shower with built-in bench, a soaking tub that commands attention, private water closet, and dual quartz vanities. Additional upgrades include a bidet system for added comfort and convenience. The his-and-hers walk-in closet layout completes this luxurious retreat. Also on the main level is a second guest bedroom and full bath—complete with its own bidet—making it ideal for multigenerational living or hosting guests. The real fun starts upstairs—where a fully equipped second kitchen, spacious game room, and family lounge await. Perfect for entertaining or relaxed nights in, this upper-level living space adds incredible versatility. Upstairs also offers three additional bedrooms and two full bathrooms, creating room for everyone and everything. Enjoy Florida living year-round on the screened-in back patio overlooking the peaceful preserve—a private, resort-like setting. Plus, the outdoor living area has been pre-prepped for a full outdoor kitchen, giving you the perfect foundation to create your dream entertaining space. Just minutes from the area’s best beaches, dining, and shopping, this home is unlike anything else on the market. From top to bottom, it radiates style, comfort, and modern luxury—and it’s ready to welcome its new owner. Don’t wait—homes of this caliber in a location like this don’t come around often. Schedule your private tour today and prepare to fall in love!
Listing Information
Property Type: Residential, Single Family Residence
Status: Active
Bedrooms: 5
Bathrooms: 4
Lot Size: 0.17 Acres
Square Feet: 4,693 sq ft
Year Built: 2024
Garage: Yes
Stories: 2 Story
Construction: Block,Concrete,Stucco
Construction Display: New Construction
Subdivision: Legends Preserve Ph 1
Builder: Jones Homes USA
Foundation: Slab
County: Volusia
Construction Status: New Construction
School Information
Elementary: Champion Elementary School
Middle: David C Hinson Sr Middle
High: Mainland High School
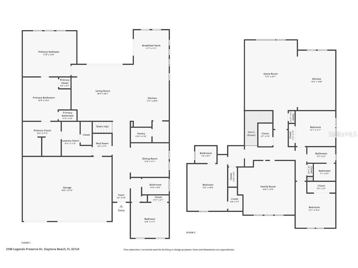
Room Information
Main Floor
Kitchen: 25.8x11.7
Primary Bathroom: 14.4x15.9
Primary Bedroom: 15x17.8
Laundry: 11.3x9.11
Dinette: 11.1x11.7
Dining Room: 11.1x12.6
Living Room: 18.7x20.3
Porch:
Bedroom 2: 11.7x12.6
Upper Floor
Bedroom 5: 11.7x13.1
Bedroom 4: 15.3x13.1
Bedroom 3: 18.6x13.2
Family Room: 17.9x18.9
Kitchen: 19.8x12.4
Game Room: 23.1x17.2
Bathrooms
Full Baths: 4
Additonal Room Information
Laundry: Inside, Laundry Room
Interior Features
Appliances: Range Hood, Refrigerator, Dishwasher, Cooktop, Wine Refrigerator, Built-In Oven
Flooring: Carpet,Ceramic Tile,Vinyl
Additional Interior Features: Ceiling Fan(s), Eat-In Kitchen, Split Bedrooms, Walk-In Closet(s), Tray Ceiling(s), Built-in Features, Open Floorplan, High Ceilings, Wood Cabinets, Separate/Formal Dining Room, Main Level Primary, Solid Surface Counters, Stone Counters
Utilities
Water: Public
Sewer: Public Sewer
Other Utilities: Cable Available,Electricity Connected,High Speed Internet Available,Sewer Connected,Underground Utilities,Water Connected
Cooling: Central Air, Ceiling Fan(s)
Heating: Electric, Central
Exterior / Lot Features
Attached Garage: Attached Garage
Garage Spaces: 3
Roof: Shingle
Pool: Community
Lot View: Pond,Trees/Woods,Water
Lot Dimensions: 125x60
Fencing: Other
Additional Exterior/Lot Features: Lighting, Screened, Rear Porch, Covered, Landscaped
Community Features
Community Features: Pool, Sidewalks, Playground, Golf, Golf Carts OK
Homeowners Association: Yes
HOA Dues: $85 / Monthly
Driving Directions
From I-4 East, take exit 129, make a Left onto PGA Blvd, make RIGHT on International Golf Drive (LPGA International), make a Right on Scramble Drive into Legends Preserve community.
Financial Considerations
Terms: Cash,Conventional,Owner May Carry
Tax/Property ID: 5220-02-00-0610
Tax Amount: 2096
Tax Year: 2024
A broker reciprocity listing courtesy: COASTAL GATEWAY REAL ESTATE GR
Based on information provided by Stellar MLS as distributed by the MLS GRID. Information from the Internet Data Exchange is provided exclusively for consumers’ personal, non-commercial use, and such information may not be used for any purpose other than to identify prospective properties consumers may be interested in purchasing. This data is deemed reliable but is not guaranteed to be accurate by Edina Realty, Inc., or by the MLS. Edina Realty, Inc., is not a multiple listing service (MLS), nor does it offer MLS access.
Copyright 2026 Stellar MLS as distributed by the MLS GRID. All Rights Reserved.
Payment Calculator
Interest rate and annual percentage rate (APR) are based on current market conditions, are for informational purposes only, are subject to change without notice and may be subject to pricing add-ons related to property type, loan amount, loan-to-value, credit score and other variables. Estimated closing costs used in the APR calculation are assumed to be paid by the borrower at closing. If the closing costs are financed, the loan, APR and payment amounts will be higher. If the down payment is less than 20%, mortgage insurance may be required and could increase the monthly payment and APR. Contact us for details. Additional loan programs may be available. Accuracy is not guaranteed, and all products may not be available in all borrower's geographical areas and are based on their individual situation. This is not a credit decision or a commitment to lend.
Sales History & Tax Summary for 3188 Legends Preserve Drive
Sales History
| Date | Price | |
|---|---|---|
| Currently not available. | ||
Tax Summary
| Tax Year | Estimated Market Value | Total Tax |
|---|---|---|
| Currently not available. | ||
Data powered by ATTOM Data Solutions. Copyright© 2026. Information deemed reliable but not guaranteed.
Schools
Schools nearby 3188 Legends Preserve Drive
| Schools in attendance boundaries | Grades | Distance | Rating |
|---|---|---|---|
| Loading... | |||
| Schools nearby | Grades | Distance | Rating |
|---|---|---|---|
| Loading... | |||
Data powered by ATTOM Data Solutions. Copyright© 2026. Information deemed reliable but not guaranteed.
The schools shown represent both the assigned schools and schools by distance based on local school and district attendance boundaries. Attendance boundaries change based on various factors and proximity does not guarantee enrollment eligibility. Please consult your real estate agent and/or the school district to confirm the schools this property is zoned to attend. Information is deemed reliable but not guaranteed.
SchoolDigger ® Rating
The SchoolDigger rating system is a 1-5 scale with 5 as the highest rating. SchoolDigger ranks schools based on test scores supplied by each state's Department of Education. They calculate an average standard score by normalizing and averaging each school's test scores across all tests and grades.
Coming soon properties will soon be on the market, but are not yet available for showings.