32 Royal Coachman Street Lake Wales, FL 33898
For Sale MLS# K4902761
2 beds 1 baths 994 sq ft Single Family
Details for 32 Royal Coachman Street
MLS# K4902761
Description for 32 Royal Coachman Street, Lake Wales, FL, 33898
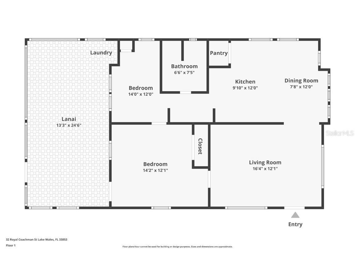
This 2 Bed room 1 bath home (just across the road from Saddlebag Lake) Is your new winter retreat or year around home. Saddlebag Lake is a community in which you OWN THE LAND. That means low HOA fees. Your new home is a lovely well maintained, turn key FULLY FURNISHED and move-in ready home. Just bring your clothes unpack and start enjoying the resort life style. When you walk through the front door you will notice how cheerful and bright it is. Large Living room for entertaining. Kitchen and dining area 12x18, with full compliment of Appliances. The Spacious lanai affords you a peaceful place to enjoy your morning coffee. Or maybe walk outside and sit on you patio under your GAZIBO. Of Course a shed is included for your workshop and yard tools. After breakfast take off on your GOLF CART (that is included with your home). Your next stop could be fishing and boating on Saddlebag Lake, or go for a swim in the heated community pool, play a game of tennis or pickle ball, enjoy the sauna or hot tub, or get to know your neighbors at the planned activities in the clubhouse. Or maybe you'd enjoy a game of pool in the rec room, or going to the driving range to practice your swing. The resort is pet friendly, with a dog park at the back. There's even a beach house with commercial grade kitchen that you can reserve at no cost for private events. With such a great home and all there is to do here, it won't last long so call now for your private tour!
Listing Information
Property Type: Residential, Manufactured Home
Status: Active
Bedrooms: 2
Bathrooms: 1
Lot Size: 0.11 Acres
Square Feet: 994 sq ft
Year Built: 1980
Stories: 1 Story
Construction: Vinyl Siding
Subdivision: Saddlebag Lake
Foundation: Slab
County: Polk
Room Information
Main Floor
Florida Room: 12x23
Bathroom 1: 6x11
Bedroom 2: 12x14
Primary Bedroom: 12x8
Kitchen: 18x12
Living Room: 12x16
Bathrooms
Full Baths: 1
Additonal Room Information
Laundry: Inside
Interior Features
Appliances: Electric Water Heater, Range Hood, Washer, Dryer, Range, Refrigerator
Flooring: Carpet,Laminate
Doors/Windows: Blinds
Additional Interior Features: Main Level Primary, Wood Cabinets, Built-in Features
Utilities
Water: Private
Sewer: Private Sewer
Other Utilities: Electricity Connected,Sewer Connected,Water Connected
Cooling: Central Air
Heating: Electric, Central
Exterior / Lot Features
Roof: Metal
Pool: Community
Lot View: Lake,Water
Additional Exterior/Lot Features: Awning(s), Patio, Landscaped
Out Buildings: Gazebo
Community Features
Community Features: Pool, Tennis Court(s), Clubhouse, Lake, Boat Facilities, Dog Park, Gated, Fishing, Fitness, Golf Carts OK
Security Features: Gated Community
HOA Dues Include: Road Maintenance, Trash, Water, Security, Sewer
Homeowners Association: Yes
HOA Dues: $680 / Quarterly
Driving Directions
From Lake Wales, drive east on Hwy. 60 to Saddlebag Lake Rd and make a left (see resort sign). Follow to the office, ring bell on porch and let them know who you are and where you are going, they will let you in remotely. Once through the gate, follow Saddlebag Trail , Turn right onto Beaverkill Road, Turn Left onto Royal coachman, follow road to #32 on left
Financial Considerations
Terms: Cash
Tax/Property ID: 28-30-01-939010-025040
Tax Amount: 924.42
Tax Year: 2023
A broker reciprocity listing courtesy: BENDER REALTY, LLC
Based on information provided by Stellar MLS as distributed by the MLS GRID. Information from the Internet Data Exchange is provided exclusively for consumers’ personal, non-commercial use, and such information may not be used for any purpose other than to identify prospective properties consumers may be interested in purchasing. This data is deemed reliable but is not guaranteed to be accurate by Edina Realty, Inc., or by the MLS. Edina Realty, Inc., is not a multiple listing service (MLS), nor does it offer MLS access.
Copyright 2025 Stellar MLS as distributed by the MLS GRID. All Rights Reserved.
Payment Calculator
Interest rate and annual percentage rate (APR) are based on current market conditions, are for informational purposes only, are subject to change without notice and may be subject to pricing add-ons related to property type, loan amount, loan-to-value, credit score and other variables. Estimated closing costs used in the APR calculation are assumed to be paid by the borrower at closing. If the closing costs are financed, the loan, APR and payment amounts will be higher. If the down payment is less than 20%, mortgage insurance may be required and could increase the monthly payment and APR. Contact us for details. Additional loan programs may be available. Accuracy is not guaranteed, and all products may not be available in all borrower's geographical areas and are based on their individual situation. This is not a credit decision or a commitment to lend.
Sales History & Tax Summary for 32 Royal Coachman Street
Sales History
| Date | Price | Change |
|---|---|---|
| Currently not available. | ||
Tax Summary
| Tax Year | Estimated Market Value | Total Tax |
|---|---|---|
| Currently not available. | ||
Data powered by ATTOM Data Solutions. Copyright© 2025. Information deemed reliable but not guaranteed.
Schools
Schools nearby 32 Royal Coachman Street
| Schools in attendance boundaries | Grades | Distance | Rating |
|---|---|---|---|
| Loading... | |||
| Schools nearby | Grades | Distance | Rating |
|---|---|---|---|
| Loading... | |||
Data powered by ATTOM Data Solutions. Copyright© 2025. Information deemed reliable but not guaranteed.
The schools shown represent both the assigned schools and schools by distance based on local school and district attendance boundaries. Attendance boundaries change based on various factors and proximity does not guarantee enrollment eligibility. Please consult your real estate agent and/or the school district to confirm the schools this property is zoned to attend. Information is deemed reliable but not guaranteed.
SchoolDigger ® Rating
The SchoolDigger rating system is a 1-5 scale with 5 as the highest rating. SchoolDigger ranks schools based on test scores supplied by each state's Department of Education. They calculate an average standard score by normalizing and averaging each school's test scores across all tests and grades.
Coming soon properties will soon be on the market, but are not yet available for showings.