$190,000
3217 Cherry Lane N Fargo, ND 58102
For Sale MLS# 6819651
2 beds 2 baths 1,228 sq ft Townhouse/Twinhome
Details for 3217 Cherry Lane N
MLS# 6819651
Description for 3217 Cherry Lane N, Fargo, ND, 58102
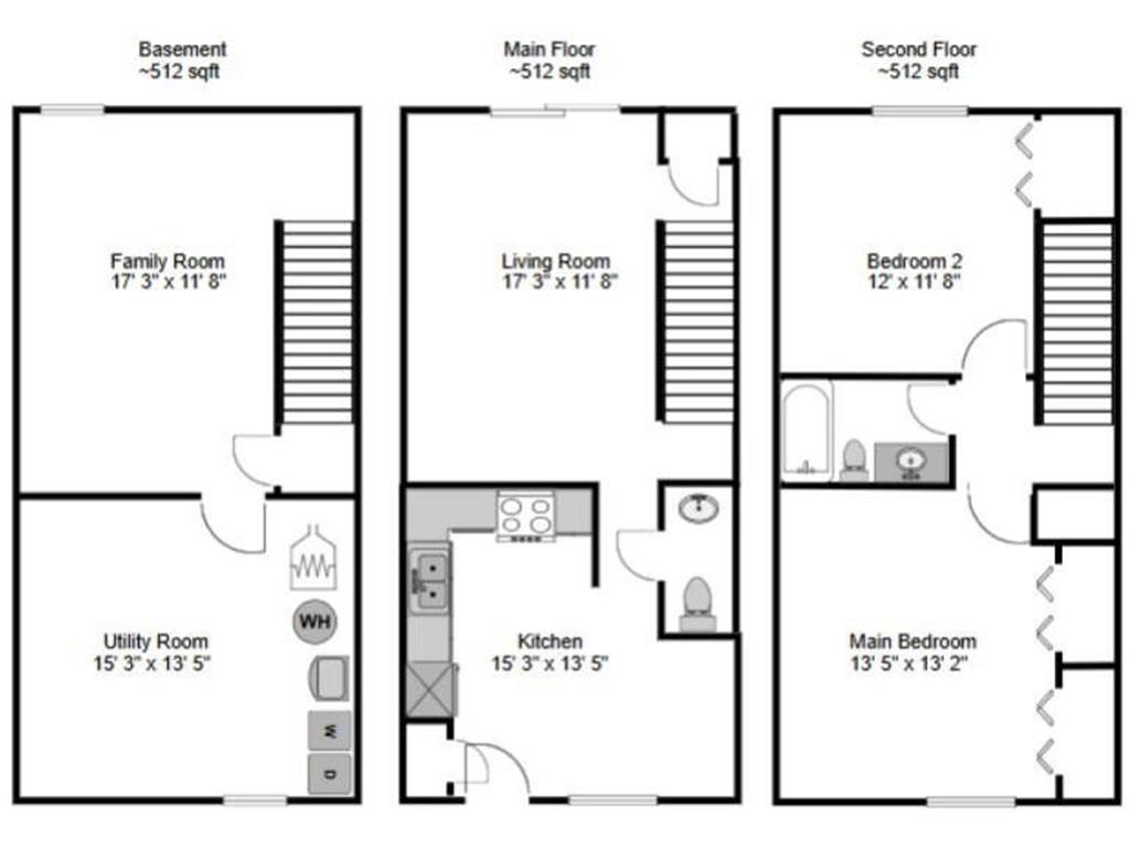
Move-in ready 2-story townhome in North Fargo with a finished basement and detached garage. This 2 bedroom, 1.5 bath home offers 1,536 total square feet of functional living space.The main floor features a comfortable living room, eat in kitchen, and a convenient half bath. Upstairs you’ll find two generously sized bedrooms and a full bathroom on the same level. The finished basement adds a cozy family room plus a large utility/storage room with plenty of space for laundry, hobbies, or a home gym.Outside, there’s a detached 1-stall garage, with the home located in an established neighborhood with easy access to shopping, schools, and major roads. Current HOA dues are $167.50/month.If you’re looking for low-maintenance living with extra space and a practical layout, this townhome at 3217 Cherry Ln N, Fargo is ready for its next owner.
Listing Information
Property Type: Residential, Side by Side
Status: Active
Bedrooms: 2
Bathrooms: 2
Lot Size: 2.94 Acres
Square Feet: 1,228 sq ft
Year Built: 1973
Foundation: 512 sq ft
Garage: Yes
Stories: 2 Stories
Property Attached: Yes
Subdivision: Vanradens
County: Cass-ND
Days On Market: 27
Construction Status: Previously Owned
School Information
District: ND09001 - Fargo
Room Information
Main Floor
Kitchen: 15x13
Upper Floor
Bedroom 1: 13x13
Bedroom 2: 12x12
Lower Floor
Family Room: 17x11
Utility Room: 15x13
Bathrooms
Full Baths: 1
1/2 Baths: 1
Additonal Room Information
Family: Lower Level
Bath Description: Main Floor 1/2 Bath,Upper Level Full Bath
Interior Features
Square Footage above: 1,024 sq ft
Square Footage below: 204 sq ft
Appliances: Washer, Cooktop, Dishwasher, Disposal, Dryer, Exhaust Fan/Hood, Microwave, Range, Refrigerator
Basement: Full
Additional Interior Features: Washer/Dryer Hookup, Tile Floors
Utilities
Water: City Water/Connected
Sewer: City Sewer/Connected
Cooling: Central
Heating: Forced Air, Natural Gas
Exterior / Lot Features
Garage Spaces: 1
Parking Description: Detached Garage, Garage Dimensions - 22x14, Garage Sq Ft - 308.0
Exterior: Vinyl
Lot Dimensions: 319x329
Zoning: Residential-Multi-Family
Fencing: Wood
Additional Exterior/Lot Features: Porch, Multi-Level
Community Features
HOA Dues Include: Snow Removal, Hazard Insurance, Lawn Care, Outside Maintenance
Pets Allowed: Yes
Homeowners Association: Yes
Association Name: At Cherry Place Condominium Association
HOA Dues: $168 / Monthly
Driving Directions
From North on University Drive turn right on 32nd Ave N. Turn left on Cherry Ln. Turn right into parking
Financial Considerations
Other Annual Tax: $462
Covenants/Deed Restrictions: Pets - Dogs Allowed, Pets - Cats Allowed
Tax/Property ID: 01354000220000
Tax Amount: 2384
Tax Year: 2024
HomeStead Description: Non-Homesteaded
A broker reciprocity listing courtesy: Jeff Hagel
The data relating to real estate for sale on this web site comes in part from the Broker Reciprocity℠ Program of the Regional Multiple Listing Service of Minnesota, Inc. Real estate listings held by brokerage firms other than Edina Realty, Inc. are marked with the Broker Reciprocity℠ logo or the Broker Reciprocity℠ thumbnail and detailed information about them includes the name of the listing brokers. Edina Realty, Inc. is not a Multiple Listing Service (MLS), nor does it offer MLS access. This website is a service of Edina Realty, Inc., a broker Participant of the Regional Multiple Listing Service of Minnesota, Inc. IDX information is provided exclusively for consumers personal, non-commercial use and may not be used for any purpose other than to identify prospective properties consumers may be interested in purchasing. Open House information is subject to change without notice. Information deemed reliable but not guaranteed.
Copyright 2025 Regional Multiple Listing Service of Minnesota, Inc. All Rights Reserved.
Payment Calculator
Interest rate and annual percentage rate (APR) are based on current market conditions, are for informational purposes only, are subject to change without notice and may be subject to pricing add-ons related to property type, loan amount, loan-to-value, credit score and other variables. Estimated closing costs used in the APR calculation are assumed to be paid by the borrower at closing. If the closing costs are financed, the loan, APR and payment amounts will be higher. If the down payment is less than 20%, mortgage insurance may be required and could increase the monthly payment and APR. Contact us for details. Additional loan programs may be available. Accuracy is not guaranteed, and all products may not be available in all borrower's geographical areas and are based on their individual situation. This is not a credit decision or a commitment to lend.
Sales History & Tax Summary for 3217 Cherry Lane N
Sales History
| Date | Price | Change |
|---|---|---|
| Currently not available. | ||
Tax Summary
| Tax Year | Estimated Market Value | Total Tax |
|---|---|---|
| Currently not available. | ||
Data powered by ATTOM Data Solutions. Copyright© 2025. Information deemed reliable but not guaranteed.
Schools
Schools nearby 3217 Cherry Lane N
| Schools in attendance boundaries | Grades | Distance | Rating |
|---|---|---|---|
| Loading... | |||
| Schools nearby | Grades | Distance | Rating |
|---|---|---|---|
| Loading... | |||
Data powered by ATTOM Data Solutions. Copyright© 2025. Information deemed reliable but not guaranteed.
The schools shown represent both the assigned schools and schools by distance based on local school and district attendance boundaries. Attendance boundaries change based on various factors and proximity does not guarantee enrollment eligibility. Please consult your real estate agent and/or the school district to confirm the schools this property is zoned to attend. Information is deemed reliable but not guaranteed.
SchoolDigger ® Rating
The SchoolDigger rating system is a 1-5 scale with 5 as the highest rating. SchoolDigger ranks schools based on test scores supplied by each state's Department of Education. They calculate an average standard score by normalizing and averaging each school's test scores across all tests and grades.
Coming soon properties will soon be on the market, but are not yet available for showings.