3225 Pine Club Drive Plant City, FL 33566
For Sale MLS# TB8444787
4 beds 2 baths 2,347 sq ft Single Family
Details for 3225 Pine Club Drive
MLS# TB8444787
Description for 3225 Pine Club Drive, Plant City, FL, 33566
One or more photo(s) has been virtually staged. Welcome home to this thoughtfully remodeled Walden Lakes retreat, tucked on a spacious corner lot surrounded by mature trees and fresh Florida air. The home features 4 bedrooms + a dedicated office with French doors. As you step inside, you’ll immediately feel the calm—natural light pouring in through skylights, wood and tile floors throughout, and a seamless flow from the living area to the screened lanai. The remodeled kitchen is the true heart of the home with endless solid wood custom cabinetry, sleek stainless steel appliances, and a breakfast bar perfect for casual mornings or afternoon chats. The primary suite offers quiet privacy with a soaker tub, walk-in shower, dual sinks, and lanai access for morning coffee outdoors. Two additional bedrooms and a renovated guest bath give everyone room to unwind. Recent upgrades include a newer roof, a new water heater, complete CPVC re-plumbing, and fresh paint throughout the entire house, ensuring peace of mind and a move-in-ready experience.
Listing Information
Property Type: Residential, Single Family Residence
Status: Active
Bedrooms: 4
Bathrooms: 2
Lot Size: 0.26 Acres
Square Feet: 2,347 sq ft
Year Built: 1989
Garage: Yes
Stories: 1 Story
Construction: Brick,Block
Property Attached: Yes
Subdivision: Walden Lake Unit 30 Ph Ii S
Foundation: Slab
County: Hillsborough
School Information
Elementary: Walden Lake-Hb
Middle: Tomlin-Hb
High: Plant City-Hb
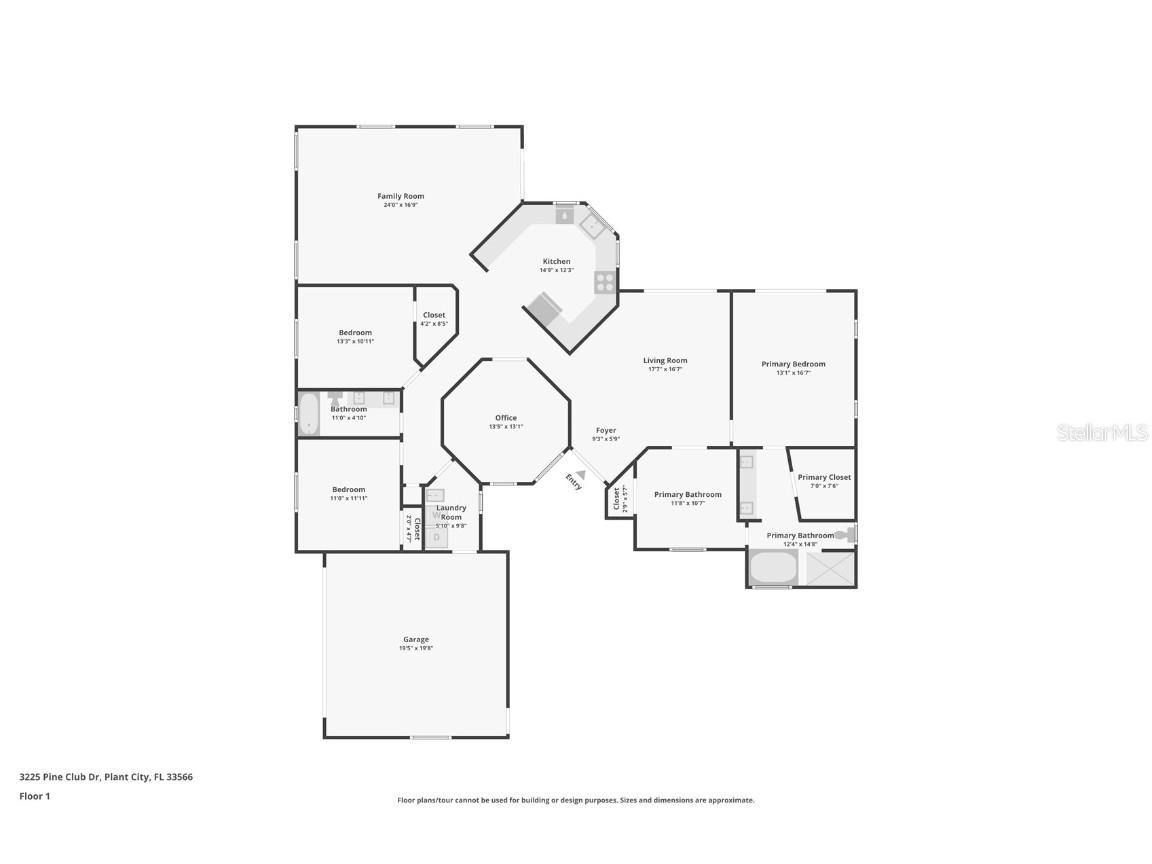
Room Information
Main Floor
Office: 12x12
Kitchen: 14x12
Living Room: 15x17
Family Room: 17x16
Primary Bedroom: 17x14
Bathrooms
Full Baths: 2
Additonal Room Information
Laundry: Laundry Room, Inside
Interior Features
Appliances: Electric Water Heater, Microwave, Range, Refrigerator, Dishwasher, Disposal
Flooring: Tile,Wood
Doors/Windows: Blinds, Skylight(s)
Additional Interior Features: Eat-In Kitchen, Walk-In Closet(s), Ceiling Fan(s), Vaulted Ceiling(s), High Ceilings, Attic, Tray Ceiling(s), Split Bedrooms, Skylights, Main Level Primary, Open Floorplan, Kitchen/Family Room Combo, Solid Surface Counters
Utilities
Water: Public
Sewer: Public Sewer
Other Utilities: Cable Available,High Speed Internet Available,Municipal Utilities,Sewer Connected,Underground Utilities,Water Connected
Cooling: Ceiling Fan(s), Central Air
Heating: Central
Exterior / Lot Features
Attached Garage: Attached Garage
Garage Spaces: 2
Parking Description: Garage, driveway, Garage Door Opener, Covered
Roof: Shingle
Lot View: Garden,Trees/Woods
Lot Dimensions: 84x137
Fencing: Wood, fenced
Additional Exterior/Lot Features: French Patio Doors, Sprinkler/Irrigation, Front Porch, Rear Porch, Patio, Covered, Screened, Corner Lot, City Lot
Waterfront Details
Water Front Features: Lake Privileges
Community Features
Community Features: Street Lights, Lake, Playground, Dock, Sidewalks, Dog Park, Gated, Park, Fishing, Golf Carts OK, Recreation Area
Security Features: Security Lights, Secured Garage/Parking, Gated Community, Gated with Guard
Association Amenities: Recreation Facilities, Playground, Gated, Park
HOA Dues Include: Association Management, Security, Recreation Facilities
Homeowners Association: Yes
HOA Dues: $131 / Annually
Driving Directions
From I-4 to South to Cr 92 to N Turkey Creek Rd to Griffin Blvd to Pine Club Drive.
Financial Considerations
Terms: Cash,Conventional,FHA,VA Loan
Tax/Property ID: P-12-29-21-57D-000007-00020.0
Tax Amount: 5780.38
Tax Year: 2024
A broker reciprocity listing courtesy: REDFIN CORPORATION
Based on information provided by Stellar MLS as distributed by the MLS GRID. Information from the Internet Data Exchange is provided exclusively for consumers’ personal, non-commercial use, and such information may not be used for any purpose other than to identify prospective properties consumers may be interested in purchasing. This data is deemed reliable but is not guaranteed to be accurate by Edina Realty, Inc., or by the MLS. Edina Realty, Inc., is not a multiple listing service (MLS), nor does it offer MLS access.
Copyright 2025 Stellar MLS as distributed by the MLS GRID. All Rights Reserved.
Payment Calculator
Interest rate and annual percentage rate (APR) are based on current market conditions, are for informational purposes only, are subject to change without notice and may be subject to pricing add-ons related to property type, loan amount, loan-to-value, credit score and other variables. Estimated closing costs used in the APR calculation are assumed to be paid by the borrower at closing. If the closing costs are financed, the loan, APR and payment amounts will be higher. If the down payment is less than 20%, mortgage insurance may be required and could increase the monthly payment and APR. Contact us for details. Additional loan programs may be available. Accuracy is not guaranteed, and all products may not be available in all borrower's geographical areas and are based on their individual situation. This is not a credit decision or a commitment to lend.
Sales History & Tax Summary for 3225 Pine Club Drive
Sales History
| Date | Price | Change |
|---|---|---|
| Currently not available. | ||
Tax Summary
| Tax Year | Estimated Market Value | Total Tax |
|---|---|---|
| Currently not available. | ||
Data powered by ATTOM Data Solutions. Copyright© 2025. Information deemed reliable but not guaranteed.
Schools
Schools nearby 3225 Pine Club Drive
| Schools in attendance boundaries | Grades | Distance | Rating |
|---|---|---|---|
| Loading... | |||
| Schools nearby | Grades | Distance | Rating |
|---|---|---|---|
| Loading... | |||
Data powered by ATTOM Data Solutions. Copyright© 2025. Information deemed reliable but not guaranteed.
The schools shown represent both the assigned schools and schools by distance based on local school and district attendance boundaries. Attendance boundaries change based on various factors and proximity does not guarantee enrollment eligibility. Please consult your real estate agent and/or the school district to confirm the schools this property is zoned to attend. Information is deemed reliable but not guaranteed.
SchoolDigger ® Rating
The SchoolDigger rating system is a 1-5 scale with 5 as the highest rating. SchoolDigger ranks schools based on test scores supplied by each state's Department of Education. They calculate an average standard score by normalizing and averaging each school's test scores across all tests and grades.
Coming soon properties will soon be on the market, but are not yet available for showings.