323 Miami Lane Kissimmee, FL 34759
For Sale MLS# S5137506
3 beds 2 baths 1,318 sq ft Single Family
Details for 323 Miami Lane
MLS# S5137506
Description for 323 Miami Lane, Kissimmee, FL, 34759
Price improvement! This 3-bedroom, 2-bath home sits on over a quarter acre of fully fenced land, offering plenty of space to add a deck or pool. Major upgrades are already complete, including a 2018 roof and 2020 AC. Inside, you’ll find fresh interior and exterior paint, new tile flooring and blinds throughout. Enjoy your a beautifully updated kitchen with a new sink, faucets, and all-new Whirlpool appliances. Both bathrooms have been refreshed with new sinks, giving the home a clean and modern feel. Major upgrades are already complete, including a 2018 roof and 2020 AC, so you can move right in with peace of mind. Whether you’re just starting out or looking for a property with space to grow, this home is the perfect blend of comfort, value, and opportunity!
Listing Information
Property Type: Residential, Single Family Residence
Status: Active
Bedrooms: 3
Bathrooms: 2
Lot Size: 0.27 Acres
Square Feet: 1,318 sq ft
Year Built: 2002
Garage: Yes
Stories: 1 Story
Construction: Block,Stucco
Subdivision: Poinciana Nbrhd 02 Village 03
Foundation: Slab
County: Polk
School Information
Elementary: Palmetto Elementary
Middle: Lake Marion Creek Middle
High: Haines City Senior High
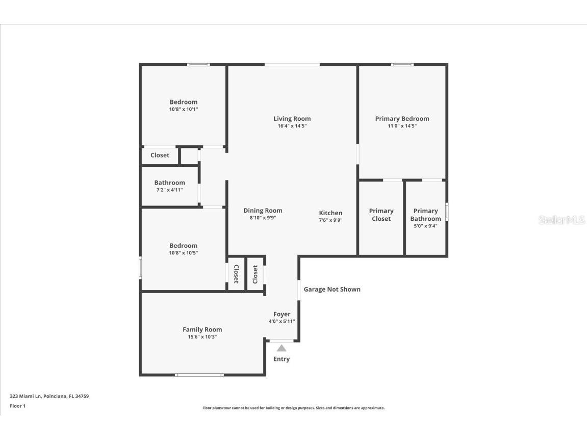
Room Information
Main Floor
Family Room: 10x15
Bedroom 3: 10x11
Bedroom 2: 10x11
Bathroom 1: 10x5
Primary Bedroom: 14x11
Kitchen: 10x8
Living Room: 15x16
Bathrooms
Full Baths: 2
Additonal Room Information
Laundry: Laundry Room
Interior Features
Appliances: Microwave, Range, Refrigerator, Dishwasher
Flooring: Tile
Doors/Windows: Blinds
Additional Interior Features: Ceiling Fan(s), Vaulted Ceiling(s), Separate/Formal Living Room, Attic
Utilities
Water: Public
Sewer: Public Sewer
Other Utilities: Electricity Connected
Cooling: Central Air, Ceiling Fan(s)
Heating: Central
Exterior / Lot Features
Attached Garage: Attached Garage
Garage Spaces: 2
Parking Description: driveway
Roof: Shingle
Pool: Community
Additional Exterior/Lot Features: Lighting
Out Buildings: Shed(s), Storage
Community Features
Community Features: Sidewalks, Pool, Playground, Fitness
HOA Dues Include: Internet, Cable TV, Pool(s)
Homeowners Association: Yes
HOA Dues: $90 / Monthly
Driving Directions
From 417, take exit 3 for Osceola Pkwy. Take the ramp to N Poinciana Blvd. Make a left onto Marigold Ave. Then a right onto Haines City Rd. Then a left onto Miami Ln, destination will be at the end on the left.
Financial Considerations
Terms: Cash,Conventional,FHA,VA Loan
Tax/Property ID: 28-27-13-933460-030020
Tax Amount: 2660.59
Tax Year: 2024
A broker reciprocity listing courtesy: KELLER WILLIAMS LEGACY REALTY
Based on information provided by Stellar MLS as distributed by the MLS GRID. Information from the Internet Data Exchange is provided exclusively for consumers’ personal, non-commercial use, and such information may not be used for any purpose other than to identify prospective properties consumers may be interested in purchasing. This data is deemed reliable but is not guaranteed to be accurate by Edina Realty, Inc., or by the MLS. Edina Realty, Inc., is not a multiple listing service (MLS), nor does it offer MLS access.
Copyright 2025 Stellar MLS as distributed by the MLS GRID. All Rights Reserved.
Payment Calculator
Interest rate and annual percentage rate (APR) are based on current market conditions, are for informational purposes only, are subject to change without notice and may be subject to pricing add-ons related to property type, loan amount, loan-to-value, credit score and other variables. Estimated closing costs used in the APR calculation are assumed to be paid by the borrower at closing. If the closing costs are financed, the loan, APR and payment amounts will be higher. If the down payment is less than 20%, mortgage insurance may be required and could increase the monthly payment and APR. Contact us for details. Additional loan programs may be available. Accuracy is not guaranteed, and all products may not be available in all borrower's geographical areas and are based on their individual situation. This is not a credit decision or a commitment to lend.
Sales History & Tax Summary for 323 Miami Lane
Sales History
| Date | Price | Change |
|---|---|---|
| Currently not available. | ||
Tax Summary
| Tax Year | Estimated Market Value | Total Tax |
|---|---|---|
| Currently not available. | ||
Data powered by ATTOM Data Solutions. Copyright© 2025. Information deemed reliable but not guaranteed.
Schools
Schools nearby 323 Miami Lane
| Schools in attendance boundaries | Grades | Distance | Rating |
|---|---|---|---|
| Loading... | |||
| Schools nearby | Grades | Distance | Rating |
|---|---|---|---|
| Loading... | |||
Data powered by ATTOM Data Solutions. Copyright© 2025. Information deemed reliable but not guaranteed.
The schools shown represent both the assigned schools and schools by distance based on local school and district attendance boundaries. Attendance boundaries change based on various factors and proximity does not guarantee enrollment eligibility. Please consult your real estate agent and/or the school district to confirm the schools this property is zoned to attend. Information is deemed reliable but not guaranteed.
SchoolDigger ® Rating
The SchoolDigger rating system is a 1-5 scale with 5 as the highest rating. SchoolDigger ranks schools based on test scores supplied by each state's Department of Education. They calculate an average standard score by normalizing and averaging each school's test scores across all tests and grades.
Coming soon properties will soon be on the market, but are not yet available for showings.