3233 Purple Martin Drive #122 Punta Gorda, FL 33950
For Sale MLS# C7512128
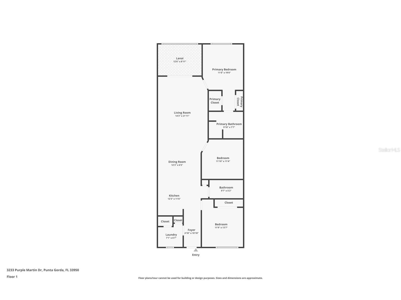
2 beds 2 baths 1,430 sq ft Condo
Details for 3233 Purple Martin Drive #122
MLS# C7512128
Description for 3233 Purple Martin Drive #122, Punta Gorda, FL, 33950
Impressive WATERFRONT 2 Bedroom *plus* Den/Office, 2 bathroom second floor FURNISHED unit. Located on a dead end street at ESTUARY AT PUNTA GORDA ISLES, in a desirable deed restricted community. This unit has a detached one car garage #122 with garage door opener and shelving- and a DEEDED DOCK #4. SAILBOAT ACCESS to Charlotte Harbor and on to the Gulf of Mexico. This impeccably maintained and updated unit has an open and split bedroom floor plan with Foyer, Great Room, Dining Area, well appointed Kitchen, Inside Laundry Room and and rear screened lanai. The spacious Kitchen features a tray ceiling, wood cabinets, granite counters, custom tile backsplash, double sink, stainless appliances, disposal and breakfast bar that seats 3/. Great counter and storage space. Appliances include a built in microwave, oven/range, dishwasher, double door refrigerator. The Kitchen is open to the large Great Room with Dining Area, diagonal lay floor tile, and sliding glass doors to the screened Lanai. The Inside Laundry room offers front loading washer and dryer, sink, cabinets and great counter space for folding. The Master Bedroom suite has a large window with great water view, tray ceiling, two double closets and private bathroom with his and hers sink, counter storage cabinet between the sinks and walk in shower. There is a generous sized guest bedroom with double closet. The spacious office/den is currently set up as a third bedroom. (no closet) The guest bathroom offers a tub/shower combination, granite counter and undermount sink. Your living space extends via sliding glass doors to the screened lanai which has a canal view and view of the Nature Preserve. Western exposure provides for incredible sunsets! Other features include: tray ceilings, crown molding, wood blinds, diagonal lay tile in the living areas, luxury vinyl plank in the bedrooms and office, retractable screen at the front door, hurricane impact windows, hurricane shutters along lanai, freshly painted, updated bathrooms, WiFi Nest thermostat . NEW per owner: HVAC 2023 with warranty to 2028, kitchen appliances 2020, commercial grade HWH 2020, washer and dryer 2021, garage door opener 2023, new lanai ceiling fan 2023, both bathroom sinks and faucets 2023, laundry room sink and faucet 2023, 4 newer expertly mounted smart TVs. *** Ask your agent for the attached FEATURES AND UPGRADES list*** This is a beautiful complex with Florida/Mediterranean style building, new tile roof after Hurricane Ian, paver driveway, walkways, pool deck. The pool and spa were fully renovated in June 2025. Strong HOA with fully funded reserves and no special assessments after any of the recent storms. Minutes from Golf, Fishermen's Village and historic downtown Punta Gorda shopping, dining, medical care, waterfront parks, walking and biking paths, boat ramps, art galleries, weekend farmer and artisan markets, Charlotte Harbor Event Center, downtown events and more! This is a beautiful condo and complex in a great???????????????????????????????????????? community!
Listing Information
Property Type: Residential, Condominium
Status: Active
Bedrooms: 2
Bathrooms: 2
Lot Size: 0.04 Acres
Square Feet: 1,430 sq ft
Year Built: 2004
Garage: Yes
Stories: 1 Story
Construction: Block,Stucco
Subdivision: Estuary At Punta Gorda Isles
Foundation: Slab
County: Charlotte
School Information
Elementary: Sallie Jones Elementary
Middle: Punta Gorda Middle
High: Charlotte High
Room Information
Main Floor
Porch: 6x12
Bedroom 2: 11x12
Primary Bedroom: 12x14
Office: 11x12
Kitchen: 12x13
Dining Room: 9x12
Great Room: 14x16
Bathrooms
Full Baths: 2
Additonal Room Information
Laundry: Inside, Laundry Room
Interior Features
Appliances: Electric Water Heater, Washer, Microwave, Range, Refrigerator, Dryer, Dishwasher, Disposal
Flooring: Luxury Vinyl,Tile
Doors/Windows: Blinds, Storm Window(s)
Additional Interior Features: Ceiling Fan(s), Built-in Features, Tray Ceiling(s), Walk-In Closet(s), Stone Counters, Wood Cabinets, High Ceilings, Living/Dining Room, Open Floorplan, Crown Molding
Utilities
Water: Public
Sewer: Public Sewer
Other Utilities: Electricity Connected,Municipal Utilities,Sewer Connected,Water Connected
Cooling: Ceiling Fan(s), Central Air
Heating: Central, Electric
Exterior / Lot Features
Garage Spaces: 1
Parking Description: Garage Door Opener, Garage
Roof: Tile
Pool: Heated, Community, Gunite, In Ground
Lot View: Canal,Water
Additional Exterior/Lot Features: Lighting, Screened, Rear Porch, Landscaped, City Lot, Dead End, Buyer Approval Required, Flood Zone, Near Golf Course
Waterfront Details
Water Front Features: Gulf Access, Canal Access
Community Features
Community Features: Water Access, Waterfront, Pool, Dock
HOA Dues Include: Water, Trash, Sewer, Association Management, Maintenance Structure, Insurance, Maintenance Grounds, Pest Control, Pool(s), Reserve Fund
Driving Directions
US 41 SOUTH.....RIGHT ON WEST MARION AVE.....LEFT ON BAL HARBOR BLVD.....LEFT ON AQUI ESTA.....RIGHT ON PURPLE MARTIN DRIVE...ESTUARY AT PUNTA GORDA ISLES IS ON THE RIGHT
Financial Considerations
Tax/Property ID: 412213727007
Tax Amount: 5494
Tax Year: 2024
A broker reciprocity listing courtesy: RE/MAX ALLIANCE GROUP
Based on information provided by Stellar MLS as distributed by the MLS GRID. Information from the Internet Data Exchange is provided exclusively for consumers’ personal, non-commercial use, and such information may not be used for any purpose other than to identify prospective properties consumers may be interested in purchasing. This data is deemed reliable but is not guaranteed to be accurate by Edina Realty, Inc., or by the MLS. Edina Realty, Inc., is not a multiple listing service (MLS), nor does it offer MLS access.
Copyright 2025 Stellar MLS as distributed by the MLS GRID. All Rights Reserved.
Payment Calculator
Interest rate and annual percentage rate (APR) are based on current market conditions, are for informational purposes only, are subject to change without notice and may be subject to pricing add-ons related to property type, loan amount, loan-to-value, credit score and other variables. Estimated closing costs used in the APR calculation are assumed to be paid by the borrower at closing. If the closing costs are financed, the loan, APR and payment amounts will be higher. If the down payment is less than 20%, mortgage insurance may be required and could increase the monthly payment and APR. Contact us for details. Additional loan programs may be available. Accuracy is not guaranteed, and all products may not be available in all borrower's geographical areas and are based on their individual situation. This is not a credit decision or a commitment to lend.
Sales History & Tax Summary for 3233 Purple Martin Drive #122
Sales History
| Date | Price | Change |
|---|---|---|
| Currently not available. | ||
Tax Summary
| Tax Year | Estimated Market Value | Total Tax |
|---|---|---|
| Currently not available. | ||
Data powered by ATTOM Data Solutions. Copyright© 2025. Information deemed reliable but not guaranteed.
Schools
Schools nearby 3233 Purple Martin Drive #122
| Schools in attendance boundaries | Grades | Distance | Rating |
|---|---|---|---|
| Loading... | |||
| Schools nearby | Grades | Distance | Rating |
|---|---|---|---|
| Loading... | |||
Data powered by ATTOM Data Solutions. Copyright© 2025. Information deemed reliable but not guaranteed.
The schools shown represent both the assigned schools and schools by distance based on local school and district attendance boundaries. Attendance boundaries change based on various factors and proximity does not guarantee enrollment eligibility. Please consult your real estate agent and/or the school district to confirm the schools this property is zoned to attend. Information is deemed reliable but not guaranteed.
SchoolDigger ® Rating
The SchoolDigger rating system is a 1-5 scale with 5 as the highest rating. SchoolDigger ranks schools based on test scores supplied by each state's Department of Education. They calculate an average standard score by normalizing and averaging each school's test scores across all tests and grades.
Coming soon properties will soon be on the market, but are not yet available for showings.