$295,000
Off-Market Date: 01/27/20263234 Abeline Road Spring Hill, FL 34608
Pending MLS# W7882234
3 beds 2 baths 1,701 sq ft Single Family
Details for 3234 Abeline Road
MLS# W7882234
Description for 3234 Abeline Road, Spring Hill, FL, 34608
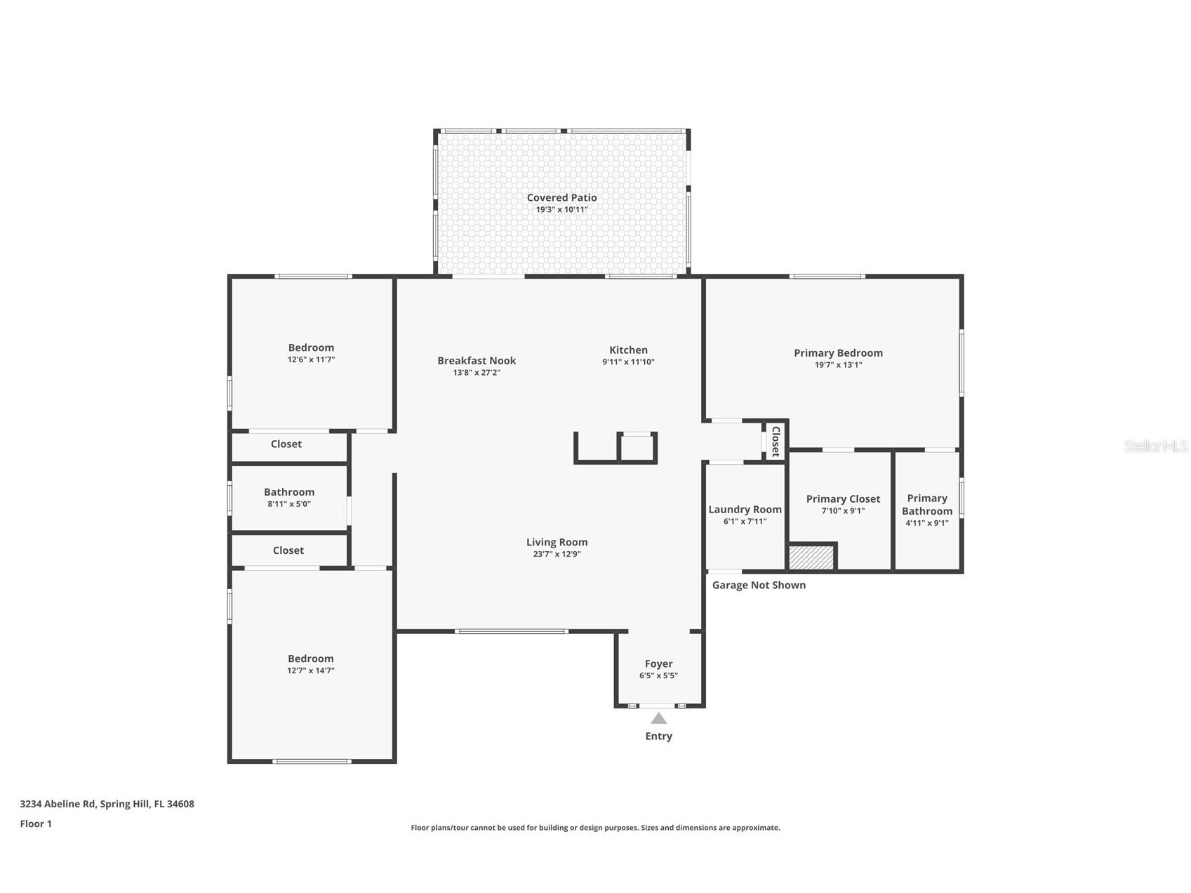
Under contract-accepting backup offers. Offered fully furnished and truly move-in ready, this beautifully maintained 3-bedroom, 2-bath home offers 1,701 square feet of comfortable living space, thoughtfully updated for today’s lifestyle. The kitchen features durable Formica countertops, providing practicality and timeless appeal—perfect for everyday living and entertaining. Bathrooms have been tastefully updated, offering a fresh, contemporary feel with quality finishes throughout. A tile-finished sunroom adds versatile living space—ideal for relaxing, working from home, or enjoying Florida living year-round. Recent improvements include all new windows, enhancing energy efficiency, natural light, and peace of mind. The pavered driveway adds strong curb appeal while offering long-lasting, low-maintenance functionality. With a functional layout, stylish updates, and move-in-ready condition, this home presents an excellent opportunity for buyers seeking comfort, convenience, and value. Schedule your private showing today.
Listing Information
Property Type: Residential, Single Family Residence
Status: Pending
Bedrooms: 3
Bathrooms: 2
Lot Size: 0.23 Acres
Square Feet: 1,701 sq ft
Year Built: 1985
Garage: Yes
Stories: 1 Story
Construction: Block,Stucco
Subdivision: Spring Hill
Foundation: Slab
County: Hernando
School Information
Elementary: Deltona Elementary
Middle: Fox Chapel Middle School
High: Central High School
Room Information
Main Floor
Primary Bedroom: 13x19
Living Room: 12x23
Kitchen: 11x9
Bathrooms
Full Baths: 2
Additonal Room Information
Laundry: Laundry Room
Interior Features
Appliances: Cooktop, Dishwasher, Dryer, Refrigerator, Washer, Built-In Oven
Flooring: Carpet,Ceramic Tile
Additional Interior Features: Split Bedrooms, Ceiling Fan(s), Eat-In Kitchen, Walk-In Closet(s)
Utilities
Water: Public
Sewer: Septic Tank
Other Utilities: Cable Available,Electricity Available
Cooling: Ceiling Fan(s), Central Air
Heating: Central, Electric
Exterior / Lot Features
Attached Garage: Attached Garage
Garage Spaces: 2
Roof: Shingle
Lot Dimensions: 83x125
Additional Exterior/Lot Features: Lighting
Driving Directions
Head toward Hearth Rd, Turn right onto Northcliffe Blvd, Turn left onto Deltona Blvd, Turn left onto Elgrove St, Turn right at the first cross street onto Abeline Rd, Destination will be on the left.
Financial Considerations
Terms: Cash,Conventional,FHA,VA Loan
Tax/Property ID: R32-323-17-5210-1450-0040
Tax Amount: 3751.43
Tax Year: 2025
A broker reciprocity listing courtesy: HORIZON PALM REALTY GROUP
Based on information provided by Stellar MLS as distributed by the MLS GRID. Information from the Internet Data Exchange is provided exclusively for consumers’ personal, non-commercial use, and such information may not be used for any purpose other than to identify prospective properties consumers may be interested in purchasing. This data is deemed reliable but is not guaranteed to be accurate by Edina Realty, Inc., or by the MLS. Edina Realty, Inc., is not a multiple listing service (MLS), nor does it offer MLS access.
Copyright 2026 Stellar MLS as distributed by the MLS GRID. All Rights Reserved.
Sales History & Tax Summary for 3234 Abeline Road
Sales History
| Date | Price | |
|---|---|---|
| Currently not available. | ||
Tax Summary
| Tax Year | Estimated Market Value | Total Tax |
|---|---|---|
| Currently not available. | ||
Data powered by ATTOM Data Solutions. Copyright© 2026. Information deemed reliable but not guaranteed.
Schools
Schools nearby 3234 Abeline Road
| Schools in attendance boundaries | Grades | Distance | Rating |
|---|---|---|---|
| Loading... | |||
| Schools nearby | Grades | Distance | Rating |
|---|---|---|---|
| Loading... | |||
Data powered by ATTOM Data Solutions. Copyright© 2026. Information deemed reliable but not guaranteed.
The schools shown represent both the assigned schools and schools by distance based on local school and district attendance boundaries. Attendance boundaries change based on various factors and proximity does not guarantee enrollment eligibility. Please consult your real estate agent and/or the school district to confirm the schools this property is zoned to attend. Information is deemed reliable but not guaranteed.
SchoolDigger ® Rating
The SchoolDigger rating system is a 1-5 scale with 5 as the highest rating. SchoolDigger ranks schools based on test scores supplied by each state's Department of Education. They calculate an average standard score by normalizing and averaging each school's test scores across all tests and grades.
Coming soon properties will soon be on the market, but are not yet available for showings.