325 Charles Avenue Orange City, FL 32763
Pending MLS# O6339643
3 beds 2 baths 1,189 sq ft Single Family
Details for 325 Charles Avenue
MLS# O6339643
Description for 325 Charles Avenue, Orange City, FL, 32763
Under contract-accepting backup offers. Welcome to a beautifully charming 3-bedroom, 2-bathroom home nestled in the heart of Orange City Terrace that blends warmth, character, and modern comfort in one inviting package. From the moment you arrive, you’ll appreciate the welcoming curb appeal and the sense of ease that comes with a home thoughtfully cared for and updated. Inside, you’ll find a spacious split floorplan where the living room features a stunning stone wood-burning fireplace complete with a recently rebuilt chimney — a perfect centerpiece for cozy evenings or relaxed weekend gatherings. Adjacent to this, the galley-style kitchen was renovated in November 2025, bringing fresh, modern finishes, efficient layout, and a seamless connection to the dining space. The kitchen overlooks the expansive backyard, enhancing the indoor-outdoor flow and making both everyday living and entertaining feel effortless. Sliding glass doors lead you out to a screened-in porch — an ideal spot to sip morning coffee or unwind at the end of the day while enjoying the privacy of your fenced yard. Sitting on just under a quarter acre, the generous backyard offers plenty of space for outdoor activities, a convenient shed for extra storage, and a side gate wide enough for boat or camper parking — perfect for hobbyists, families, or anyone seeking extra flexibility. Recent updates provide peace of mind and add to the home’s appeal. Major improvements include a newer roof (2023), water heater (2023), renovated master bathroom, updated bedroom flooring and fresh paint throughout (2025). Additional system upgrades include a new well installed in 2018, updated plumbing (2018), an A/C unit from 2015, and an RGF air purifying system added in 2023. All of this means you’ll be moving into a home where much of the groundwork has already been taken care of. Location is another win — you’re just minutes away from Florida’s scenic Coast-to-Coast Trail and the natural beauty of Blue Springs State Park, where walking or biking to see manatees becomes part of your weekend routine. Whether you’re hosting family and friends or enjoying quiet, relaxed weekends at home, this property offers both comfort and convenience in spades. Don’t miss your chance to make 325 Charles Ave your new home — schedule your showing today and experience everything this wonderful property has to offer!
Listing Information
Property Type: Residential, Single Family Residence
Status: Pending
Bedrooms: 3
Bathrooms: 2
Lot Size: 0.24 Acres
Square Feet: 1,189 sq ft
Year Built: 1988
Garage: Yes
Stories: 1 Story
Construction: Block,Concrete,Stucco
Subdivision: Orange City Terrace Add 01 Resub
Foundation: Slab
County: Volusia
School Information
Elementary: Manatee Cove Elem
Middle: River Springs Middle School
High: University High School-Vol
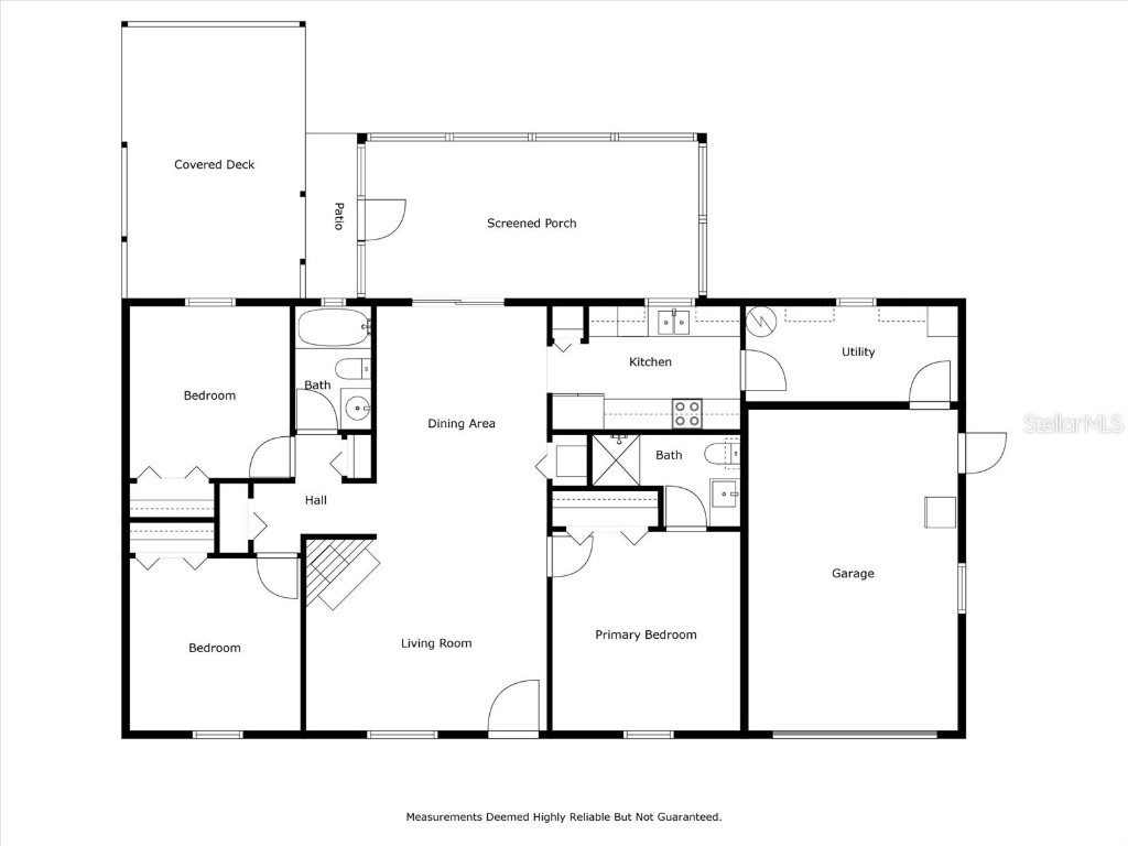
Room Information
Main Floor
Laundry: 13x5
Living Room: 12x15
Dinette: 14x10
Kitchen: 11x7
Bathroom 2: 7x4
Bedroom 3: 11x10
Bedroom 2: 11x10
Bathroom 1: 6x9
Primary Bedroom: 12x11
Bathrooms
Full Baths: 2
Additonal Room Information
Laundry: Laundry Room
Interior Features
Appliances: Electric Water Heater, Range, Refrigerator, Dishwasher
Flooring: Carpet,Laminate,Tile
Doors/Windows: Window Treatments
Fireplaces: Wood Burning, Stone
Additional Interior Features: Window Treatments, Attic
Utilities
Water: Well
Sewer: Septic Tank
Other Utilities: Electricity Connected,Sewer Connected,Water Connected
Cooling: Central Air
Heating: Electric
Exterior / Lot Features
Attached Garage: Attached Garage
Garage Spaces: 1
Roof: Shingle
Lot Dimensions: 75x139
Additional Exterior/Lot Features: Screened, Covered, Rear Porch, Dead End, Outside City Limits
Driving Directions
off exit 111B toward Orange City, Merge onto Saxon Blvd, Turn Right onto Enterprise Rd, Slight Right onto S Volusia Ave, Turn left onto W Blue Springs Ave, Turn Right onto Charles Ave, Home is on the right.
Financial Considerations
Terms: Cash,Conventional,FHA,USDA Loan,VA Loan
Tax/Property ID: 09-18-30-01-06-0070
Tax Amount: 4366.38
Tax Year: 2024
A broker reciprocity listing courtesy: LPT REALTY, LLC
Based on information provided by Stellar MLS as distributed by the MLS GRID. Information from the Internet Data Exchange is provided exclusively for consumers’ personal, non-commercial use, and such information may not be used for any purpose other than to identify prospective properties consumers may be interested in purchasing. This data is deemed reliable but is not guaranteed to be accurate by Edina Realty, Inc., or by the MLS. Edina Realty, Inc., is not a multiple listing service (MLS), nor does it offer MLS access.
Copyright 2026 Stellar MLS as distributed by the MLS GRID. All Rights Reserved.
Sales History & Tax Summary for 325 Charles Avenue
Sales History
| Date | Price | |
|---|---|---|
| Currently not available. | ||
Tax Summary
| Tax Year | Estimated Market Value | Total Tax |
|---|---|---|
| Currently not available. | ||
Data powered by ATTOM Data Solutions. Copyright© 2026. Information deemed reliable but not guaranteed.
Schools
Schools nearby 325 Charles Avenue
| Schools in attendance boundaries | Grades | Distance | Rating |
|---|---|---|---|
| Loading... | |||
| Schools nearby | Grades | Distance | Rating |
|---|---|---|---|
| Loading... | |||
Data powered by ATTOM Data Solutions. Copyright© 2026. Information deemed reliable but not guaranteed.
The schools shown represent both the assigned schools and schools by distance based on local school and district attendance boundaries. Attendance boundaries change based on various factors and proximity does not guarantee enrollment eligibility. Please consult your real estate agent and/or the school district to confirm the schools this property is zoned to attend. Information is deemed reliable but not guaranteed.
SchoolDigger ® Rating
The SchoolDigger rating system is a 1-5 scale with 5 as the highest rating. SchoolDigger ranks schools based on test scores supplied by each state's Department of Education. They calculate an average standard score by normalizing and averaging each school's test scores across all tests and grades.
Coming soon properties will soon be on the market, but are not yet available for showings.