3262 Plymouth Street Port Charlotte, FL 33980
For Sale MLS# C7500091
3 beds 2 baths 1,060 sq ft Single Family
Details for 3262 Plymouth Street
MLS# C7500091
Description for 3262 Plymouth Street, Port Charlotte, FL, 33980
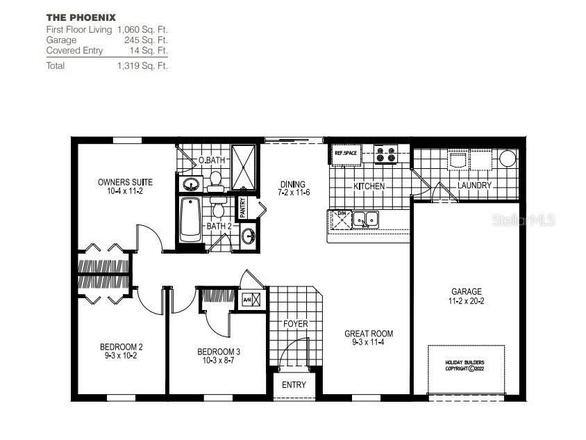
Welcome to the world of homeownership with the Phoenix floorplan. Step into a cozy and inviting space that instantly feels like home. This thoughtfully designed three-bedroom, two-bathroom residence is crafted for comfort and style. As you enter, you’ll discover the heart of the home—the kitchen seamlessly blending with the combined dining and great room area. Say goodbye to formal living and dining rooms and embrace a contemporary layout that effortlessly accommodates entertaining friends and family. This new home includes one full year of builder's transferable warranty coverage and a 10-year limited structural warranty.
Listing Information
Property Type: Residential, Single Family Residence
Status: Active
Bedrooms: 3
Bathrooms: 2
Lot Size: 0.23 Acres
Square Feet: 1,060 sq ft
Year Built: 2025
Garage: Yes
Stories: 1 Story
Construction: Block,Stucco
Construction Display: New Construction
Subdivision: Port Charlotte Sec13
Builder: Holiday Builders
Foundation: Slab
County: Charlotte
Construction Status: New Construction
Room Information
Main Floor
Bedroom 3: 8.07x10.03
Dining Room: 11.06x7.02
Laundry: 11.02x8.03
Bedroom 2: 10.02x9.03
Great Room: 11.04x9.03
Kitchen: 11.04x8.06
Primary Bedroom: 11.02x10.4
Bathrooms
Full Baths: 2
Additonal Room Information
Laundry: Inside
Interior Features
Appliances: Electric Water Heater, Dishwasher, Range
Flooring: Carpet,Vinyl
Additional Interior Features: Walk-In Closet(s), Main Level Primary, Open Floorplan
Utilities
Water: Well
Sewer: Septic Tank
Other Utilities: Electricity Available,Electricity Connected,Municipal Utilities,Underground Utilities,Water Available,Water Connected
Cooling: Central Air
Heating: Electric, Central
Exterior / Lot Features
Attached Garage: Attached Garage
Garage Spaces: 1
Roof: Shingle
Driving Directions
Heading North on Kings Hwy. Take a Left onto Olean Blvd. Take a Right on Swanee Rd. Take a Left on Cedarton Ave. Take a Right onto Plymouth Ave. Home will be on the Left.
Financial Considerations
Terms: Cash,Conventional,FHA,VA Loan
Tax/Property ID: 402224279004
Tax Amount: 493
Tax Year: 2023
A broker reciprocity listing courtesy: HOLIDAY BUILDERS GULF COAST
Based on information provided by Stellar MLS as distributed by the MLS GRID. Information from the Internet Data Exchange is provided exclusively for consumers’ personal, non-commercial use, and such information may not be used for any purpose other than to identify prospective properties consumers may be interested in purchasing. This data is deemed reliable but is not guaranteed to be accurate by Edina Realty, Inc., or by the MLS. Edina Realty, Inc., is not a multiple listing service (MLS), nor does it offer MLS access.
Copyright 2025 Stellar MLS as distributed by the MLS GRID. All Rights Reserved.
Payment Calculator
Interest rate and annual percentage rate (APR) are based on current market conditions, are for informational purposes only, are subject to change without notice and may be subject to pricing add-ons related to property type, loan amount, loan-to-value, credit score and other variables. Estimated closing costs used in the APR calculation are assumed to be paid by the borrower at closing. If the closing costs are financed, the loan, APR and payment amounts will be higher. If the down payment is less than 20%, mortgage insurance may be required and could increase the monthly payment and APR. Contact us for details. Additional loan programs may be available. Accuracy is not guaranteed, and all products may not be available in all borrower's geographical areas and are based on their individual situation. This is not a credit decision or a commitment to lend.
Sales History & Tax Summary for 3262 Plymouth Street
Sales History
| Date | Price | Change |
|---|---|---|
| Currently not available. | ||
Tax Summary
| Tax Year | Estimated Market Value | Total Tax |
|---|---|---|
| Currently not available. | ||
Data powered by ATTOM Data Solutions. Copyright© 2025. Information deemed reliable but not guaranteed.
Schools
Schools nearby 3262 Plymouth Street
| Schools in attendance boundaries | Grades | Distance | Rating |
|---|---|---|---|
| Loading... | |||
| Schools nearby | Grades | Distance | Rating |
|---|---|---|---|
| Loading... | |||
Data powered by ATTOM Data Solutions. Copyright© 2025. Information deemed reliable but not guaranteed.
The schools shown represent both the assigned schools and schools by distance based on local school and district attendance boundaries. Attendance boundaries change based on various factors and proximity does not guarantee enrollment eligibility. Please consult your real estate agent and/or the school district to confirm the schools this property is zoned to attend. Information is deemed reliable but not guaranteed.
SchoolDigger ® Rating
The SchoolDigger rating system is a 1-5 scale with 5 as the highest rating. SchoolDigger ranks schools based on test scores supplied by each state's Department of Education. They calculate an average standard score by normalizing and averaging each school's test scores across all tests and grades.
Coming soon properties will soon be on the market, but are not yet available for showings.