$343,222
3266 Timber Crossing Avenue Brandon, FL 33511
For Sale MLS# TB8453356
3 beds 3 baths 1,667 sq ft Townhouse/Twinhome
Details for 3266 Timber Crossing Avenue
MLS# TB8453356
Description for 3266 Timber Crossing Avenue, Brandon, FL, 33511
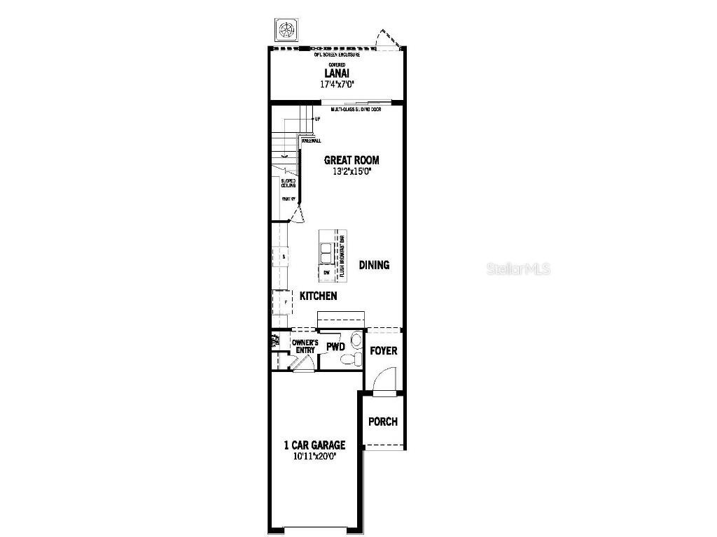
Under Construction. This 1,667 square foot home features 3 bedrooms, 2.5 baths, loft, and 1 car garage with a 2-car wide paver driveway. The Marianna features a Modern elevation with great earth tone colors. The huge eat-in kitchen is truly the heart of this home. Featuring durable quartz counter tops in Frost White that just further lighten the kitchen along with the help of an abundance of 42" upper cabinets painted White and oversized tile flooring that flows from the front door through to the lanai. The kitchen includes all stainless steel appliances with energy star dishwasher and refrigerator, and the home included a Whirlpool washer and dryer. The large center island layout makes this home ideal for entertaining as it overlooks both the great room and the very spacious, covered, screened and brick paver lanai. Upstairs, the owners retreat, separate from the guest rooms offer a large walk-in closet, a double sink vanity and an oversized shower. Just off the owner's suite is a large loft that's perfect for entertaining or relaxing after a long day. The secondary bedrooms feature walk-in closets and share a large bathroom and separate linen closet adjacent to the loft. This home does not disappoint, with its extra storage and fabulous outdoor living space. All our homes are wired with the latest in Smart Home Technology and are energy efficient with double pane lo-E, vinyl windows. Bloomingdale Townes is a gated community with a large pool and BBQ area and close proximity to shopping and entertainment. No CDD Fees! Pricing, dimensions and features can change at any time without notice or obligation. Photos, renderings and plans are for illustrative purposes only, and should never be relied upon and may vary from the actual home. The photos are from a furnished model home and not the home offered for sale.
Listing Information
Property Type: Residential, Townhouse
Status: Active
Bedrooms: 3
Bathrooms: 3
Lot Size: 0.04 Acres
Square Feet: 1,667 sq ft
Year Built: 2025
Garage: Yes
Stories: 2 Story
Construction: Block,Stucco
Construction Display: New Construction
Subdivision: Bloomingdale Townes
Builder: Mattamy Homes
Foundation: Slab
County: Hillsborough
Construction Status: Under Construction
School Information
Elementary: Brooker-Hb
Middle: Burns-Hb
High: Bloomingdale-Hb
Room Information
Main Floor
Porch: 7x17.4
Great Room: 15x13.2
Dinette: 10x10
Kitchen: 10x10
Upper Floor
Loft: 14.7x11.2
Bedroom 3: 11x10
Bedroom 2: 10.3x11.4
Primary Bedroom: 13x13.2
Bathrooms
Full Baths: 2
1/2 Baths: 1
Additonal Room Information
Laundry: Inside, Laundry Closet
Interior Features
Appliances: Range, Refrigerator, Microwave, Dishwasher, Disposal, Dryer, Washer, Electric Water Heater
Flooring: Carpet,Luxury Vinyl,Tile
Doors/Windows: Insulated Windows, Low-Emissivity Windows
Additional Interior Features: Loft, Walk-In Closet(s), Eat-In Kitchen, Solid Surface Counters, Open Floorplan, Upper Level Primary
Utilities
Water: Public
Sewer: Public Sewer
Other Utilities: Cable Available,Electricity Connected,High Speed Internet Available,Phone Available,Sewer Connected,Underground Utilities,Water Connected
Cooling: Central Air
Heating: Central, Electric
Exterior / Lot Features
Attached Garage: Attached Garage
Garage Spaces: 1
Parking Description: Garage Door Opener, Garage, driveway
Roof: Shingle
Pool: Community, Association, Other
Additional Exterior/Lot Features: In-Wall Pest Control System, Sprinkler/Irrigation, Rear Porch, Covered, Screened, Flat, Level, Landscaped
Community Features
Community Features: Pool, Sidewalks, Street Lights, Gated
Security Features: Gated Community, Smoke Detector(s)
Association Amenities: Gated, Pool
HOA Dues Include: Maintenance Grounds, Pool(s)
Homeowners Association: Yes
HOA Dues: $293 / Monthly
Driving Directions
75N to exit 254 to US-301S towards Riverview. Merge onto US-301S. Use the 3 left lanes to turn onto Bloomingdale Ave. Go approx. 4.2 miles and turn left onto Bell Shoals Road at the large intersection/red light. Turn right into Bloomingdale Townes just before Knowles Road on the right.
Financial Considerations
Terms: Cash,Conventional,FHA,VA Loan
Tax/Property ID: U-01-30-20-D0M-000000-00015.0
Tax Amount: 160
Tax Year: 2024
A broker reciprocity listing courtesy: MATTAMY REAL ESTATE SERVICES
Based on information provided by Stellar MLS as distributed by the MLS GRID. Information from the Internet Data Exchange is provided exclusively for consumers’ personal, non-commercial use, and such information may not be used for any purpose other than to identify prospective properties consumers may be interested in purchasing. This data is deemed reliable but is not guaranteed to be accurate by Edina Realty, Inc., or by the MLS. Edina Realty, Inc., is not a multiple listing service (MLS), nor does it offer MLS access.
Copyright 2025 Stellar MLS as distributed by the MLS GRID. All Rights Reserved.
Payment Calculator
Interest rate and annual percentage rate (APR) are based on current market conditions, are for informational purposes only, are subject to change without notice and may be subject to pricing add-ons related to property type, loan amount, loan-to-value, credit score and other variables. Estimated closing costs used in the APR calculation are assumed to be paid by the borrower at closing. If the closing costs are financed, the loan, APR and payment amounts will be higher. If the down payment is less than 20%, mortgage insurance may be required and could increase the monthly payment and APR. Contact us for details. Additional loan programs may be available. Accuracy is not guaranteed, and all products may not be available in all borrower's geographical areas and are based on their individual situation. This is not a credit decision or a commitment to lend.
Sales History & Tax Summary for 3266 Timber Crossing Avenue
Sales History
| Date | Price | Change |
|---|---|---|
| Currently not available. | ||
Tax Summary
| Tax Year | Estimated Market Value | Total Tax |
|---|---|---|
| Currently not available. | ||
Data powered by ATTOM Data Solutions. Copyright© 2025. Information deemed reliable but not guaranteed.
Schools
Schools nearby 3266 Timber Crossing Avenue
| Schools in attendance boundaries | Grades | Distance | Rating |
|---|---|---|---|
| Loading... | |||
| Schools nearby | Grades | Distance | Rating |
|---|---|---|---|
| Loading... | |||
Data powered by ATTOM Data Solutions. Copyright© 2025. Information deemed reliable but not guaranteed.
The schools shown represent both the assigned schools and schools by distance based on local school and district attendance boundaries. Attendance boundaries change based on various factors and proximity does not guarantee enrollment eligibility. Please consult your real estate agent and/or the school district to confirm the schools this property is zoned to attend. Information is deemed reliable but not guaranteed.
SchoolDigger ® Rating
The SchoolDigger rating system is a 1-5 scale with 5 as the highest rating. SchoolDigger ranks schools based on test scores supplied by each state's Department of Education. They calculate an average standard score by normalizing and averaging each school's test scores across all tests and grades.
Coming soon properties will soon be on the market, but are not yet available for showings.