3270 SW 151st Court Ocala, FL 34481
For Sale MLS# OM702769
3 beds 2 baths 1,317 sq ft Single Family
Details for 3270 SW 151st Court
MLS# OM702769
Description for 3270 SW 151st Court, Ocala, FL, 34481
One or more photo(s) has been virtually staged. Seller financing is an option for this home. Inquire for details. Just 15 mins from Rainbow Springs State Park and other sites for nature lovers!! This is the perfect location and THE BEST VALUE IN THE NEIGHBORHOOD!!! Modern Country Living in Rainbow Park — Move-In Ready New Home in Ocala, FL If you’ve been dreaming of a brand-new home in Ocala that feels peaceful yet close to everything, you’ll love 3270 SW 151st Ct. This beautiful 3-bedroom, 2-bath home in the growing Rainbow Park community is complete and ready for move-in — perfectly blending modern design with the relaxed charm of rural Florida living. Step inside and you’ll immediately notice how bright, open, and welcoming it feels. The kitchen is the heart of the home, featuring soft-close wood cabinets, granite countertops, and stainless steel appliances — including a side-by-side refrigerator. A built-in pantry keeps everything organized, and there’s even a pull-out trash and recycling cabinet for a clean, modern look. The open floor plan makes it easy to cook, dine, and connect with friends and family, while luxury vinyl flooring flows throughout for easy care and style. Each bedroom is spacious, and the bathrooms are designed with fully tiled shower/tub combos for a clean, high-end feel. Outside, you’ll enjoy a covered front porch and a 10x10 back patio, perfect for morning coffee or evening sunsets. The yard offers plenty of space to add a fence, garden, or play area — ideal for pets, kids, or anyone who enjoys being outdoors. The epoxied garage floor, garage door keypad, and concrete block construction show the quality and attention to detail throughout. Why People Love Living Here Rainbow Park is a quiet, growing neighborhood between Ocala and Dunnellon, offering that laid-back lifestyle many buyers are looking for. You’re just a short drive from: World Equestrian Center (WEC) — perfect for horse enthusiasts. Downtown Ocala and Dunnellon — for shops, restaurants, and local events. Rainbow Springs State Park — great for kayaking, swimming, or hiking. Quick access to major roads, making your commute simple and stress-free. This home sits on a 0.23-acre lot, giving you just the right amount of space to spread out while staying easy to maintain. Whether you’re buying your first home, downsizing, or investing, this property offers great value, modern comfort, and small-town peace — all at a competitive price. And with a 1-year builder warranty included, you can move in with confidence. Ready to Start Your Next Chapter? This home is accepting all financing options and is ready for immediate occupancy — no waiting, no stress.
Listing Information
Property Type: Residential, Single Family Residence
Status: Active
Bedrooms: 3
Bathrooms: 2
Lot Size: 0.23 Acres
Square Feet: 1,317 sq ft
Year Built: 2025
Garage: Yes
Stories: 1 Story
Construction: Block,Concrete,Stucco
Construction Display: New Construction
Subdivision: Rainbow Park
Builder: Eucharist Construction
Foundation: Slab
County: Marion
Construction Status: New Construction
School Information
Elementary: Dunnellon Elementary School
Middle: Dunnellon Middle School
High: Dunnellon High School
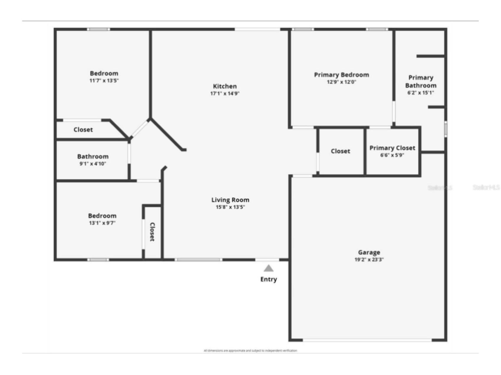
Room Information
Main Floor
Living Room: 17x17
Kitchen: 14x10
Primary Bedroom: 13x14
Bedroom 2: 12x11
Bedroom 3: 12x11
Upper Floor
Dining Room:
Bathrooms
Full Baths: 2
Additonal Room Information
Laundry: Washer Hookup, Electric Dryer Hookup, Inside, Laundry Room
Interior Features
Appliances: Microwave, Range, Refrigerator, Dishwasher
Flooring: Luxury Vinyl
Additional Interior Features: Open Floorplan, Stone Counters, Wood Cabinets, Ceiling Fan(s), Split Bedrooms, Walk-In Closet(s), Attic, Built-in Features, High Ceilings, Vaulted Ceiling(s)
Utilities
Water: Well
Sewer: Septic Tank
Other Utilities: Electricity Connected,High Speed Internet Available
Cooling: Ceiling Fan(s), Central Air
Heating: Central
Exterior / Lot Features
Attached Garage: Attached Garage
Garage Spaces: 2
Parking Description: Tandem
Roof: Shingle
Lot Dimensions: 75x135
Additional Exterior/Lot Features: Flat, Level, Cleared, Outside City Limits
Driving Directions
From Highway 40 turn onto SW 148th Ct, Follow around curve and turn onto SW 30th St, turn onto SW 151st Ct.
Financial Considerations
Terms: Cash,Conventional,FHA,Owner May Carry,USDA Loan,VA Loan
Tax/Property ID: 2003-133-014
Tax Amount: 98
Tax Year: 2024
A broker reciprocity listing courtesy: BRICKS & MORTAR REAL ESTATE
Based on information provided by Stellar MLS as distributed by the MLS GRID. Information from the Internet Data Exchange is provided exclusively for consumers’ personal, non-commercial use, and such information may not be used for any purpose other than to identify prospective properties consumers may be interested in purchasing. This data is deemed reliable but is not guaranteed to be accurate by Edina Realty, Inc., or by the MLS. Edina Realty, Inc., is not a multiple listing service (MLS), nor does it offer MLS access.
Copyright 2026 Stellar MLS as distributed by the MLS GRID. All Rights Reserved.
Payment Calculator
Interest rate and annual percentage rate (APR) are based on current market conditions, are for informational purposes only, are subject to change without notice and may be subject to pricing add-ons related to property type, loan amount, loan-to-value, credit score and other variables. Estimated closing costs used in the APR calculation are assumed to be paid by the borrower at closing. If the closing costs are financed, the loan, APR and payment amounts will be higher. If the down payment is less than 20%, mortgage insurance may be required and could increase the monthly payment and APR. Contact us for details. Additional loan programs may be available. Accuracy is not guaranteed, and all products may not be available in all borrower's geographical areas and are based on their individual situation. This is not a credit decision or a commitment to lend.
Sales History & Tax Summary for 3270 SW 151st Court
Sales History
| Date | Price | |
|---|---|---|
| Currently not available. | ||
Tax Summary
| Tax Year | Estimated Market Value | Total Tax |
|---|---|---|
| Currently not available. | ||
Data powered by ATTOM Data Solutions. Copyright© 2026. Information deemed reliable but not guaranteed.
Schools
Schools nearby 3270 SW 151st Court
| Schools in attendance boundaries | Grades | Distance | Rating |
|---|---|---|---|
| Loading... | |||
| Schools nearby | Grades | Distance | Rating |
|---|---|---|---|
| Loading... | |||
Data powered by ATTOM Data Solutions. Copyright© 2026. Information deemed reliable but not guaranteed.
The schools shown represent both the assigned schools and schools by distance based on local school and district attendance boundaries. Attendance boundaries change based on various factors and proximity does not guarantee enrollment eligibility. Please consult your real estate agent and/or the school district to confirm the schools this property is zoned to attend. Information is deemed reliable but not guaranteed.
SchoolDigger ® Rating
The SchoolDigger rating system is a 1-5 scale with 5 as the highest rating. SchoolDigger ranks schools based on test scores supplied by each state's Department of Education. They calculate an average standard score by normalizing and averaging each school's test scores across all tests and grades.
Coming soon properties will soon be on the market, but are not yet available for showings.