3280 Canna Lily Place Clermont, FL 34711
For Sale MLS# O6313185
3 beds 3 baths 1,890 sq ft Townhouse/Twinhome
Details for 3280 Canna Lily Place
MLS# O6313185
Description for 3280 Canna Lily Place, Clermont, FL, 34711
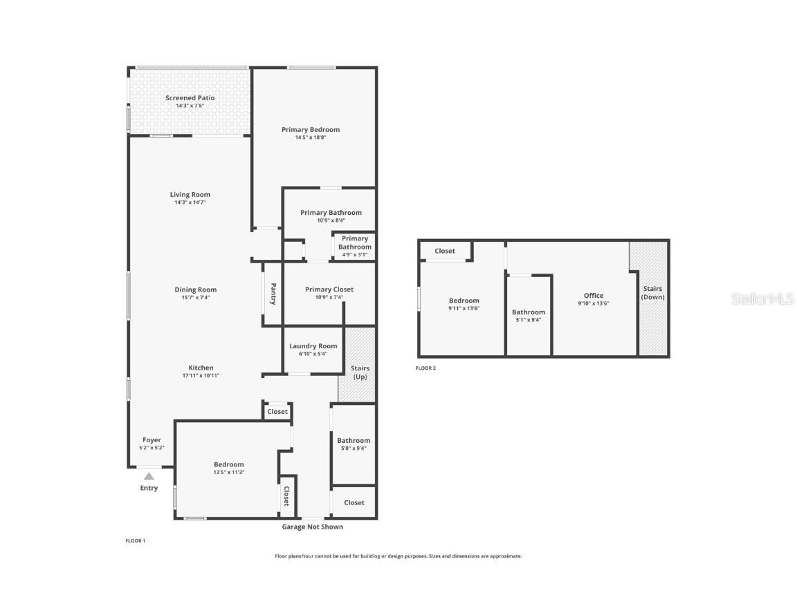
Ready to move in, this 1,850 square foot Tuscany floorplan brings modern functionality and expansive, thoughtfully designed space to villa-style living. 3 bedrooms and 3 bathrooms with plenty of living space. The luxurious owner’s suite has a walk-in closet and private bath. Enjoy gatherings in the large, open-concept kitchen, dining area, and Great Room. With a breakfast bar and covered back patio offering even more flexible seating with water views. An upstairs loft gives you additional living space — perfect for movie nights and games, or an office space. The 2-car tandem garage has insulated doors. Waterbrooke is quietly tucked away in the lakefront city of Clermont. Here you can enjoy the best of both worlds — peaceful and laid-back surroundings with accessibility to all major roads like the Florida Turnpike and Highways 27, 50, and 429.
Listing Information
Property Type: Residential, Townhouse
Status: Active
Bedrooms: 3
Bathrooms: 3
Lot Size: 0.10 Acres
Square Feet: 1,890 sq ft
Year Built: 2022
Garage: Yes
Stories: 2 Story
Construction: Block,Stucco
Subdivision: Waterbrooke Ph 4
Builder: Mattamy Homes
Foundation: Slab
County: Lake
Room Information
Main Floor
Porch: 8x14
Bedroom 2: 11x12
Primary Bedroom: 14x14
Dining Room: 10x16
Kitchen: 12x10
Great Room: 15x14
Upper Floor
Loft: 13x12
Bedroom 3: 11x12
Bathrooms
Full Baths: 3
Additonal Room Information
Laundry: Laundry Room
Interior Features
Appliances: Washer, Microwave, Range, Refrigerator, Dishwasher, Disposal, Dryer
Flooring: Carpet,Tile
Doors/Windows: Blinds
Additional Interior Features: Ceiling Fan(s), Loft, Walk-In Closet(s), High Ceilings, Open Floorplan, Kitchen/Family Room Combo
Utilities
Water: Public
Sewer: Public Sewer
Other Utilities: Cable Available,Electricity Available,Electricity Connected,Sewer Available,Sewer Connected,Underground Utilities,Water Available,Water Connected
Cooling: Ceiling Fan(s), Central Air
Heating: Electric
Exterior / Lot Features
Attached Garage: Attached Garage
Garage Spaces: 2
Parking Description: Garage Door Opener, driveway, Garage
Roof: Shingle
Pool: Community
Lot View: Pond,Water
Fencing: Vinyl
Additional Exterior/Lot Features: Sprinkler/Irrigation, Balcony, Balcony
Community Features
Community Features: Sidewalks, Playground, Pool, Street Lights, Gated, Park, Fitness, Golf Carts OK
Security Features: Gated Community, Smoke Detector(s), Fire Hydrant(s)
HOA Dues Include: Reserve Fund, Pool(s), Maintenance Grounds, Recreation Facilities
Homeowners Association: Yes
HOA Dues: $316 / Monthly
Driving Directions
Take exit 272 from Florida's Turnpike for FL 50 W towards Clermont, turn left onto 50, turn left onto Hardle Rd, turn right onto Canna Lily, the property will be on the right
Financial Considerations
Terms: Cash,Conventional,FHA,VA Loan
Tax/Property ID: 27-22-26-0204-000-61300
Tax Amount: 5221.77
Tax Year: 2024
A broker reciprocity listing courtesy: REALSTOCK ELITE PROPERTIES
Based on information provided by Stellar MLS as distributed by the MLS GRID. Information from the Internet Data Exchange is provided exclusively for consumers’ personal, non-commercial use, and such information may not be used for any purpose other than to identify prospective properties consumers may be interested in purchasing. This data is deemed reliable but is not guaranteed to be accurate by Edina Realty, Inc., or by the MLS. Edina Realty, Inc., is not a multiple listing service (MLS), nor does it offer MLS access.
Copyright 2025 Stellar MLS as distributed by the MLS GRID. All Rights Reserved.
Payment Calculator
Interest rate and annual percentage rate (APR) are based on current market conditions, are for informational purposes only, are subject to change without notice and may be subject to pricing add-ons related to property type, loan amount, loan-to-value, credit score and other variables. Estimated closing costs used in the APR calculation are assumed to be paid by the borrower at closing. If the closing costs are financed, the loan, APR and payment amounts will be higher. If the down payment is less than 20%, mortgage insurance may be required and could increase the monthly payment and APR. Contact us for details. Additional loan programs may be available. Accuracy is not guaranteed, and all products may not be available in all borrower's geographical areas and are based on their individual situation. This is not a credit decision or a commitment to lend.
Sales History & Tax Summary for 3280 Canna Lily Place
Sales History
| Date | Price | Change |
|---|---|---|
| Currently not available. | ||
Tax Summary
| Tax Year | Estimated Market Value | Total Tax |
|---|---|---|
| Currently not available. | ||
Data powered by ATTOM Data Solutions. Copyright© 2025. Information deemed reliable but not guaranteed.
Schools
Schools nearby 3280 Canna Lily Place
| Schools in attendance boundaries | Grades | Distance | Rating |
|---|---|---|---|
| Loading... | |||
| Schools nearby | Grades | Distance | Rating |
|---|---|---|---|
| Loading... | |||
Data powered by ATTOM Data Solutions. Copyright© 2025. Information deemed reliable but not guaranteed.
The schools shown represent both the assigned schools and schools by distance based on local school and district attendance boundaries. Attendance boundaries change based on various factors and proximity does not guarantee enrollment eligibility. Please consult your real estate agent and/or the school district to confirm the schools this property is zoned to attend. Information is deemed reliable but not guaranteed.
SchoolDigger ® Rating
The SchoolDigger rating system is a 1-5 scale with 5 as the highest rating. SchoolDigger ranks schools based on test scores supplied by each state's Department of Education. They calculate an average standard score by normalizing and averaging each school's test scores across all tests and grades.
Coming soon properties will soon be on the market, but are not yet available for showings.