$649,000
330 NE 20th Street Cape Coral, FL 33909
For Sale MLS# C7523661
4 beds 3 baths 2,515 sq ft Single Family
Details for 330 NE 20th Street
MLS# C7523661
Description for 330 NE 20th Street, Cape Coral, FL, 33909
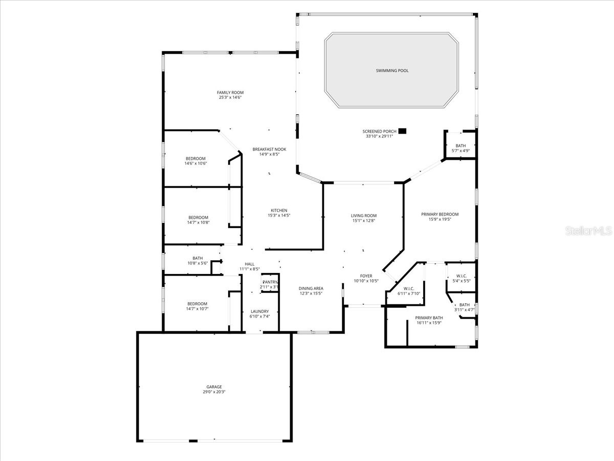
One-of-a-Kind Cape Coral Freshwater Canal Estate – Just Under Half an Acre of Luxury & Fun! Step into a home unlike any other. Nestled on 150 feet of freshwater canal frontage with privacy fencing and an open rear water view, this custom-designed 4-bedroom, 2.5-bath pool home is located in a NO FLOOD ZONE and feels like new, exuding charm at every turn. The lush, whimsical landscaping features a decorative pond complete with a functioning train and railroad track—creating an unforgettable, feel-good welcome to your front door. Designed with accessibility in mind, the entryway accommodates wheelchair access, while a second paved driveway offers convenient backyard entry and a beautifully maintained gravel area ideal for boat or recreational vehicle storage. The expansive lot also offers the potential to be split, providing additional flexibility and value. Inside, over 2,500 square feet of thoughtfully designed living space awaits. The formal living room impresses with vaulted ceilings and sliding glass doors leading to the lanai, while the dining area is perfectly suited for entertaining. The spacious family room showcases tray ceilings, stunning water views, Hunter Douglas Silhouette shades with blackout options, and exterior rolling shutters for added hurricane protection. The primary suite is a true retreat, featuring vaulted ceilings, French doors to the lanai, dual walk-in closets with custom organizers, a soaking tub, dual granite vanities, and a walk-in shower. The chef’s kitchen is both stylish and functional, offering granite countertops, soft-close cabinetry, ambient lighting, a farmhouse sink with a touch-activated faucet, a brand-new microwave, a 2024 refrigerator, and a raised dishwasher for added convenience. Experience Florida living at its finest on the expansive lanai, complete with a pool café window, a gazebo with a gas fire pit, and a stunning saltwater pool featuring two cascading bowl water features and three mini waterfalls. A convenient poolside half bath enhances the outdoor entertaining experience. The three-car garage is equally impressive, featuring epoxy flooring, attic storage space, and a mini-split system to keep the space cool and comfortable year-round. Notable upgrades include a newer roof (2023), impact windows and doors, an impact garage door, electric and manual hurricane shutters, a new pool cage (2024), a resurfaced pool (2024), and a Lennox Signature Series HVAC system (2025) for energy-efficient comfort. Ideally located near shopping, dining, parks, and top-rated schools, this exceptional property offers the perfect blend of luxury, functionality, and fun—truly a rare Cape Coral gem.
Listing Information
Property Type: Residential, Single Family Residence
Status: Active
Bedrooms: 4
Bathrooms: 3
Lot Size: 0.46 Acres
Square Feet: 2,515 sq ft
Year Built: 2007
Garage: Yes
Stories: 1 Story
Construction: Block
Construction Display: New Construction
Subdivision: Cape Coral
Foundation: Slab
County: Lee
Construction Status: New Construction
Room Information
Main Floor
Bathroom 1:
Primary Bathroom:
Primary Bedroom:
Kitchen:
Living Room:
Bathrooms
Full Baths: 2
1/2 Baths: 1
Additonal Room Information
Laundry: Inside
Interior Features
Appliances: Dishwasher, Disposal, Dryer, Microwave, Range, Refrigerator, Trash Compactor, Washer
Flooring: Carpet,Laminate,Tile
Doors/Windows: Window Treatments, Storm Window(s), Shutters
Accessibility: Accessibility Features
Additional Interior Features: Ceiling Fan(s), Eat-In Kitchen, Window Treatments, High Ceilings, Kitchen/Family Room Combo, Open Floorplan, Solid Surface Counters, Stone Counters, Coffered Ceiling(s), Split Bedrooms, Main Level Primary
Utilities
Water: Well
Sewer: Septic Tank
Other Utilities: Cable Connected,Electricity Connected,High Speed Internet Available,Sewer Connected
Cooling: Central Air, Ceiling Fan(s)
Heating: Electric, Central
Exterior / Lot Features
Attached Garage: Attached Garage
Garage Spaces: 3
Parking Description: Oversized, Parking Pad, Boat, Garage, Garage Door Opener, Guest, driveway, Open
Roof: Shingle
Pool: Salt Water, Screen Enclosure, In Ground
Lot View: Canal,Water
Lot Dimensions: 80x125
Fencing: fenced
Additional Exterior/Lot Features: Fire Pit, Sprinkler/Irrigation, Storm/Security Shutters, Lighting, Screened, City Lot, Oversized Lot
Out Buildings: Gazebo
Waterfront Details
Water Front Features: Canal Access
Community Features
Security Features: Smoke Detector(s)
Driving Directions
Please use GPS for best directions.
Financial Considerations
Terms: Cash,Conventional,VA Loan
Tax/Property ID: 36-43-23-C4-02545.0290
Tax Amount: 4090.8
Tax Year: 2025
A broker reciprocity listing courtesy: LOCAL REAL ESTATE LLC
Based on information provided by Stellar MLS as distributed by the MLS GRID. Information from the Internet Data Exchange is provided exclusively for consumers’ personal, non-commercial use, and such information may not be used for any purpose other than to identify prospective properties consumers may be interested in purchasing. This data is deemed reliable but is not guaranteed to be accurate by Edina Realty, Inc., or by the MLS. Edina Realty, Inc., is not a multiple listing service (MLS), nor does it offer MLS access.
Copyright 2026 Stellar MLS as distributed by the MLS GRID. All Rights Reserved.
Payment Calculator
Interest rate and annual percentage rate (APR) are based on current market conditions, are for informational purposes only, are subject to change without notice and may be subject to pricing add-ons related to property type, loan amount, loan-to-value, credit score and other variables. Estimated closing costs used in the APR calculation are assumed to be paid by the borrower at closing. If the closing costs are financed, the loan, APR and payment amounts will be higher. If the down payment is less than 20%, mortgage insurance may be required and could increase the monthly payment and APR. Contact us for details. Additional loan programs may be available. Accuracy is not guaranteed, and all products may not be available in all borrower's geographical areas and are based on their individual situation. This is not a credit decision or a commitment to lend.
Sales History & Tax Summary for 330 NE 20th Street
Sales History
| Date | Price | |
|---|---|---|
| Currently not available. | ||
Tax Summary
| Tax Year | Estimated Market Value | Total Tax |
|---|---|---|
| Currently not available. | ||
Data powered by ATTOM Data Solutions. Copyright© 2026. Information deemed reliable but not guaranteed.
Schools
Schools nearby 330 NE 20th Street
| Schools in attendance boundaries | Grades | Distance | Rating |
|---|---|---|---|
| Loading... | |||
| Schools nearby | Grades | Distance | Rating |
|---|---|---|---|
| Loading... | |||
Data powered by ATTOM Data Solutions. Copyright© 2026. Information deemed reliable but not guaranteed.
The schools shown represent both the assigned schools and schools by distance based on local school and district attendance boundaries. Attendance boundaries change based on various factors and proximity does not guarantee enrollment eligibility. Please consult your real estate agent and/or the school district to confirm the schools this property is zoned to attend. Information is deemed reliable but not guaranteed.
SchoolDigger ® Rating
The SchoolDigger rating system is a 1-5 scale with 5 as the highest rating. SchoolDigger ranks schools based on test scores supplied by each state's Department of Education. They calculate an average standard score by normalizing and averaging each school's test scores across all tests and grades.
Coming soon properties will soon be on the market, but are not yet available for showings.