3301 Alt 19 #317 Palm Harbor, FL 34683
For Sale MLS# TB8396259
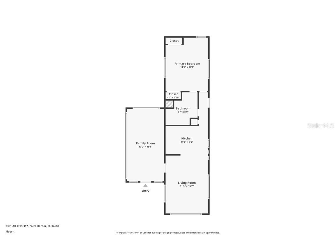
1 beds 1 baths 576 sq ft Single Family
Details for 3301 Alt 19 #317
MLS# TB8396259
Description for 3301 Alt 19 #317, Palm Harbor, FL, 34683
Reduced to sell and set in Westwind—a resident-owned Dunedin community known for simplicity and value—this inviting 1-bed, 1-bath home pairs a bright, flexible layout with a turnkey beach-town lifestyle (furniture conveys as shown) and low carrying costs: the $150/month HOA fee covers ground/lawn maintenance, trash pickup, and full access to community amenities, including a year-round temperature-regulated pool, an active clubhouse with a calendar of events, and an updated outdoor recreation area. Inside, easy-care laminate flooring connects a comfortable living/dining area to a practical kitchen with matching appliances and abundant cabinetry; the large east-facing Florida sunroom—currently used as a second bedroom—welcomes morning light and doubles as guest space, office, or sunny lounge, while a spacious primary bedroom and a full bath with shower/tub combo and ceramic tile complete the plan. Minutes to shopping, dining, entertainment, and the sugar-sand beaches of Honeymoon Island, this Westwind home is ready to welcome you for the season or all year—with the comfort, convenience, and low-maintenance Florida living today’s buyers are searching for.
Listing Information
Property Type: Residential, Mobile Home
Status: Active
Bedrooms: 1
Bathrooms: 1
Lot Size: 40.96 Acres
Square Feet: 576 sq ft
Year Built: 1972
Stories: 1 Story
Construction: Metal Frame
Subdivision: Westwind I & Ii Resident Owned Community Unrec
Foundation: Concrete Perimeter
County: Pinellas
Room Information
Main Floor
Living Room: 20x9
Kitchen: 8x9
Primary Bedroom: 13x9
Bathrooms
Full Baths: 1
Interior Features
Appliances: Range, Refrigerator
Flooring: Laminate
Doors/Windows: Window Treatments
Additional Interior Features: Main Level Primary, Living/Dining Room, Window Treatments
Utilities
Water: Public
Sewer: Public Sewer
Other Utilities: Cable Available,Electricity Connected,Phone Available,Sewer Connected,Water Connected
Cooling: Wall/Window Unit(s)
Heating: Window Unit, Wall Furnace
Exterior / Lot Features
Roof: Metal
Pool: Association, Community
Additional Exterior/Lot Features: Awning(s), Storage
Community Features
Community Features: Pool, Clubhouse
Association Amenities: Clubhouse, Pool
HOA Dues Include: Recreation Facilities, Maintenance Grounds, Road Maintenance, Pool(s)
Homeowners Association: Yes
HOA Dues: $150 / Monthly
Driving Directions
Community located on Alt 19N between Curlew and Tampa Road. Look for Jeter Street Palm Harbor in GPS as this is the entryway to the community.
Financial Considerations
Terms: Cash
Tax/Property ID: 11-28-15-96924-000-3170
Tax Amount: 1804.36
Tax Year: 2024
A broker reciprocity listing courtesy: COMPASS FLORIDA, LLC
Based on information provided by Stellar MLS as distributed by the MLS GRID. Information from the Internet Data Exchange is provided exclusively for consumers’ personal, non-commercial use, and such information may not be used for any purpose other than to identify prospective properties consumers may be interested in purchasing. This data is deemed reliable but is not guaranteed to be accurate by Edina Realty, Inc., or by the MLS. Edina Realty, Inc., is not a multiple listing service (MLS), nor does it offer MLS access.
Copyright 2025 Stellar MLS as distributed by the MLS GRID. All Rights Reserved.
Payment Calculator
Interest rate and annual percentage rate (APR) are based on current market conditions, are for informational purposes only, are subject to change without notice and may be subject to pricing add-ons related to property type, loan amount, loan-to-value, credit score and other variables. Estimated closing costs used in the APR calculation are assumed to be paid by the borrower at closing. If the closing costs are financed, the loan, APR and payment amounts will be higher. If the down payment is less than 20%, mortgage insurance may be required and could increase the monthly payment and APR. Contact us for details. Additional loan programs may be available. Accuracy is not guaranteed, and all products may not be available in all borrower's geographical areas and are based on their individual situation. This is not a credit decision or a commitment to lend.
Sales History & Tax Summary for 3301 Alt 19 #317
Sales History
| Date | Price | Change |
|---|---|---|
| Currently not available. | ||
Tax Summary
| Tax Year | Estimated Market Value | Total Tax |
|---|---|---|
| Currently not available. | ||
Data powered by ATTOM Data Solutions. Copyright© 2025. Information deemed reliable but not guaranteed.
Schools
Schools nearby 3301 Alt 19 #317
| Schools in attendance boundaries | Grades | Distance | Rating |
|---|---|---|---|
| Loading... | |||
| Schools nearby | Grades | Distance | Rating |
|---|---|---|---|
| Loading... | |||
Data powered by ATTOM Data Solutions. Copyright© 2025. Information deemed reliable but not guaranteed.
The schools shown represent both the assigned schools and schools by distance based on local school and district attendance boundaries. Attendance boundaries change based on various factors and proximity does not guarantee enrollment eligibility. Please consult your real estate agent and/or the school district to confirm the schools this property is zoned to attend. Information is deemed reliable but not guaranteed.
SchoolDigger ® Rating
The SchoolDigger rating system is a 1-5 scale with 5 as the highest rating. SchoolDigger ranks schools based on test scores supplied by each state's Department of Education. They calculate an average standard score by normalizing and averaging each school's test scores across all tests and grades.
Coming soon properties will soon be on the market, but are not yet available for showings.