$449,900
3317 Baxter Ave Superior, WI 54880
Pending MLS# 6123571
2 beds 2 baths 1,445 sq ft Townhouse/Twinhome
Details for 3317 Baxter Ave
MLS# 6123571
Description for 3317 Baxter Ave, Superior, WI, 54880
Stunning New Ranch-Style Townhome Move into your dream home and add your personal touch to this brand new 2+ bedroom, 2-bath ranch-style townhome. Nestled at the end of a private, dead-end road, this stylish abode offers both tranquility and modern luxury. The master suite is a true sanctuary, featuring a spacious walk-in closet and a luxurious curbless tiled shower in the master bath. The custom kitchen, complete with a large island, is perfect for cooking and entertaining. The vaulted ceiling in the living room enhances the spacious and airy feel of the home, while the inviting foyer entry welcomes you and your guests with warmth. LP Smart siding, Anderson Windows, 50-year roofing. Every inch of this townhome is designed with comfort and style in mind, making it a perfect canvas for you to create the life you’ve envisioned. **Virtually generated images and staging.** To be completed in early Spring of 2026.
Listing Information
Property Type: Residential, Condo/Townhouse, Two Unit
Status: Pending
Bedrooms: 2
Bathrooms: 2
Lot Size: 0.14 Acres
Square Feet: 1,445 sq ft
Year Built: 2026
Garage: Yes
Stories: 1 Story
Construction: Frame/Wood
County: Douglas
School Information
District: Superior (Wi) #5663
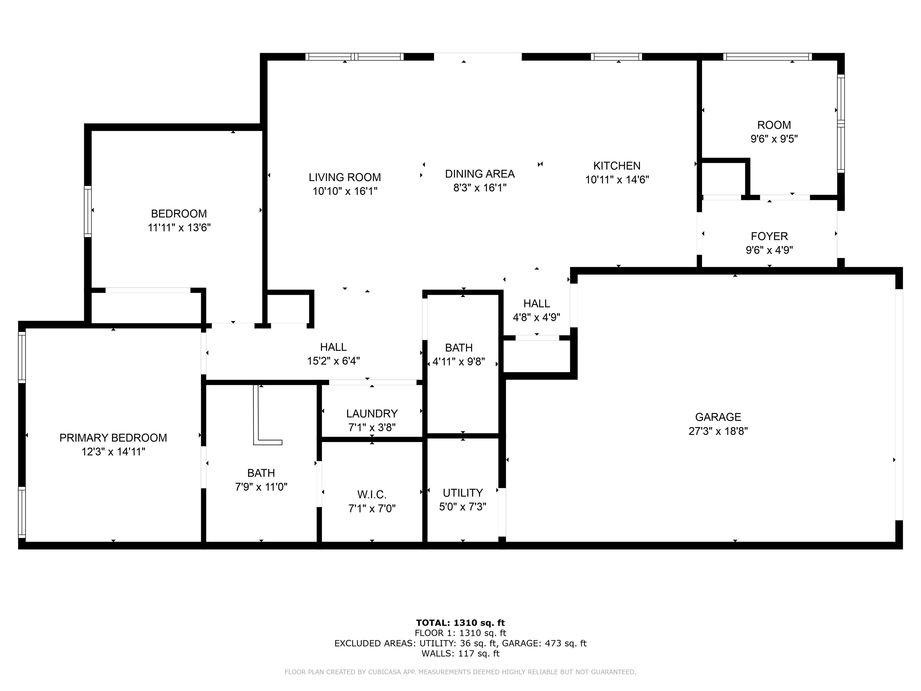
Room Information
Main Floor
Living Room: 12x17
Bathroom: 10x5.5
Kitchen: 11x15
Dining Room: 8.4x17
Primary Bedroom: 13x15.8
Bedroom: 12.4x12
Den/Office: 8x10
Foyer: 5x10
Utility Room: 6x8
Bathroom: 12x8
Bathrooms
Full Baths: 1
3/4 Baths: 1
Additonal Room Information
Other: Other (8x7)
Dining: Breakfast Bar,Combine with Kitchen,Informal Dining Room
Bath Description: 3/4 Master,3/4 Main Floor,Full Main Floor
Interior Features
Square Footage above: 1,445 sq ft
Appliances: Range/Stove, Refrigerator, Microwave, Dishwasher, Dryer
Basement: Slab, Poured Concrete, Insulated Form
Doors/Windows: Vinyl Frame, Double Glazed, Energy Windows
Fireplaces: Gas
Additional Interior Features: Kitchen Center Island, Drywalls, Foyer Entry, Patio Door, Tiled Floors, Walk-In Closet, Vaulted Ceilings, Ceiling Fans, Eat-In Kitchen, Natural Woodwork, Cable TV, Mechanicals - Air to Air Exchange,Water Heater-Tankless
Utilities
Water: City
Sewer: City
Cooling: Ductless Mini Split
Heating: Boiler, Heat Pump, Hot Water, Natural Gas, In Floor, Ductless/Mini Split
Exterior / Lot Features
Garage Spaces: 2
Parking Description: Garage Description - Detached
Exterior: Fiber Board
Lot Dimensions: 43x140
Additional Exterior/Lot Features: Patio, Porch, Gutter/Downspout, Cul De Sac, Level, Pub. Trans (w/in 6 blks), Underground Utilities, Road Frontage - Storm Sewer, City, Paved, Curb/Gutters
Driving Directions
South on Hammond, Left on N 33rd St, Right on N 33rd St, Right to Baxter, Home with sign.
Financial Considerations
Terms: Cash,Conventional,VA DVA
Tax/Property ID: 02-802-03095-01
Tax Amount: 319.38
Tax Year: 2025
A broker reciprocity listing courtesy: RE/MAX Results - Mike Raivala
The data relating to real estate for sale on this web site comes in part from the Broker Reciprocity℠ Program of the Duluth Area Association of REALTORS® MLS. Real estate listings held by brokerage firms other than Edina Realty, Inc. are marked with the Broker Reciprocity℠ logo or the Broker Reciprocity℠ thumbnail and detailed information about them includes the name of the listing brokers. Edina Realty, Inc. is not a Multiple Listing Service (MLS), nor does it offer MLS access. This website is a service of Edina Realty, Inc., a broker Participant of the Duluth Area Association of REALTORS® MLS. IDX information is provided exclusively for consumers personal, non-commercial use and may not be used for any purpose other than to identify prospective properties consumers may be interested in purchasing. Open House information is subject to change without notice. Information deemed reliable but not guaranteed.
Copyright 2026 Duluth Area Association of REALTORS® MLS. All Rights Reserved.
Sales History & Tax Summary for 3317 Baxter Ave
Sales History
| Date | Price | |
|---|---|---|
| Currently not available. | ||
Tax Summary
| Tax Year | Estimated Market Value | Total Tax |
|---|---|---|
| Currently not available. | ||
Data powered by ATTOM Data Solutions. Copyright© 2026. Information deemed reliable but not guaranteed.
Schools
Schools nearby 3317 Baxter Ave
| Schools in attendance boundaries | Grades | Distance | Rating |
|---|---|---|---|
| Loading... | |||
| Schools nearby | Grades | Distance | Rating |
|---|---|---|---|
| Loading... | |||
Data powered by ATTOM Data Solutions. Copyright© 2026. Information deemed reliable but not guaranteed.
The schools shown represent both the assigned schools and schools by distance based on local school and district attendance boundaries. Attendance boundaries change based on various factors and proximity does not guarantee enrollment eligibility. Please consult your real estate agent and/or the school district to confirm the schools this property is zoned to attend. Information is deemed reliable but not guaranteed.
SchoolDigger ® Rating
The SchoolDigger rating system is a 1-5 scale with 5 as the highest rating. SchoolDigger ranks schools based on test scores supplied by each state's Department of Education. They calculate an average standard score by normalizing and averaging each school's test scores across all tests and grades.
Coming soon properties will soon be on the market, but are not yet available for showings.