3317 Broken Bow Drive Land O Lakes, FL 34639
For Sale MLS# TB8437480
3 beds 3 baths 1,653 sq ft Townhouse/Twinhome
Details for 3317 Broken Bow Drive
MLS# TB8437480
Description for 3317 Broken Bow Drive, Land O Lakes, FL, 34639
One or more photo(s) has been virtually staged. Well-kept 3-bedroom, 3-bath townhouse in Santa Fe at Stagecoach Village. The open layout features a spacious living area, dining space, and a functional kitchen with plenty of storage. A first-floor bedroom and full bath provide flexibility for guests or a home office. Upstairs you’ll find a large primary suite with walk-in closet, an additional bedroom and bath, plus laundry for convenience. Enjoy a screened patio and access to the community pool. Conveniently located near I-75, shops, and restaurants in Wesley Chapel.
Listing Information
Property Type: Residential, Townhouse
Status: Active
Bedrooms: 3
Bathrooms: 3
Lot Size: 0.12 Acres
Square Feet: 1,653 sq ft
Year Built: 2005
Stories: 2 Story
Construction: Block,Stucco,Wood Frame
Subdivision: Stagecoach Village Prcl 08 Ph 02
Foundation: Slab
County: Pasco
School Information
Elementary: Denham Oaks Elementary-Po
Middle: Cypress Creek Middle School
High: Cypress Creek High-Po
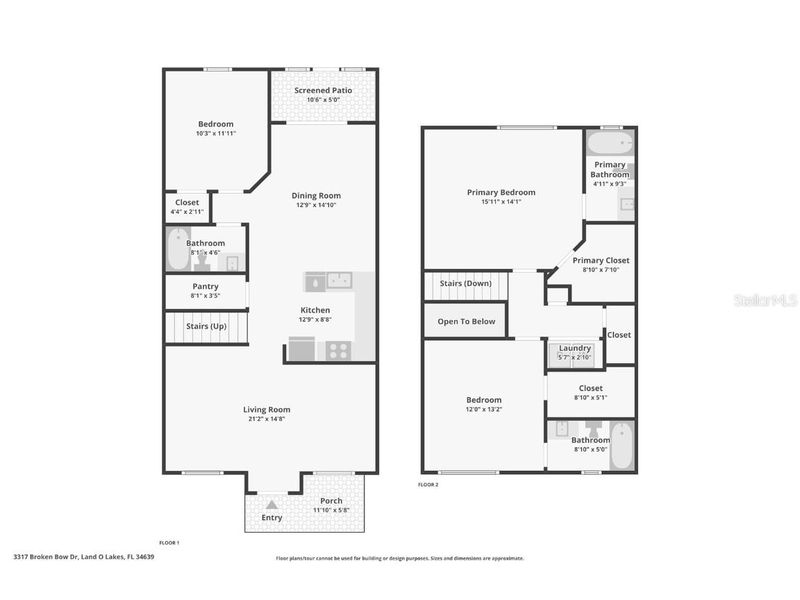
Room Information
Main Floor
Living Room: 15x21
Bathroom 2: 5x8
Bedroom 2: 12x10
Dining Room: 15x13
Kitchen: 9x13
Upper Floor
Bathroom 3: 5x9
Bedroom 3: 13x12
Laundry: 3x6
Primary Bathroom: 9x5
Primary Bedroom: 14x16
Bathrooms
Full Baths: 3
Additonal Room Information
Laundry: Inside, Washer Hookup, Upper Level, Electric Dryer Hookup, Laundry Closet
Interior Features
Appliances: Electric Water Heater, Washer, Refrigerator, Dishwasher, Disposal, Dryer, Cooktop, Microwave
Flooring: Carpet,Tile
Doors/Windows: Blinds
Accessibility: Stair Lift
Additional Interior Features: Walk-In Closet(s), High Ceilings, Upper Level Primary
Utilities
Water: Public
Sewer: Public Sewer
Other Utilities: Cable Connected,Electricity Connected,High Speed Internet Available,Municipal Utilities,Sewer Connected,Water Connected
Cooling: Central Air
Heating: Electric
Exterior / Lot Features
Parking Description: Assigned, Guest
Roof: Shingle
Pool: Community, Association
Fencing: fenced, Vinyl
Additional Exterior/Lot Features: Private Yard, Lighting, Screened, Patio, Covered, Front Porch, Landscaped, City Lot
Community Features
Community Features: Gated, Pool, Sidewalks, Community Mailbox
Security Features: Gated Community, Security System Owned, Smoke Detector(s)
Association Amenities: Maintenance Grounds, Gated, Pool
HOA Dues Include: Maintenance Structure, Pool(s), Trash, Water, Maintenance Grounds, Sewer
Homeowners Association: Yes
HOA Dues: $303 / Monthly
Driving Directions
From I-75 take exit onto SR-54 heading east. Proceed on SR-54 to Wesley Chapel Blvd and turn north (left). Continue on Wesley Chapel Blvd to the entrance of Stagecoach Village. At Stagecoach Village Blvd and turn left. After passing through the gated entrance turn right onto Broken Bow Dr. Proceed to 3317 Broken Bow Dr, which will be on the right.
Financial Considerations
Terms: Cash,Conventional,FHA,VA Loan
Tax/Property ID: 19-26-22-017.0-028.00-001.0
Tax Amount: 862.74
Tax Year: 2025
A broker reciprocity listing courtesy: DENNIS REALTY & INV. CORP.
Based on information provided by Stellar MLS as distributed by the MLS GRID. Information from the Internet Data Exchange is provided exclusively for consumers’ personal, non-commercial use, and such information may not be used for any purpose other than to identify prospective properties consumers may be interested in purchasing. This data is deemed reliable but is not guaranteed to be accurate by Edina Realty, Inc., or by the MLS. Edina Realty, Inc., is not a multiple listing service (MLS), nor does it offer MLS access.
Copyright 2025 Stellar MLS as distributed by the MLS GRID. All Rights Reserved.
Payment Calculator
Interest rate and annual percentage rate (APR) are based on current market conditions, are for informational purposes only, are subject to change without notice and may be subject to pricing add-ons related to property type, loan amount, loan-to-value, credit score and other variables. Estimated closing costs used in the APR calculation are assumed to be paid by the borrower at closing. If the closing costs are financed, the loan, APR and payment amounts will be higher. If the down payment is less than 20%, mortgage insurance may be required and could increase the monthly payment and APR. Contact us for details. Additional loan programs may be available. Accuracy is not guaranteed, and all products may not be available in all borrower's geographical areas and are based on their individual situation. This is not a credit decision or a commitment to lend.
Sales History & Tax Summary for 3317 Broken Bow Drive
Sales History
| Date | Price | Change |
|---|---|---|
| Currently not available. | ||
Tax Summary
| Tax Year | Estimated Market Value | Total Tax |
|---|---|---|
| Currently not available. | ||
Data powered by ATTOM Data Solutions. Copyright© 2025. Information deemed reliable but not guaranteed.
Schools
Schools nearby 3317 Broken Bow Drive
| Schools in attendance boundaries | Grades | Distance | Rating |
|---|---|---|---|
| Loading... | |||
| Schools nearby | Grades | Distance | Rating |
|---|---|---|---|
| Loading... | |||
Data powered by ATTOM Data Solutions. Copyright© 2025. Information deemed reliable but not guaranteed.
The schools shown represent both the assigned schools and schools by distance based on local school and district attendance boundaries. Attendance boundaries change based on various factors and proximity does not guarantee enrollment eligibility. Please consult your real estate agent and/or the school district to confirm the schools this property is zoned to attend. Information is deemed reliable but not guaranteed.
SchoolDigger ® Rating
The SchoolDigger rating system is a 1-5 scale with 5 as the highest rating. SchoolDigger ranks schools based on test scores supplied by each state's Department of Education. They calculate an average standard score by normalizing and averaging each school's test scores across all tests and grades.
Coming soon properties will soon be on the market, but are not yet available for showings.