332 Villoresi Boulevard Nokomis, FL 34275
Pending MLS# A4680163
3 beds 3 baths 2,000 sq ft Single Family
Details for 332 Villoresi Boulevard
MLS# A4680163
Description for 332 Villoresi Boulevard, Nokomis, FL, 34275
Under contract-accepting backup offers. Welcome to a truly exceptional living experience that surpasses even the most breathtaking model homes! This is your chance to embrace a luxurious lifestyle in a stunning showcase home nestled on an exclusive lakefront lot. With three generous bedrooms, two full bathrooms, and an additional powder room, there's plenty of space for you to enjoy both comfort and elegance. And, the extended garage is perfect for your golf cart, larger vehicle, or extra storage, catering to all your lifestyle needs! The owners of this home invested over $100,000 in thoughtful design and function upgrades post-construction, reflecting their passion for quality living. Starting with the exterior, they added whole house roll down hurricane shutters and hurricane screens on the lanai, creating an easy to use storm protection system. Then, as you step inside, you'll be welcomed by the refined look of wood-look porcelain tile flooring, eye-catching designer wallpaper, and stunning custom wood ceiling beams. Extensive crown molding and stylish lighting fixtures contribute to the home's overall allure, and a custom wood ceiling on the lanai creates an inviting, cozy atmosphere. Prepare to be wowed by the modern kitchen, boasting exquisite level 5 shaker-style cabinetry in a refreshing light gray that include cove crown molding and light valances making this kitchen a delightful space for culinary inspiration! The kitchen also features a designer backsplash, contemporary brass handles, top-notch stainless steel appliances, and luxurious quartz countertops, making it the ultimate gathering spot for family and friends. Your personal retreat awaits in the primary bedroom suite, thoughtfully positioned at the rear of the home to offer breathtaking lake views. The en suite bathroom resembles a spa sanctuary, complete with dual vanities, a spacious walk-in shower, custom mirror frames, and chic lighting. You'll also love the roomy primary closet, featuring customized built-in cabinets and racks that rival those in multi-million dollar custom homes! Even the laundry room is impressive, complete with built-in cabinets and an upgraded washer and dryer, all accentuated by a stylish blue backsplash. The two secondary bedrooms, conveniently located at the front of the home, provide privacy for family or guests, and the handy powder room is great for entertaining! Toscana Isles is a premier gated, resort-style community designed for an active lifestyle, offering you a truly remarkable way of living. Imagine kayaking, canoeing, or fishing on over 200 acres of stunning interconnected lakes! The grand 8,000-square-foot clubhouse serves as a vibrant social hub, featuring a fitness center, ballroom, and a billiards room with a big-screen TVperfect for unforgettable gatherings and exciting activities. And let’s not overlook the unbeatable location! Just a short 10-minute drive will transport you to the stunning Suncoast beaches, the scenic Legacy Trail, and a fantastic array of shopping, dining, and cultural attractions in Venice and Sarasota. Plus, with the new Sarasota Memorial Hospital campus nearby, you'll have everything you need right at your fingertips. Don't let this remarkable opportunity pass you by! Elevate your lifestyle in a community and home that truly embodies luxury and enjoyment. Contact us today for your private showing, you'll be thrilled you did!
Listing Information
Property Type: Residential, Single Family Residence
Status: Pending
Bedrooms: 3
Bathrooms: 3
Lot Size: 0.16 Acres
Square Feet: 2,000 sq ft
Year Built: 2023
Garage: Yes
Stories: 1 Story
Construction: Block,Stucco
Subdivision: Toscana Isles
Builder: DR Horton
Foundation: Slab
County: Sarasota
School Information
Elementary: Laurel Nokomis Elementary
Middle: Laurel Nokomis Middle
High: Venice Senior High
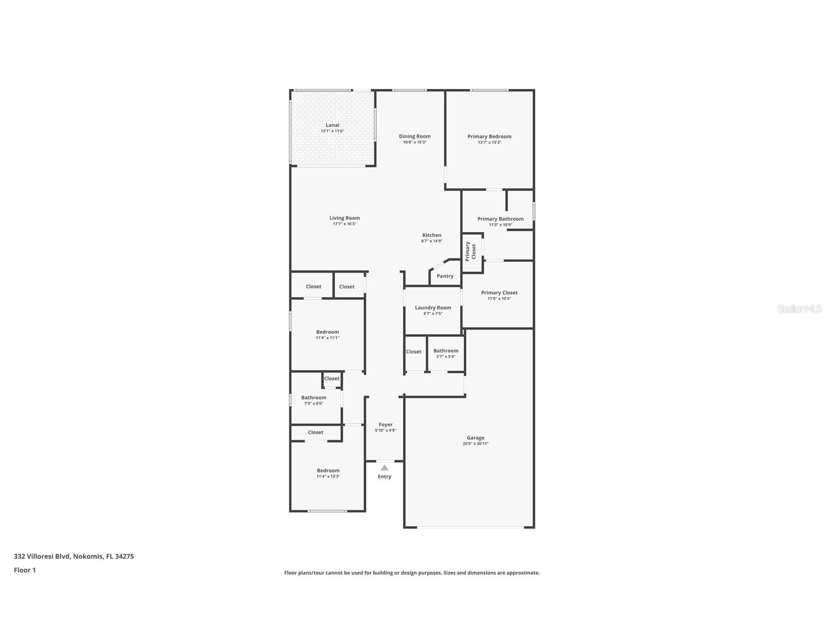
Room Information
Main Floor
Porch: 11x13
Dining Room: 12x10
Kitchen: 12x10
Great Room: 13x17
Bedroom 3: 11x11
Bedroom 2: 11x11
Primary Bedroom: 15x14
Bathrooms
Full Baths: 2
1/2 Baths: 1
Additonal Room Information
Laundry: Laundry Room
Interior Features
Appliances: Microwave, Range, Refrigerator, Washer, Dishwasher, Disposal, Dryer
Flooring: Tile
Doors/Windows: Double Pane Windows, Window Treatments
Additional Interior Features: Split Bedrooms, Walk-In Closet(s), Ceiling Fan(s), Separate/Formal Dining Room, High Ceilings, Built-in Features, Window Treatments, Crown Molding, Open Floorplan, Solid Surface Counters, Smart Home
Utilities
Water: Public
Sewer: Public Sewer
Other Utilities: Cable Connected,Electricity Connected,Fiber Optic Available,High Speed Internet Available,Municipal Utilities,Sewer Connected,Water Connected
Cooling: Ceiling Fan(s), Central Air
Heating: Heat Pump, Electric, Central
Exterior / Lot Features
Attached Garage: Attached Garage
Garage Spaces: 2
Parking Description: Electric Vehicle Charging Station(s), Tandem, Garage Door Opener, Garage, Oversized
Roof: Tile
Pool: Community, Association
Lot View: Lake,Water
Additional Exterior/Lot Features: Storm/Security Shutters, Rain Gutters, Rear Porch, Screened, Landscaped, City Lot
Waterfront Details
Water Front Features: Lake Privileges, Lake Front
Community Features
Community Features: Waterfront, Tennis Court(s), Playground, Pool, Sidewalks, Gated, Fitness, Golf Carts OK, Recreation Area, Water Access, Lake, Clubhouse, Dog Park, Dock, Community Mailbox
Security Features: Gated with Guard, Gated Community
Association Amenities: Security, Clubhouse, Fitness Center, Recreation Facilities, Tennis Court(s), Playground, Pool, Gated, Pickleball
HOA Dues Include: Maintenance Grounds, Reserve Fund, Taxes, Association Management, Pool(s), Common Areas, Recreation Facilities, Security
Homeowners Association: Yes
HOA Dues: $878 / Quarterly
Driving Directions
Laurel Rd East of I-75 to North on Knights Trail to Right to Toscana Isles. Through the main guardhouse gate to immediate Left on Ravello Blvd to Right on Villoresi Blvd to the end. The home will be on the left (lakefront).
Financial Considerations
Terms: Cash,Conventional,VA Loan
Tax/Property ID: 0366150651
Tax Amount: 6974
Tax Year: 2025
A broker reciprocity listing courtesy: COLDWELL BANKER REALTY
Based on information provided by Stellar MLS as distributed by the MLS GRID. Information from the Internet Data Exchange is provided exclusively for consumers’ personal, non-commercial use, and such information may not be used for any purpose other than to identify prospective properties consumers may be interested in purchasing. This data is deemed reliable but is not guaranteed to be accurate by Edina Realty, Inc., or by the MLS. Edina Realty, Inc., is not a multiple listing service (MLS), nor does it offer MLS access.
Copyright 2026 Stellar MLS as distributed by the MLS GRID. All Rights Reserved.
Sales History & Tax Summary for 332 Villoresi Boulevard
Sales History
| Date | Price | |
|---|---|---|
| Currently not available. | ||
Tax Summary
| Tax Year | Estimated Market Value | Total Tax |
|---|---|---|
| Currently not available. | ||
Data powered by ATTOM Data Solutions. Copyright© 2026. Information deemed reliable but not guaranteed.
Schools
Schools nearby 332 Villoresi Boulevard
| Schools in attendance boundaries | Grades | Distance | Rating |
|---|---|---|---|
| Loading... | |||
| Schools nearby | Grades | Distance | Rating |
|---|---|---|---|
| Loading... | |||
Data powered by ATTOM Data Solutions. Copyright© 2026. Information deemed reliable but not guaranteed.
The schools shown represent both the assigned schools and schools by distance based on local school and district attendance boundaries. Attendance boundaries change based on various factors and proximity does not guarantee enrollment eligibility. Please consult your real estate agent and/or the school district to confirm the schools this property is zoned to attend. Information is deemed reliable but not guaranteed.
SchoolDigger ® Rating
The SchoolDigger rating system is a 1-5 scale with 5 as the highest rating. SchoolDigger ranks schools based on test scores supplied by each state's Department of Education. They calculate an average standard score by normalizing and averaging each school's test scores across all tests and grades.
Coming soon properties will soon be on the market, but are not yet available for showings.