3330 8th Avenue N Saint Petersburg, FL 33713
For Sale MLS# TB8441459
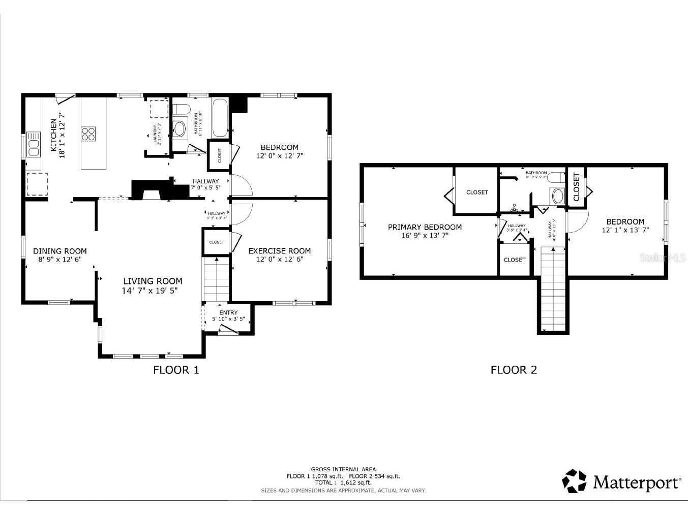
4 beds 2 baths 1,676 sq ft Single Family
Details for 3330 8th Avenue N
MLS# TB8441459
Description for 3330 8th Avenue N, Saint Petersburg, FL, 33713
A rare combination of charm, updates, and future flexibility in desirable Historic Kenwood. Recent improvements include a newer roof, board-and-batten Hardie board siding with Tyvek wrap and updated air-conditioning with individualized climate control by room. The flexible interior layout offers four bedrooms suitable for remote work, guest space or multipurpose living, along with two updated baths, a modernized kitchen and a formal dining room. Luxury flooring extends throughout the home. A fully fenced backyard features an oversized deck ideal for outdoor dining and entertaining, with space for a pool, a potential accessory dwelling unit or both. The property has recently passed a four-point inspection, supporting insurance eligibility. Located outside the flood zone. A new single-story bungalow with a two-car garage is beginning construction next door, elevating the block and supporting long-term neighborhood growth and interest. This 1939 Tudor-style home blends preserved architectural character with modern updates in one of St. Petersburg’s most creative neighborhoods. Make it Yours!
Listing Information
Property Type: Residential, Single Family Residence
Status: Active
Bedrooms: 4
Bathrooms: 2
Lot Size: 0.14 Acres
Square Feet: 1,676 sq ft
Year Built: 1939
Garage: Yes
Stories: 2 Story
Construction: HardiPlank Type
Subdivision: Kenwood Sub Add
Foundation: Crawlspace
County: Pinellas
Room Information
Main Floor
Dining Room:
Bedroom 3:
Bedroom 2:
Living Room:
Kitchen:
Upper Floor
Bedroom 4:
Primary Bedroom:
Bathrooms
Full Baths: 2
Additonal Room Information
Laundry: Inside, Laundry Closet
Interior Features
Appliances: Electric Water Heater, Built-In Oven, Ice Maker, Washer, Refrigerator, Dishwasher, Disposal, Dryer, Cooktop
Flooring: Laminate
Basement: Crawl Space
Doors/Windows: Window Treatments, Blinds
Fireplaces: Living Room
Additional Interior Features: Walk-In Closet(s), Built-in Features, High Ceilings, Window Treatments, Split Bedrooms, Ceiling Fan(s), Eat-In Kitchen, Stone Counters, Wood Cabinets
Utilities
Water: Public
Sewer: Public Sewer
Other Utilities: Cable Connected,Electricity Connected,Sewer Connected,Water Connected
Cooling: Ceiling Fan(s), Ductless
Heating: Heat Pump
Exterior / Lot Features
Garage Spaces: 2
Parking Description: Alley Access, Garage Faces Rear
Roof: Shingle
Lot Dimensions: 50x121
Fencing: Wood
Additional Exterior/Lot Features: Sprinkler/Irrigation, Awning(s), Deck, Flat, Level, Landscaped, City Lot
Community Features
Community Features: Street Lights, Sidewalks
Security Features: Smoke Detector(s)
Driving Directions
From US 19, turn East on 8th Ave N. Home is on the south side of 8th Ave N. Picket fence around front.
Financial Considerations
Terms: Cash,Conventional,FHA,VA Loan
Tax/Property ID: 14-31-16-46350-016-0040
Tax Amount: 7405.28
Tax Year: 2024
A broker reciprocity listing courtesy: PREMIER SOTHEBYS INTL REALTY
Based on information provided by Stellar MLS as distributed by the MLS GRID. Information from the Internet Data Exchange is provided exclusively for consumers’ personal, non-commercial use, and such information may not be used for any purpose other than to identify prospective properties consumers may be interested in purchasing. This data is deemed reliable but is not guaranteed to be accurate by Edina Realty, Inc., or by the MLS. Edina Realty, Inc., is not a multiple listing service (MLS), nor does it offer MLS access.
Copyright 2026 Stellar MLS as distributed by the MLS GRID. All Rights Reserved.
Payment Calculator
Interest rate and annual percentage rate (APR) are based on current market conditions, are for informational purposes only, are subject to change without notice and may be subject to pricing add-ons related to property type, loan amount, loan-to-value, credit score and other variables. Estimated closing costs used in the APR calculation are assumed to be paid by the borrower at closing. If the closing costs are financed, the loan, APR and payment amounts will be higher. If the down payment is less than 20%, mortgage insurance may be required and could increase the monthly payment and APR. Contact us for details. Additional loan programs may be available. Accuracy is not guaranteed, and all products may not be available in all borrower's geographical areas and are based on their individual situation. This is not a credit decision or a commitment to lend.
Sales History & Tax Summary for 3330 8th Avenue N
Sales History
| Date | Price | |
|---|---|---|
| Currently not available. | ||
Tax Summary
| Tax Year | Estimated Market Value | Total Tax |
|---|---|---|
| Currently not available. | ||
Data powered by ATTOM Data Solutions. Copyright© 2026. Information deemed reliable but not guaranteed.
Schools
Schools nearby 3330 8th Avenue N
| Schools in attendance boundaries | Grades | Distance | Rating |
|---|---|---|---|
| Loading... | |||
| Schools nearby | Grades | Distance | Rating |
|---|---|---|---|
| Loading... | |||
Data powered by ATTOM Data Solutions. Copyright© 2026. Information deemed reliable but not guaranteed.
The schools shown represent both the assigned schools and schools by distance based on local school and district attendance boundaries. Attendance boundaries change based on various factors and proximity does not guarantee enrollment eligibility. Please consult your real estate agent and/or the school district to confirm the schools this property is zoned to attend. Information is deemed reliable but not guaranteed.
SchoolDigger ® Rating
The SchoolDigger rating system is a 1-5 scale with 5 as the highest rating. SchoolDigger ranks schools based on test scores supplied by each state's Department of Education. They calculate an average standard score by normalizing and averaging each school's test scores across all tests and grades.
Coming soon properties will soon be on the market, but are not yet available for showings.