3358 Mermoor Drive #2102 Palm Harbor, FL 34685
For Sale MLS# W7879330
2 beds 2 baths 1,155 sq ft Condo
Details for 3358 Mermoor Drive #2102
MLS# W7879330
Description for 3358 Mermoor Drive #2102, Palm Harbor, FL, 34685
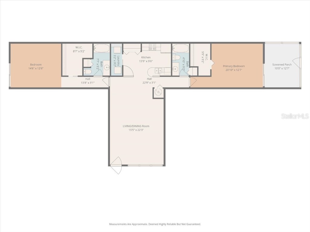
Imagine a place that has not just been completely updated—it’s truly been loved. Welcome to Farrell Park at Ridgemoor! Sitting in the heart of Palm Harbor, this stunning condo is maintenance-free living at it's BEST! With two master bedrooms and two full bathrooms, this home shines with a NEW HVAC (2025), waterproof laminate floors (2025), hot water heater (2025), dryer (2025), fresh paint, Levolor blinds, slow-close shaker cabinets, and more, this is a home you definitely need to see to believe! Both bedrooms are true retreats—equal in size—with customized walk-in closets and new ceiling fans. Each suite also opens to its own private porch, including one that’s fully covered—perfect for morning coffee or evening relaxation! The spacious living/dining area flows easily into the kitchen, making entertaining a breeze. Step outside your front door and enjoy walking and biking trails, tennis and basketball courts, a playground, picnic areas, and a year-round heated pool. All of this is just minutes to golf, parks, shopping, and dining. Homes like this don’t come around often—especially ones that are this move-in ready! Don’t miss your chance to see it today!
Listing Information
Property Type: Residential, Condominium
Status: Active
Bedrooms: 2
Bathrooms: 2
Square Feet: 1,155 sq ft
Year Built: 1992
Stories: 1 Story
Construction: Block,Stucco
Subdivision: Farrell Park Condo
Foundation: Slab
County: Pinellas
School Information
Elementary: Cypress Woods Elementary-Pn
Middle: Carwise Middle-Pn
High: East Lake High-Pn
Room Information
Main Floor
Kitchen: 9x14
Living Room: 22x16
Bathroom 2: 12x14
Primary Bedroom: 12x15
Bathrooms
Full Baths: 2
Additonal Room Information
Laundry: Laundry Room, Inside, Washer Hookup, Electric Dryer Hookup
Interior Features
Appliances: Electric Water Heater, Washer, Range, Refrigerator, Microwave, Dishwasher, Disposal, Dryer
Flooring: Ceramic Tile,Luxury Vinyl
Doors/Windows: Blinds, Window Treatments
Additional Interior Features: Split Bedrooms, Window Treatments, Ceiling Fan(s), Walk-In Closet(s), Built-in Features, Wood Cabinets
Utilities
Sewer: Public Sewer
Other Utilities: Cable Available,Electricity Connected,High Speed Internet Available,Municipal Utilities,Sewer Connected,Water Connected,Water Not Available
Cooling: Ceiling Fan(s), Central Air
Heating: Central, Electric
Exterior / Lot Features
Parking Description: Covered, Assigned, Guest
Roof: Shingle
Pool: Community
Additional Exterior/Lot Features: Courtyard, Sprinkler/Irrigation, Lighting, Storage, Screened, Porch, Side Porch
Community Features
Community Features: Sidewalks, Pool, Tennis Court(s), Playground, Street Lights, Gated, Park, Clubhouse, Community Mailbox
Security Features: Gated Community
HOA Dues Include: Maintenance Grounds, Maintenance Structure, Pool(s), Common Areas, Reserve Fund, Road Maintenance, Cable TV, Trash, Water, Taxes, Recreation Facilities
Driving Directions
Go east on Ridgemoor Blvd. Take a left onto Hillmoor Drive. Take a left onto Mermoor Drive. Building 3358, Entrance is in the front #102.
Financial Considerations
Terms: Cash,Conventional
Tax/Property ID: 35-27-16-27484-002-2102
Tax Amount: 642
Tax Year: 2024
A broker reciprocity listing courtesy: SANDPEAK REALTY
Based on information provided by Stellar MLS as distributed by the MLS GRID. Information from the Internet Data Exchange is provided exclusively for consumers’ personal, non-commercial use, and such information may not be used for any purpose other than to identify prospective properties consumers may be interested in purchasing. This data is deemed reliable but is not guaranteed to be accurate by Edina Realty, Inc., or by the MLS. Edina Realty, Inc., is not a multiple listing service (MLS), nor does it offer MLS access.
Copyright 2026 Stellar MLS as distributed by the MLS GRID. All Rights Reserved.
Payment Calculator
Interest rate and annual percentage rate (APR) are based on current market conditions, are for informational purposes only, are subject to change without notice and may be subject to pricing add-ons related to property type, loan amount, loan-to-value, credit score and other variables. Estimated closing costs used in the APR calculation are assumed to be paid by the borrower at closing. If the closing costs are financed, the loan, APR and payment amounts will be higher. If the down payment is less than 20%, mortgage insurance may be required and could increase the monthly payment and APR. Contact us for details. Additional loan programs may be available. Accuracy is not guaranteed, and all products may not be available in all borrower's geographical areas and are based on their individual situation. This is not a credit decision or a commitment to lend.
Sales History & Tax Summary for 3358 Mermoor Drive #2102
Sales History
| Date | Price | |
|---|---|---|
| Currently not available. | ||
Tax Summary
| Tax Year | Estimated Market Value | Total Tax |
|---|---|---|
| Currently not available. | ||
Data powered by ATTOM Data Solutions. Copyright© 2026. Information deemed reliable but not guaranteed.
Schools
Schools nearby 3358 Mermoor Drive #2102
| Schools in attendance boundaries | Grades | Distance | Rating |
|---|---|---|---|
| Loading... | |||
| Schools nearby | Grades | Distance | Rating |
|---|---|---|---|
| Loading... | |||
Data powered by ATTOM Data Solutions. Copyright© 2026. Information deemed reliable but not guaranteed.
The schools shown represent both the assigned schools and schools by distance based on local school and district attendance boundaries. Attendance boundaries change based on various factors and proximity does not guarantee enrollment eligibility. Please consult your real estate agent and/or the school district to confirm the schools this property is zoned to attend. Information is deemed reliable but not guaranteed.
SchoolDigger ® Rating
The SchoolDigger rating system is a 1-5 scale with 5 as the highest rating. SchoolDigger ranks schools based on test scores supplied by each state's Department of Education. They calculate an average standard score by normalizing and averaging each school's test scores across all tests and grades.
Coming soon properties will soon be on the market, but are not yet available for showings.