$3,795,000
34 Hammock Beach Circle S Palm Coast, FL 32137 - ATLANTIC OCEAN
For Sale MLS# FC313117
6 beds 5 baths 5,324 sq ft Single Family
Details for 34 Hammock Beach Circle S
MLS# FC313117
Description for 34 Hammock Beach Circle S, Palm Coast, FL, 32137 - ATLANTIC OCEAN
Perched on one of the most desirable oversized homesites in Hammock Beach, this 5300 living-square-foot, 6-bedroom, 5-bathroom oceanfront estate redefines coastal luxury with breathtaking panoramic views of the Atlantic Ocean and the Jack Nicklaus Signature Ocean Golf Course, highlighting holes 8 and 9. Wraparound balconies capture vibrant sunrises and serene sunsets, creating an idyllic setting for relaxation and entertaining. The top-floor owner’s suite, a private sanctuary, boasts stunning ocean vistas, a spa-inspired ensuite, generous walk-in closets, and an adjacent leisure room, while a main-level guest suite with a sunset-facing balcony comforts visitors. The open chef’s kitchen, seamlessly integrated with the grand room, features top-tier appliances, a large center island, and custom cabinetry, all framed by floor-to-ceiling windows and doors that flood the space with natural light and ocean views. An elevator provides effortless access to all levels, complemented by smart home technology for lighting, climate, and security control. The first-floor entry pool level serves as a cabana area with additional leisure space, featuring a wet bar, an ensuite bedroom, a full pool bathroom, and two additional bedrooms for ultimate guest comfort. Outside, a heated pool and spa anchor a spacious entertainment area, complete with a summer grilling station featuring an Evo flat-top grill. Electric storm shutters and energy-efficient windows enhance safety and sustainability, while private beach access leads directly to Hammock Beach’s pristine shoreline. As part of a maintenance-free community, residents enjoy exclusive access to an amenity center with pool, kitchen and social spaces. Nestled in the highly desirable Hammock Beach community, just minutes from Hammock Beach Resort vibrant dining and amenities, this ocean estate offers an unparalleled lifestyle of elegance, leisure, and natural beauty, complete with air conditioned garage space equipped with custom storage solutions.
Listing Information
Property Type: Residential, Single Family Residence
Status: Active
Bedrooms: 6
Bathrooms: 5
Lot Size: 0.32 Acres
Square Feet: 5,324 sq ft
Year Built: 2009
Garage: Yes
Stories: 3 Story
Construction: Concrete,Stucco
Construction Display: New Construction
Subdivision: Ocean Hammock
Foundation: Slab,Stem Wall
County: Flagler
Construction Status: New Construction
School Information
Elementary: Old Kings Elementary
Middle: Indian Trails Middle-Fc
High: Matanzas High
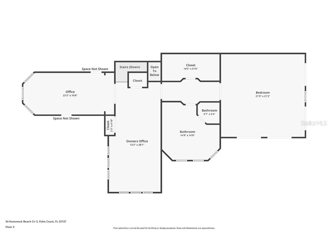
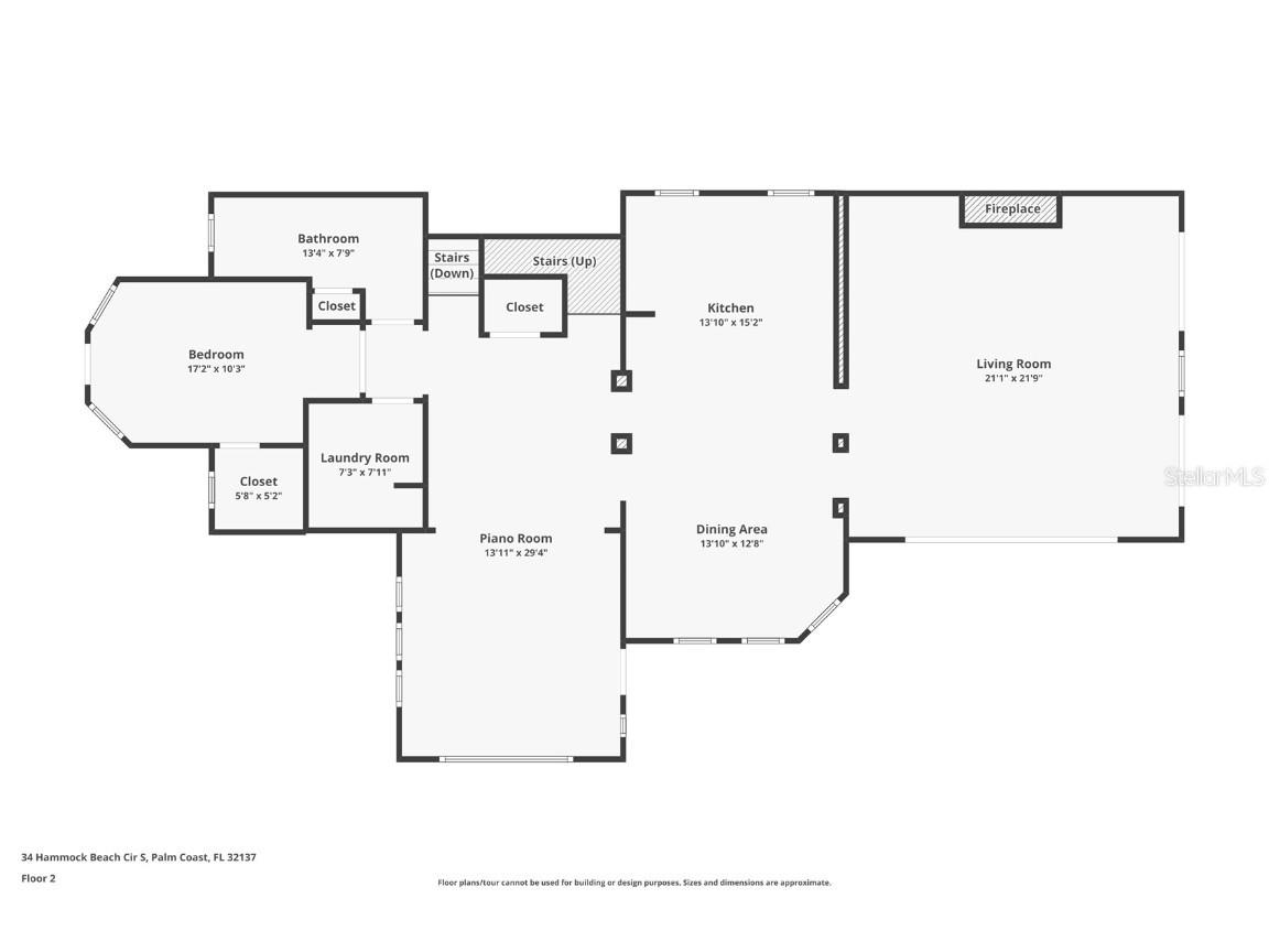
Room Information
Main Floor
Game Room: 12.1x14.7
Bedroom 5: 15x16.3
Bedroom 4: 14x13
Bedroom 3: 16.6x13.3
Upper Floor
Bedroom 1: 10.3x17.2
Bonus Room: 29.4x13.11
Dining Room: 12.8x13.1
Kitchen: 15.2x13.1
Living Room: 21.9x21.1
Bonus Room: 28.1x13.3
Office: 10.8x23.3
Primary Bathroom: 14.9x14.9
Primary Bedroom: 21.2x21.5
Laundry: 7.11x7.3
Bathrooms
Full Baths: 5
Additonal Room Information
Laundry: Inside, Laundry Room
Interior Features
Appliances: Built-In Oven, Bar Fridge, Range Hood, Cooktop, Dishwasher, Disposal, Dryer, Microwave, Washer, Range, Refrigerator, Wine Refrigerator
Flooring: Ceramic Tile,Engineered Hardwood
Fireplaces: Living Room
Additional Interior Features: Wet Bar, Eat-In Kitchen, Split Bedrooms, Ceiling Fan(s), Elevator, Crown Molding, Coffered Ceiling(s), Upper Level Primary, Open Floorplan, Kitchen/Family Room Combo, Walk-In Closet(s), Tray Ceiling(s), Built-in Features, High Ceilings, Solid Surface Counters, Stone Counters, Wood Cabinets
Utilities
Water: Public
Sewer: Public Sewer
Other Utilities: Electricity Connected,Sewer Connected,Underground Utilities,Water Available
Cooling: Ceiling Fan(s), Central Air
Heating: Heat Pump, Central
Exterior / Lot Features
Attached Garage: Attached Garage
Garage Spaces: 2
Parking Description: Garage, Garage Door Opener, driveway, Circular Driveway, Oversized
Roof: Tile
Pool: Tile, Heated, In Ground
Lot View: Beach,Golf Course,Ocean,Pool,Water
Lot Dimensions: IRREGULAR
Additional Exterior/Lot Features: Storm/Security Shutters, Outdoor Grill, Outdoor Shower, Lighting, Outdoor Kitchen, Sprinkler/Irrigation, French Patio Doors, Balcony, Balcony, Covered, Rear Porch, Side Porch, Wrap Around, Irregular Lot, On Golf Course, Private, Landscaped, Cul-de-Sac, City Lot, Oversized Lot, Near Golf Course, Outside City Limits
Waterfront Details
Standard Water Body: ATLANTIC OCEAN
Water Front Features: Gulf Access, Ocean Access
Community Features
Community Features: Golf Carts OK, Gated, Golf
Security Features: Gated Community, Gated with Guard
HOA Dues Include: Security
Homeowners Association: Yes
HOA Dues: $650 / Quarterly
Driving Directions
From I95, take exit 289 heading East onto Palm Coast Pkwy SE; Continue onto Hammock Dunes Bridge and Hammock Dunes Parkway; Right onto Hammock Beach Pkwy; Right onto Hammock Beach Cir; Home will be on the right
Financial Considerations
Terms: Cash,Conventional
Tax/Property ID: 04-11-31-3505-00000-0740
Tax Amount: 22198.63
Tax Year: 2024
A broker reciprocity listing courtesy: COASTAL GATEWAY REAL ESTATE GR
Based on information provided by Stellar MLS as distributed by the MLS GRID. Information from the Internet Data Exchange is provided exclusively for consumers’ personal, non-commercial use, and such information may not be used for any purpose other than to identify prospective properties consumers may be interested in purchasing. This data is deemed reliable but is not guaranteed to be accurate by Edina Realty, Inc., or by the MLS. Edina Realty, Inc., is not a multiple listing service (MLS), nor does it offer MLS access.
Copyright 2025 Stellar MLS as distributed by the MLS GRID. All Rights Reserved.
Payment Calculator
Interest rate and annual percentage rate (APR) are based on current market conditions, are for informational purposes only, are subject to change without notice and may be subject to pricing add-ons related to property type, loan amount, loan-to-value, credit score and other variables. Estimated closing costs used in the APR calculation are assumed to be paid by the borrower at closing. If the closing costs are financed, the loan, APR and payment amounts will be higher. If the down payment is less than 20%, mortgage insurance may be required and could increase the monthly payment and APR. Contact us for details. Additional loan programs may be available. Accuracy is not guaranteed, and all products may not be available in all borrower's geographical areas and are based on their individual situation. This is not a credit decision or a commitment to lend.
Sales History & Tax Summary for 34 Hammock Beach Circle S
Sales History
| Date | Price | Change |
|---|---|---|
| Currently not available. | ||
Tax Summary
| Tax Year | Estimated Market Value | Total Tax |
|---|---|---|
| Currently not available. | ||
Data powered by ATTOM Data Solutions. Copyright© 2025. Information deemed reliable but not guaranteed.
Schools
Schools nearby 34 Hammock Beach Circle S
| Schools in attendance boundaries | Grades | Distance | Rating |
|---|---|---|---|
| Loading... | |||
| Schools nearby | Grades | Distance | Rating |
|---|---|---|---|
| Loading... | |||
Data powered by ATTOM Data Solutions. Copyright© 2025. Information deemed reliable but not guaranteed.
The schools shown represent both the assigned schools and schools by distance based on local school and district attendance boundaries. Attendance boundaries change based on various factors and proximity does not guarantee enrollment eligibility. Please consult your real estate agent and/or the school district to confirm the schools this property is zoned to attend. Information is deemed reliable but not guaranteed.
SchoolDigger ® Rating
The SchoolDigger rating system is a 1-5 scale with 5 as the highest rating. SchoolDigger ranks schools based on test scores supplied by each state's Department of Education. They calculate an average standard score by normalizing and averaging each school's test scores across all tests and grades.
Coming soon properties will soon be on the market, but are not yet available for showings.