3425 High Bluff Drive Largo, FL 33770
For Sale MLS# TB8437114
3 beds 2 baths 1,626 sq ft Single Family
Details for 3425 High Bluff Drive
MLS# TB8437114
Description for 3425 High Bluff Drive, Largo, FL, 33770
Nestled among million dollar homes in Harbor Hills waterfront neighborhood; the house on the hill and NO FLOOD ZONE, this home is the best deal in Largo Florida! Solar panels paid in full (installed 2021) keeping the average electric bill just $30/month. New HVAC system 2025 with 10 year warranty! WOW! WHAT ARE YOU WAITING FOR! Additional updates include new ENERGY STAR WINDOWS including a new front door (2024) for added efficiency! HIGH AND DRY in Flood Zone X, meaning NO FLOOD INSURANCE required! Step inside to a naturally bright EAT-IN KITCHEN, featuring granite countertops, a LARGE BREAKFAST BAR, abundant cabinetry, and a large walk-in pantry. The SPLIT BEDROOM FLOOR PLAN includes 3 bedrooms, 2 full baths, and plenty of storage. The primary suite, living area, and kitchen all open directly to a 300 sq. ft. SCREENED PATIO, perfect for entertaining or relaxing in the refreshing Gulf breeze. Enjoy the fully fenced backyard, ideal for pets and your vegetable and fruit garden. Talk about location, Harbor Hills is one of those quiet, established waterfront neighborhoods among million dollar homes (this is your best investment for less than 500k!). Bonus: easy access to beaches, parks, boat ramps, hospitals, shopping, and top-rated restaurants and schools, just 5 minutes from the beach! With an relaxed hoa of only $100/year and short-term rentals allowed, this property is Airbnb-ready and perfect for investors, snowbirds, or full-time residents alike! Highlights: Average electric bill $30/month (paid-off solar), Energy-efficient upgrades (2024 windows + door), NO flood insurance required, HVAC BRAND NEW INSTALLED 2025 WITH 10 YEAR WARRANTY, 5 minutes to the beach. This Harbor Hills gem combines modern updates, ultra-low utilities, flexible rental potential, and a prime coastal location; a rare find, at this price, in today’s market! YOU HAVE TO SEE IT TO BELIEVE IT, CALL TODAY!
Listing Information
Property Type: Residential, Single Family Residence
Status: Active
Bedrooms: 3
Bathrooms: 2
Lot Size: 0.20 Acres
Square Feet: 1,626 sq ft
Year Built: 1963
Garage: Yes
Stories: 1 Story
Construction: Block
Subdivision: Harbor Hills
Foundation: Slab
County: Pinellas
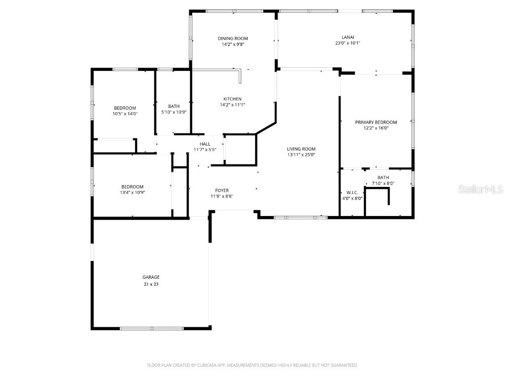
Room Information
Main Floor
Primary Bedroom: 16x12
Living Room: 25x14
Kitchen: 20x14
Foyer: 9x12
Bedroom 3: 14x10
Bedroom 2: 11x13
Porch: 10x23
Bathrooms
Full Baths: 2
Additonal Room Information
Laundry: Washer Hookup, Electric Dryer Hookup
Interior Features
Appliances: Built-In Oven, Electric Water Heater, Dishwasher, Disposal, Microwave, Range, Refrigerator
Flooring: Tile
Doors/Windows: Low-Emissivity Windows, Blinds, Double Pane Windows, Insulated Windows, Window Treatments, ENERGY STAR Qualified Windows, Storm Window(s)
Additional Interior Features: Split Bedrooms, Eat-In Kitchen, Main Level Primary, Crown Molding, Walk-In Closet(s)
Utilities
Water: Public, See Remarks, Well
Sewer: Public Sewer
Other Utilities: Municipal Utilities
Cooling: Central Air
Heating: Solar, Electric, Heat Pump, Central
Exterior / Lot Features
Attached Garage: Attached Garage
Garage Spaces: 2
Parking Description: Circular Driveway
Roof: Shingle
Fencing: fenced, Vinyl
Additional Exterior/Lot Features: Rain Gutters
Community Features
Community Features: Street Lights
Driving Directions
From US 19 head west on Roosevelt/East Bay toward the Gulf, turn left (south) at Indian Rocks Rd, and approximately 1 mile south, 3425 High Bluff Dr will be on the right. Park on street or in drive.
Financial Considerations
Terms: Cash,Conventional,FHA,VA Loan
Tax/Property ID: 05-30-15-35982-001-0410
Tax Amount: 3785
Tax Year: 2024
A broker reciprocity listing courtesy: CHARLES RUTENBERG REALTY INC
Based on information provided by Stellar MLS as distributed by the MLS GRID. Information from the Internet Data Exchange is provided exclusively for consumers’ personal, non-commercial use, and such information may not be used for any purpose other than to identify prospective properties consumers may be interested in purchasing. This data is deemed reliable but is not guaranteed to be accurate by Edina Realty, Inc., or by the MLS. Edina Realty, Inc., is not a multiple listing service (MLS), nor does it offer MLS access.
Copyright 2026 Stellar MLS as distributed by the MLS GRID. All Rights Reserved.
Payment Calculator
Interest rate and annual percentage rate (APR) are based on current market conditions, are for informational purposes only, are subject to change without notice and may be subject to pricing add-ons related to property type, loan amount, loan-to-value, credit score and other variables. Estimated closing costs used in the APR calculation are assumed to be paid by the borrower at closing. If the closing costs are financed, the loan, APR and payment amounts will be higher. If the down payment is less than 20%, mortgage insurance may be required and could increase the monthly payment and APR. Contact us for details. Additional loan programs may be available. Accuracy is not guaranteed, and all products may not be available in all borrower's geographical areas and are based on their individual situation. This is not a credit decision or a commitment to lend.
Sales History & Tax Summary for 3425 High Bluff Drive
Sales History
| Date | Price | |
|---|---|---|
| Currently not available. | ||
Tax Summary
| Tax Year | Estimated Market Value | Total Tax |
|---|---|---|
| Currently not available. | ||
Data powered by ATTOM Data Solutions. Copyright© 2026. Information deemed reliable but not guaranteed.
Schools
Schools nearby 3425 High Bluff Drive
| Schools in attendance boundaries | Grades | Distance | Rating |
|---|---|---|---|
| Loading... | |||
| Schools nearby | Grades | Distance | Rating |
|---|---|---|---|
| Loading... | |||
Data powered by ATTOM Data Solutions. Copyright© 2026. Information deemed reliable but not guaranteed.
The schools shown represent both the assigned schools and schools by distance based on local school and district attendance boundaries. Attendance boundaries change based on various factors and proximity does not guarantee enrollment eligibility. Please consult your real estate agent and/or the school district to confirm the schools this property is zoned to attend. Information is deemed reliable but not guaranteed.
SchoolDigger ® Rating
The SchoolDigger rating system is a 1-5 scale with 5 as the highest rating. SchoolDigger ranks schools based on test scores supplied by each state's Department of Education. They calculate an average standard score by normalizing and averaging each school's test scores across all tests and grades.
Coming soon properties will soon be on the market, but are not yet available for showings.