3430 Pine Ribbon Drive Land O Lakes, FL 34638
For Sale MLS# TB8449366
3 beds 3 baths 1,642 sq ft Townhouse/Twinhome
Details for 3430 Pine Ribbon Drive
MLS# TB8449366
Description for 3430 Pine Ribbon Drive, Land O Lakes, FL, 34638
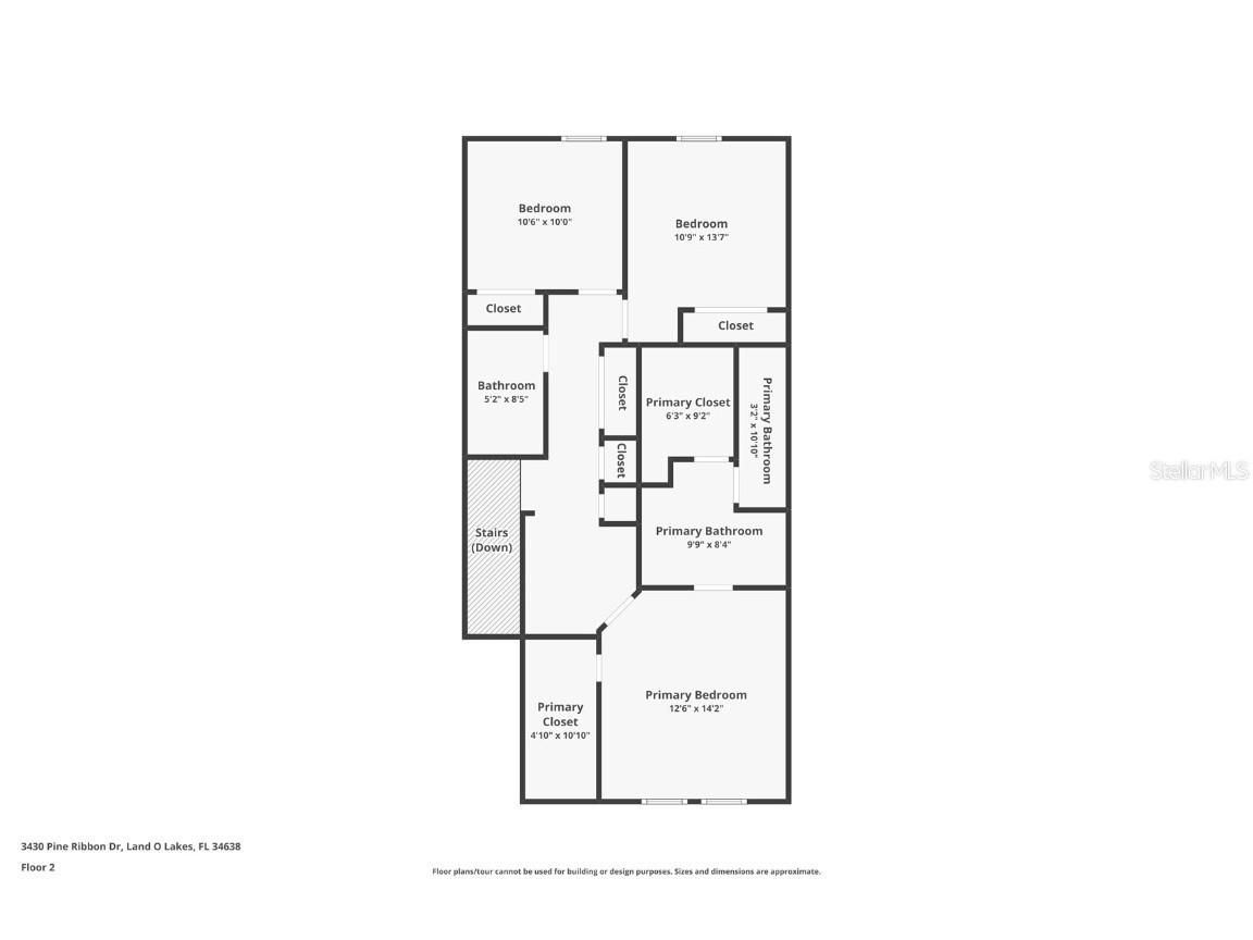
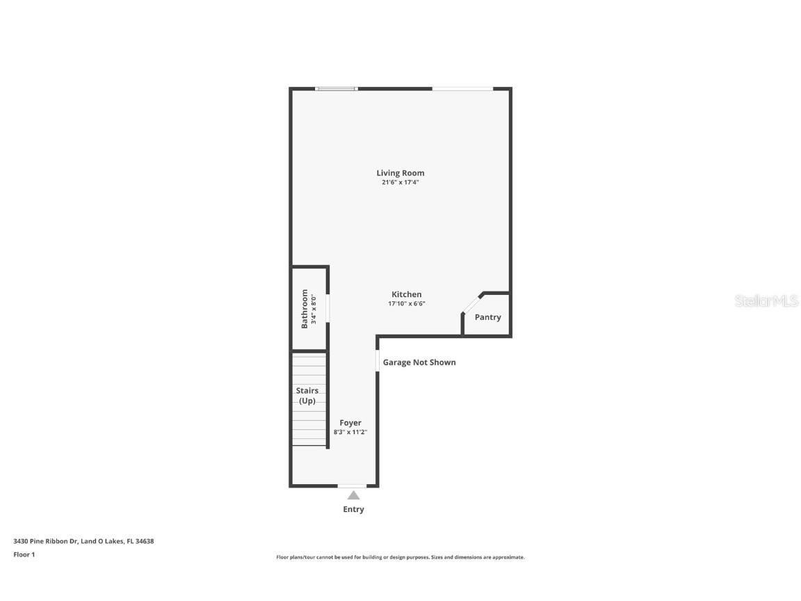
If you’ve been waiting for a low-maintenance home in Bexley at an approachable price point, this is one you need to see. Located in one of Land O Lakes’ most desirable master-planned communities, this 3 bedroom, 2.5 bathroom townhome offers a layout that lives comfortably and makes everyday life easy. The main floor features an open design with a spacious living area and a modern kitchen with stainless steel appliances, ample cabinetry, a pantry, and a dining space that opens directly to the private outdoor patio — perfect for relaxing or entertaining. All three bedrooms are located upstairs, including a generous primary suite with a large walk-in closet and private bath. The additional bedrooms offer flexibility for guests, a home office, or playroom, while the one-car garage provides convenience and extra storage. One of the biggest advantages of this home is the Bexley lifestyle. Residents enjoy access to resort-style pools, a fitness center, miles of walking and biking trails, dog parks, playgrounds, sports fields, and the Bexley Club with a café and year-round community events. Top-rated schools, shopping, dining, and easy access to the Veterans Expressway make this location ideal for both commuters and families. The HOA covers exterior maintenance and community amenities, making this a great option for buyers who want the benefits of homeownership without the maintenance of a single-family home. Priced at $314,999, this home represents an excellent opportunity to own in Bexley at a price point that is becoming increasingly rare. Whether you’re a first-time buyer, looking to downsize, or searching for a solid investment, this home checks the boxes. Schedule your private showing today.
Listing Information
Property Type: Residential, Townhouse
Status: Active
Bedrooms: 3
Bathrooms: 3
Lot Size: 0.06 Acres
Square Feet: 1,642 sq ft
Year Built: 2017
Garage: Yes
Stories: 2 Story
Construction: Block,Stucco
Subdivision: Bexley South Prcl 3 Ph 1
Foundation: Slab
County: Pasco
School Information
Elementary: Bexley Elementary School
Middle: Charles S. Rushe Middle-Po
High: Sunlake High School-Po
Room Information
Main Floor
Living Room:
Kitchen:
Dining Room:
Upper Floor
Bedroom 3:
Bedroom 2:
Primary Bathroom:
Primary Bedroom:
Bathrooms
Full Baths: 2
1/2 Baths: 1
Additonal Room Information
Laundry: Laundry Room
Interior Features
Appliances: Range, Refrigerator, Dishwasher
Flooring: Carpet,Tile
Additional Interior Features: Other, Stone Counters, Open Floorplan
Utilities
Water: Public
Sewer: Public Sewer
Other Utilities: Electricity Available,High Speed Internet Available,Municipal Utilities,Other,Water Available
Cooling: Central Air
Heating: Central
Exterior / Lot Features
Attached Garage: Attached Garage
Garage Spaces: 1
Roof: Shingle
Pool: Community
Additional Exterior/Lot Features: Other
Community Features
Community Features: Sidewalks, Pool, Playground, Clubhouse, Park, Fitness, Recreation Area
HOA Dues Include: Other, Recreation Facilities, Maintenance Structure, Pool(s)
Homeowners Association: Yes
HOA Dues: $168 / Monthly
Driving Directions
From Hwy 54, turn onto Bexley Village Drive (main Bexley entrance) Turn right on Balance Cove Drive Turn left on Pine Ribbon Drive
Financial Considerations
Terms: Cash,Conventional,FHA,VA Loan
Tax/Property ID: 18-26-19-0010-00400-0050
Tax Amount: 5064.41
Tax Year: 2024
A broker reciprocity listing courtesy: EXP REALTY LLC
Based on information provided by Stellar MLS as distributed by the MLS GRID. Information from the Internet Data Exchange is provided exclusively for consumers’ personal, non-commercial use, and such information may not be used for any purpose other than to identify prospective properties consumers may be interested in purchasing. This data is deemed reliable but is not guaranteed to be accurate by Edina Realty, Inc., or by the MLS. Edina Realty, Inc., is not a multiple listing service (MLS), nor does it offer MLS access.
Copyright 2026 Stellar MLS as distributed by the MLS GRID. All Rights Reserved.
Payment Calculator
Interest rate and annual percentage rate (APR) are based on current market conditions, are for informational purposes only, are subject to change without notice and may be subject to pricing add-ons related to property type, loan amount, loan-to-value, credit score and other variables. Estimated closing costs used in the APR calculation are assumed to be paid by the borrower at closing. If the closing costs are financed, the loan, APR and payment amounts will be higher. If the down payment is less than 20%, mortgage insurance may be required and could increase the monthly payment and APR. Contact us for details. Additional loan programs may be available. Accuracy is not guaranteed, and all products may not be available in all borrower's geographical areas and are based on their individual situation. This is not a credit decision or a commitment to lend.
Sales History & Tax Summary for 3430 Pine Ribbon Drive
Sales History
| Date | Price | Change |
|---|---|---|
| Currently not available. | ||
Tax Summary
| Tax Year | Estimated Market Value | Total Tax |
|---|---|---|
| Currently not available. | ||
Data powered by ATTOM Data Solutions. Copyright© 2026. Information deemed reliable but not guaranteed.
Schools
Schools nearby 3430 Pine Ribbon Drive
| Schools in attendance boundaries | Grades | Distance | Rating |
|---|---|---|---|
| Loading... | |||
| Schools nearby | Grades | Distance | Rating |
|---|---|---|---|
| Loading... | |||
Data powered by ATTOM Data Solutions. Copyright© 2026. Information deemed reliable but not guaranteed.
The schools shown represent both the assigned schools and schools by distance based on local school and district attendance boundaries. Attendance boundaries change based on various factors and proximity does not guarantee enrollment eligibility. Please consult your real estate agent and/or the school district to confirm the schools this property is zoned to attend. Information is deemed reliable but not guaranteed.
SchoolDigger ® Rating
The SchoolDigger rating system is a 1-5 scale with 5 as the highest rating. SchoolDigger ranks schools based on test scores supplied by each state's Department of Education. They calculate an average standard score by normalizing and averaging each school's test scores across all tests and grades.
Coming soon properties will soon be on the market, but are not yet available for showings.