3450 Bay Ridge Way Port Charlotte, FL 33953
For Sale MLS# D6143889
3 beds 2 baths 2,065 sq ft Single Family
Details for 3450 Bay Ridge Way
MLS# D6143889
Description for 3450 Bay Ridge Way, Port Charlotte, FL, 33953
RARE COASTAL GEM! Enjoy a "ONE-OF-A-KIND" view, breathtaking Florida sunsets, and cheerful natural light throughout this inviting, spacious "PARTIALLY FURNISHED" 3-Bedroom, 2-Bath Bay Ridge Neighborhood Home in Riverwood located a short distance to the Community Resort Style Pool and Amenities. HUGE ADDED BONUS: A HIGHLY COVETED RIVERWOOD PRIVATE BEACH CLUB MEMBERSHIP ON MANASOTA KEY IS TRANSFERABLE WITH THE HOME PURCHASE Attractive curb appeal greets you with a decorative engraved driveway, lanai, graceful front arches and a side-entry garage, all set on a beautiful premium lot with scenic water views. The desirable open floor plan with high-volume ceilings showcases numerous interior and exterior upgrades, including a new 2023 tile roof, updates to the kitchen and bathrooms, impact windows at the rear of the home, rainforest-bamboo–style granite kitchen countertops, updated flooring in the Great Room and Primary Bedroom, freshly painted interior, and so much more! Beach Club membership and some furnishings are available—ask the agent for details. In addition to owning this spectacular home, residents enjoy Riverwood’s lush tree-lined streets, a renovated activity center with a variety of social events, a sparkling lap pool and resort-style pool, plus a state-of-the-art fitness center and an array of tennis, pickleball, and bocce courts, croquet, and both small and large dog parks. Riverwood is an Audubon Green Community Award winner, celebrated for preserving Florida's wildlife habitats. Optional amenities include the Riverwood Golf Club with its par-72 championship course and a private Beach Club on Manasota Key. Ideally located between Sarasota and Fort Myers on Florida’s West Coast, this home is close to boating, cultural events, dining, shopping, and the stunning beaches of Southwest Florida. ACT FAST! Don’t let this magnificent home slip away. Schedule a showing today and experience a level of luxury and serenity that is simply unmatched.
Listing Information
Property Type: Residential, Single Family Residence
Status: Active
Bedrooms: 3
Bathrooms: 2
Lot Size: 0.25 Acres
Square Feet: 2,065 sq ft
Year Built: 1999
Garage: Yes
Stories: 1 Story
Construction: Block,Stucco
Subdivision: Riverwood
Foundation: Slab
County: Charlotte
School Information
Elementary: Liberty Elementary
Middle: Murdock Middle
High: Port Charlotte High
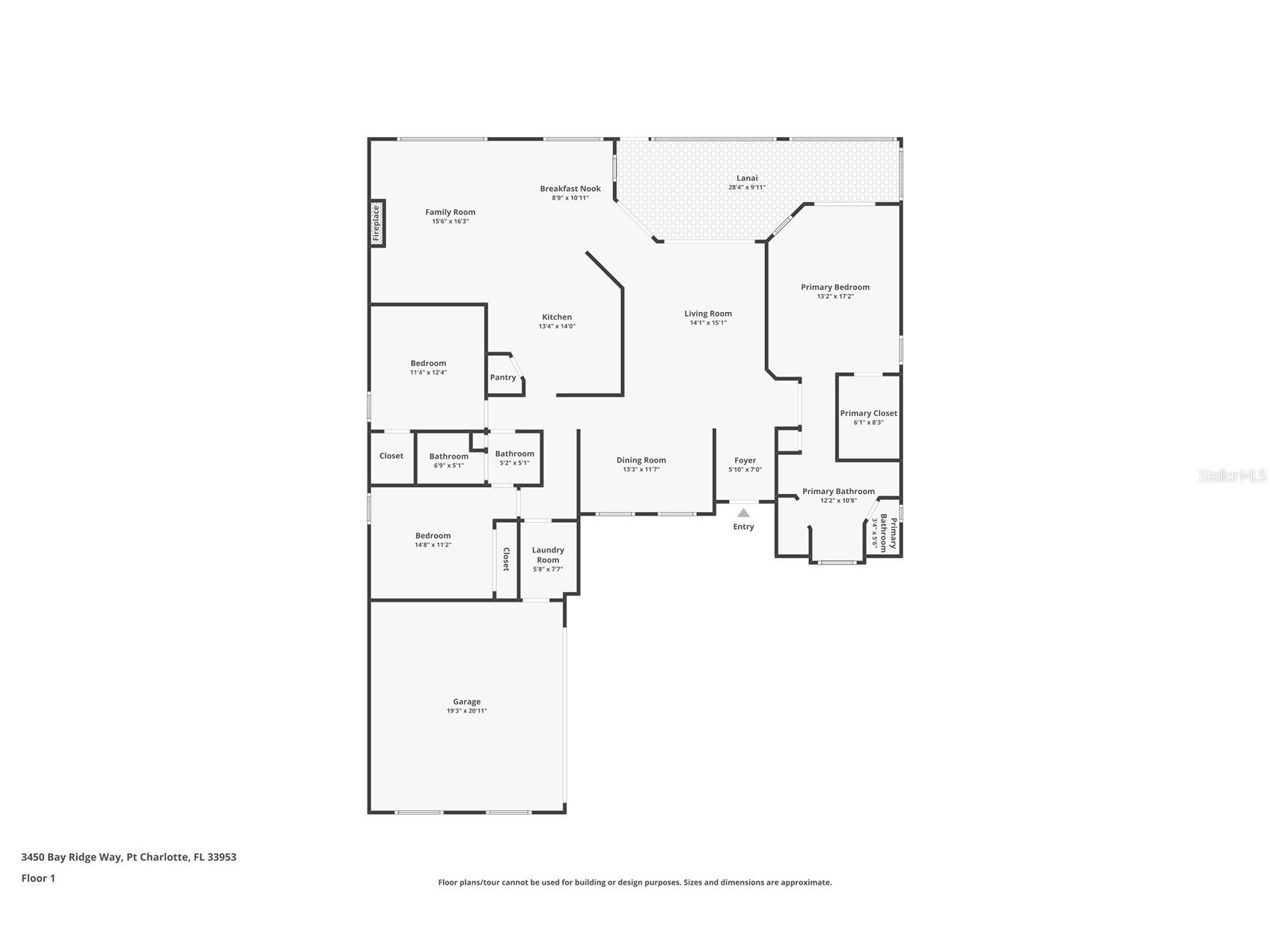
Room Information
Main Floor
Dinette: 8x10
Primary Bedroom: 16x13
Living Room: 14x14
Kitchen: 13x12
Family Room: 16x14
Dining Room: 12x13
Bedroom 3: 12x11
Bedroom 2: 11x12
Bathrooms
Full Baths: 2
Additonal Room Information
Laundry: Inside
Interior Features
Appliances: Electric Water Heater, Washer, Microwave, Range, Refrigerator, Dishwasher, Disposal, Dryer
Flooring: Carpet,Ceramic Tile,Luxury Vinyl
Doors/Windows: Window Treatments, Blinds
Additional Interior Features: Kitchen/Family Room Combo, Open Floorplan, Separate/Formal Living Room, Stone Counters, Attic, High Ceilings, Main Level Primary, Separate/Formal Dining Room, Split Bedrooms, Walk-In Closet(s), Window Treatments, Ceiling Fan(s)
Utilities
Water: Public
Sewer: Public Sewer
Other Utilities: Electricity Connected,Underground Utilities
Cooling: Ceiling Fan(s), Central Air, Humidity Control
Heating: Central
Exterior / Lot Features
Garage Spaces: 2
Parking Description: Garage Door Opener, Garage
Roof: Tile
Pool: Community
Lot View: Lake,Water
Additional Exterior/Lot Features: Sprinkler/Irrigation, Level, Flat, Landscaped, Flood Zone
Community Features
Community Features: Gated, Pool, Tennis Court(s), Playground, Golf, Street Lights
Security Features: Gated Community, Fire Hydrant(s), Smoke Detector(s)
Association Amenities: Recreation Facilities, Playground, Security, Tennis Court(s), Gated
HOA Dues Include: Reserve Fund, Common Areas, Maintenance Grounds, Association Management, Maintenance Structure, Pool(s), Taxes, Security, Recreation Facilities
Homeowners Association: Yes
HOA Dues: $128 / Monthly
Driving Directions
From 41 and 776 in Murdock, go west on 776 to Riverwood on the right. About 4 miles. After the security gate, continue on Riverwood Drive to the 4th Stop Sign. Turn left on to Bay Ridge and follow the road around the turn, the home is on your left.
Financial Considerations
Terms: Cash,Conventional
Tax/Property ID: 402120279010
Tax Amount: 5775.76
Tax Year: 2025
A broker reciprocity listing courtesy: RIVERWOOD REALTY
Based on information provided by Stellar MLS as distributed by the MLS GRID. Information from the Internet Data Exchange is provided exclusively for consumers’ personal, non-commercial use, and such information may not be used for any purpose other than to identify prospective properties consumers may be interested in purchasing. This data is deemed reliable but is not guaranteed to be accurate by Edina Realty, Inc., or by the MLS. Edina Realty, Inc., is not a multiple listing service (MLS), nor does it offer MLS access.
Copyright 2026 Stellar MLS as distributed by the MLS GRID. All Rights Reserved.
Payment Calculator
Interest rate and annual percentage rate (APR) are based on current market conditions, are for informational purposes only, are subject to change without notice and may be subject to pricing add-ons related to property type, loan amount, loan-to-value, credit score and other variables. Estimated closing costs used in the APR calculation are assumed to be paid by the borrower at closing. If the closing costs are financed, the loan, APR and payment amounts will be higher. If the down payment is less than 20%, mortgage insurance may be required and could increase the monthly payment and APR. Contact us for details. Additional loan programs may be available. Accuracy is not guaranteed, and all products may not be available in all borrower's geographical areas and are based on their individual situation. This is not a credit decision or a commitment to lend.
Sales History & Tax Summary for 3450 Bay Ridge Way
Sales History
| Date | Price | |
|---|---|---|
| Currently not available. | ||
Tax Summary
| Tax Year | Estimated Market Value | Total Tax |
|---|---|---|
| Currently not available. | ||
Data powered by ATTOM Data Solutions. Copyright© 2026. Information deemed reliable but not guaranteed.
Schools
Schools nearby 3450 Bay Ridge Way
| Schools in attendance boundaries | Grades | Distance | Rating |
|---|---|---|---|
| Loading... | |||
| Schools nearby | Grades | Distance | Rating |
|---|---|---|---|
| Loading... | |||
Data powered by ATTOM Data Solutions. Copyright© 2026. Information deemed reliable but not guaranteed.
The schools shown represent both the assigned schools and schools by distance based on local school and district attendance boundaries. Attendance boundaries change based on various factors and proximity does not guarantee enrollment eligibility. Please consult your real estate agent and/or the school district to confirm the schools this property is zoned to attend. Information is deemed reliable but not guaranteed.
SchoolDigger ® Rating
The SchoolDigger rating system is a 1-5 scale with 5 as the highest rating. SchoolDigger ranks schools based on test scores supplied by each state's Department of Education. They calculate an average standard score by normalizing and averaging each school's test scores across all tests and grades.
Coming soon properties will soon be on the market, but are not yet available for showings.