$1,295,000
3461 Gum Drive Weeki Wachee, FL 34607
For Sale MLS# W7878693
2 beds 2 baths 2,380 sq ft Single Family
Details for 3461 Gum Drive
MLS# W7878693
Description for 3461 Gum Drive, Weeki Wachee, FL, 34607
FLORIDA'S BEST KEPT SECRET Welcome to PINE ISLAND, FLORIDA — one of the last places on the Gulf Coast that still feels untouched. Getting here is half the magic: a drive down a quiet CAUSEWAY, water glimmering on both sides, and then suddenly... paradise. Just fifty homes make up this tiny island community, each tucked between open water and wild shorelines — the kind of Florida you thought only existed in memories. This GULF-FRONT HOME sits on a LARGE DOUBLE LOT with 125 FEET OF PRIVATE SHORELINE facing west for front-row sunsets that never get old. Out back, it's dolphins instead of neighbors, seashells along the shore, and a sturdy SEAWALL protecting your private stretch of Gulf Coast paradise. PINE ISLAND BEACH PARK is within walking distance, so you can stroll down for ice cream, beach yoga, or a sunset swim without ever getting in the car. Inside, you'll find 2 BEDROOMS + A FLEX AREA DOWNSTAIRS — perfect for guests, an office, or a future third bedroom. Built from CYPRESS WOOD CONSTRUCTION, the home feels solid, warm, and full of authentic coastal character. The layout is open and airy, centered around those panoramic GULF VIEWS that remind you why you're here. Recent updates include a NEW ROOF (2012), NEW AC SYSTEM (2018), UPDATED ELECTRICAL, UPDATED WINDOWS, and FRESH INTERIOR AND EXTERIOR PAINT. The home is being sold COMPLETELY FURNISHED, making it truly move-in ready from day one. Perfectly situated on a private road, this property offers EXCLUSIVITY, TRANQUILITY, AND ACCESS TO SOME OF FLORIDA'S MOST SOUGHT-AFTER NATURAL WONDERS. Nature lovers can enjoy the WEEKI WACHEE RIVER, nearby PRESERVES, and PINE ISLAND PARK, ideal for outdoor adventures. Just down the street, you can catch LIVE MUSIC AND LOCAL SEAFOOD AT BAYPORT INN, or head over to MARY'S FISH CAMP — a beloved local spot where you can RENT KAYAKS, EXPLORE WINDING WATERWAYS, OR HOP ON AN AIRBOAT TOUR. This isn't just a home — IT'S A LIFESTYLE. An opportunity to experience the best of Florida's Gulf Coast, surrounded by natural beauty yet close to everything you need. And the best part? THERE ARE NO RESTRICTIONS ON SHORT- OR LONG-TERM RENTALS, giving you the flexibility to move right in, share it as a vacation retreat, or generate income while you're away. FLORIDA'S BEST-KEPT SECRET IS WAITING — AND IT COMES WITH A PRIVATE BEACH IN YOUR BACKYARD.
Listing Information
Property Type: Residential, Single Family Residence
Status: Active
Bedrooms: 2
Bathrooms: 2
Lot Size: 0.34 Acres
Square Feet: 2,380 sq ft
Year Built: 1971
Stories: 2 Story
Construction: Wood Frame
Subdivision: Pine Island Rep
Foundation: Pillar/Post/Pier
County: Hernando
School Information
Elementary: Westside Elementary-Hn
Middle: Fox Chapel Middle School
High: Weeki Wachee High School
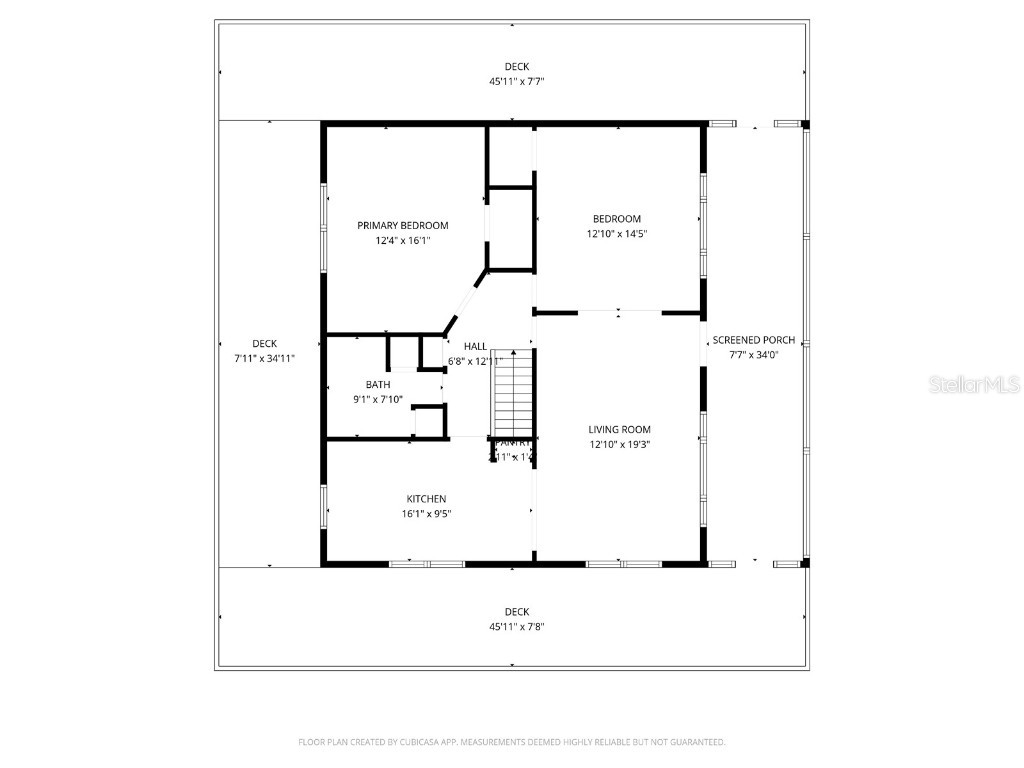
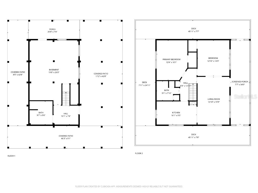
Room Information
Upper Floor
Bedroom 2: 15x13
Primary Bedroom: 16x12
Kitchen: 10x16
Living Room: 19x13
Bathrooms
Full Baths: 2
Additonal Room Information
Laundry: Washer Hookup, Inside, Electric Dryer Hookup
Interior Features
Appliances: Dishwasher, Microwave, Range, Refrigerator
Flooring: Tile,Wood
Additional Interior Features: Walk-In Closet(s), Ceiling Fan(s), Eat-In Kitchen
Utilities
Water: Well
Sewer: Septic Tank
Other Utilities: Cable Available
Cooling: Ceiling Fan(s), Central Air
Heating: Central
Exterior / Lot Features
Roof: Shingle
Lot View: Ocean,Water
Additional Exterior/Lot Features: Other, Flood Zone
Waterfront Details
Water Front Features: Gulf Access, Ocean Access
Driving Directions
From US 19 go west on Cortez Blvd. right on Pine Island Drive, right on Gum Drive. House on Right
Financial Considerations
Terms: Cash,Conventional,Private Financing Available,VA Loan
Tax/Property ID: R13-222-16-3030-0000-0430
Tax Amount: 13463.79
Tax Year: 2024
A broker reciprocity listing courtesy: MERIDIAN REAL ESTATE
Based on information provided by Stellar MLS as distributed by the MLS GRID. Information from the Internet Data Exchange is provided exclusively for consumers’ personal, non-commercial use, and such information may not be used for any purpose other than to identify prospective properties consumers may be interested in purchasing. This data is deemed reliable but is not guaranteed to be accurate by Edina Realty, Inc., or by the MLS. Edina Realty, Inc., is not a multiple listing service (MLS), nor does it offer MLS access.
Copyright 2025 Stellar MLS as distributed by the MLS GRID. All Rights Reserved.
Payment Calculator
Interest rate and annual percentage rate (APR) are based on current market conditions, are for informational purposes only, are subject to change without notice and may be subject to pricing add-ons related to property type, loan amount, loan-to-value, credit score and other variables. Estimated closing costs used in the APR calculation are assumed to be paid by the borrower at closing. If the closing costs are financed, the loan, APR and payment amounts will be higher. If the down payment is less than 20%, mortgage insurance may be required and could increase the monthly payment and APR. Contact us for details. Additional loan programs may be available. Accuracy is not guaranteed, and all products may not be available in all borrower's geographical areas and are based on their individual situation. This is not a credit decision or a commitment to lend.
Sales History & Tax Summary for 3461 Gum Drive
Sales History
| Date | Price | Change |
|---|---|---|
| Currently not available. | ||
Tax Summary
| Tax Year | Estimated Market Value | Total Tax |
|---|---|---|
| Currently not available. | ||
Data powered by ATTOM Data Solutions. Copyright© 2025. Information deemed reliable but not guaranteed.
Schools
Schools nearby 3461 Gum Drive
| Schools in attendance boundaries | Grades | Distance | Rating |
|---|---|---|---|
| Loading... | |||
| Schools nearby | Grades | Distance | Rating |
|---|---|---|---|
| Loading... | |||
Data powered by ATTOM Data Solutions. Copyright© 2025. Information deemed reliable but not guaranteed.
The schools shown represent both the assigned schools and schools by distance based on local school and district attendance boundaries. Attendance boundaries change based on various factors and proximity does not guarantee enrollment eligibility. Please consult your real estate agent and/or the school district to confirm the schools this property is zoned to attend. Information is deemed reliable but not guaranteed.
SchoolDigger ® Rating
The SchoolDigger rating system is a 1-5 scale with 5 as the highest rating. SchoolDigger ranks schools based on test scores supplied by each state's Department of Education. They calculate an average standard score by normalizing and averaging each school's test scores across all tests and grades.
Coming soon properties will soon be on the market, but are not yet available for showings.