3480 Lakeshore Boulevard Saint Cloud, FL 34769 - EAST LAKE TOHOPEKALIGA
For Sale MLS# O6345402
5 beds 4 baths 2,806 sq ft Single Family
Details for 3480 Lakeshore Boulevard
MLS# O6345402
Description for 3480 Lakeshore Boulevard, Saint Cloud, FL, 34769 - EAST LAKE TOHOPEKALIGA
One or more photo(s) has been virtually staged. Just reduced price and ready for new owner! Ready to have a home with NO HOA and on city water?! Welcome to 3480 Lakeshore Blvd, where waterfront living meets freedom and opportunity. Perfectly set on a .75-acre lot with direct access to East Lake Toho via your backyard canal, this spacious two-story home offers 5 bedrooms, 4 bathrooms, and over 2800 sq ft of flexible living space—with water views from multiple rooms. With no HOA, you’ll have the freedom to make this property uniquely yours, whether you dream of adding a boat dock, keeping recreational toys, or creating your own backyard oasis. Inside, you’ll find a home designed for both functionality and potential. The family room features double sliders leading to the covered, screened-in lanai, while sliders off the kitchen also open to the same space—seamlessly connecting indoor and outdoor living. Upstairs, the loft with hardwood floors opens to a balcony via dual sliding doors, offering stunning lake and canal views. The primary suite on the first floor includes dual walk-in closets, a jacuzzi tub, and private water views. This home includes thoughtful updates such as hurricane-proof windows upstairs and in three main-level windows, a brand-new LG refrigerator, washer, and dryer, 2005 upgraded roof with 50-year architectural shingles, and two AC units from 2021 with a smart thermostat-controlled AC for modern convenience. Flooring combines hardwood and tile for easy upkeep, and extras like central vacuum add to the home’s practicality. Plus, this home is on city water! Step outside to enjoy your own fruit trees—mango, guava, strawberry lychee, and avocado—and a gated circular driveway that makes for an impressive arrival. The canal behind the home offers the ideal spot for a future boat dock, ensuring quick access to East Lake Toho for fishing and boating. And just 1.6 miles away, Lakefront Marina and Park provides even more recreation and convenience. Disney and Universal are about 40 mins away, Orlando airport about 30 mins and the Atlantic Beaches are about an hour away! Shopping conveniences are not far, such as Home Depot, Walmart, Publix and tons of restaurant options! Priced with room for the next owner to bring their imagination and updates, this home is the perfect canvas for your waterfront dream. Don’t miss the chance to make it yours—schedule your private showing today!
Listing Information
Property Type: Residential, Single Family Residence
Status: Active
Bedrooms: 5
Bathrooms: 4
Lot Size: 0.75 Acres
Square Feet: 2,806 sq ft
Year Built: 1993
Garage: Yes
Stories: 2 Story
Construction: Block,Concrete,Stucco,Wood Frame
Subdivision: Tindall Estates
Foundation: Slab
County: Osceola
School Information
Elementary: Lakeview Elem (K 5)
Middle: St. Cloud Middle (6-8)
High: St. Cloud High School
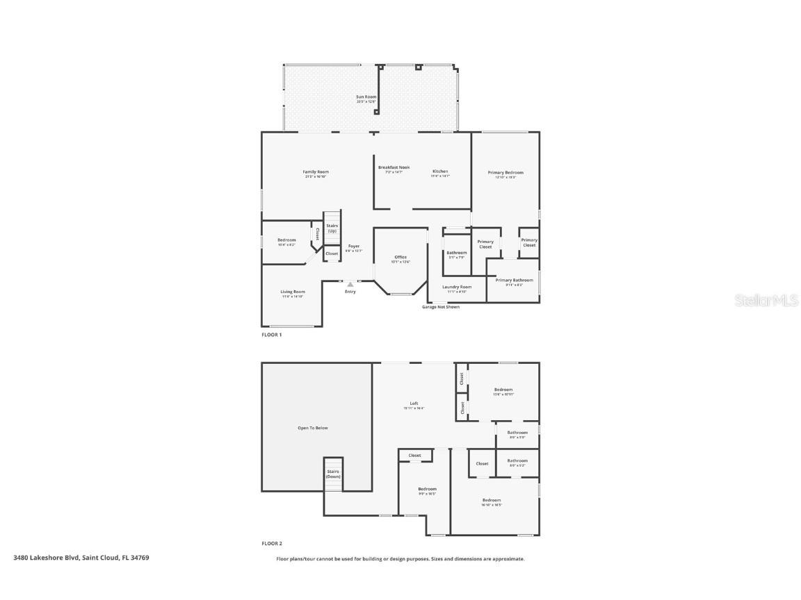
Room Information
Main Floor
Kitchen: 14.7x11.4
Bedroom 2: 8.2x10.4
Primary Bedroom: 18.3x12.1
Office: 12.6x10.1
Living Room: 14.1x11.4
Great Room: 16.1x21.5
Upper Floor
Loft: 16.4x15.11
Bedroom 5: 10.11x13.6
Bedroom 4: 16.5x16.1
Bedroom 3: 16.5x9.9
Bathrooms
Full Baths: 4
Additonal Room Information
Laundry: Inside, Laundry Room
Interior Features
Appliances: Convection Oven, Washer, Electric Water Heater, Dishwasher, Disposal, Dryer, Microwave, Range, Refrigerator
Flooring: Ceramic Tile,Wood
Doors/Windows: Insulated Windows, Storm Window(s)
Additional Interior Features: Eat-In Kitchen, Walk-In Closet(s), High Ceilings, Ceiling Fan(s), Central Vacuum, Vaulted Ceiling(s), Separate/Formal Living Room, Main Level Primary, Split Bedrooms
Utilities
Water: Public
Sewer: Septic Tank
Other Utilities: Electricity Connected,Water Connected
Cooling: Ceiling Fan(s), Central Air
Heating: Central, Electric
Exterior / Lot Features
Attached Garage: Attached Garage
Garage Spaces: 2
Parking Description: Garage Door Opener, Circular Driveway, driveway, Garage, Oversized, Garage Faces Side
Roof: Shingle
Lot View: Lake,Water
Lot Dimensions: 100x336
Additional Exterior/Lot Features: Sprinkler/Irrigation, Rain Gutters, Balcony, Balcony, Covered, Enclosed, Screened, Rear Porch, Front Porch, Cleared, Landscaped, Oversized Lot, Conservation Area
Waterfront Details
Standard Water Body: EAST LAKE TOHOPEKALIGA
Water Front Features: Lake Privileges, Lake Front
Driving Directions
From Lake Nona take Narcoossee Rd south. Turn right onto Rummel Rd, turn right onto Mississippi. Misissippi turns left and becomes E Lakeshore Blvd. Drive 2.5 miles, house on right. From FL Turnpike, exit 244 towards US 192/441. Turn left onto Partin Settlement Rd. Continue onto E Lakeshore Blvd. Drive 1.1 miles to house on the left.
Financial Considerations
Terms: Cash,Conventional,VA Loan
Tax/Property ID: 34-25-30-5200-0001-0130
Tax Amount: 9291.7
Tax Year: 2024
A broker reciprocity listing courtesy: LPT REALTY, LLC
Based on information provided by Stellar MLS as distributed by the MLS GRID. Information from the Internet Data Exchange is provided exclusively for consumers’ personal, non-commercial use, and such information may not be used for any purpose other than to identify prospective properties consumers may be interested in purchasing. This data is deemed reliable but is not guaranteed to be accurate by Edina Realty, Inc., or by the MLS. Edina Realty, Inc., is not a multiple listing service (MLS), nor does it offer MLS access.
Copyright 2025 Stellar MLS as distributed by the MLS GRID. All Rights Reserved.
Payment Calculator
Interest rate and annual percentage rate (APR) are based on current market conditions, are for informational purposes only, are subject to change without notice and may be subject to pricing add-ons related to property type, loan amount, loan-to-value, credit score and other variables. Estimated closing costs used in the APR calculation are assumed to be paid by the borrower at closing. If the closing costs are financed, the loan, APR and payment amounts will be higher. If the down payment is less than 20%, mortgage insurance may be required and could increase the monthly payment and APR. Contact us for details. Additional loan programs may be available. Accuracy is not guaranteed, and all products may not be available in all borrower's geographical areas and are based on their individual situation. This is not a credit decision or a commitment to lend.
Sales History & Tax Summary for 3480 Lakeshore Boulevard
Sales History
| Date | Price | Change |
|---|---|---|
| Currently not available. | ||
Tax Summary
| Tax Year | Estimated Market Value | Total Tax |
|---|---|---|
| Currently not available. | ||
Data powered by ATTOM Data Solutions. Copyright© 2025. Information deemed reliable but not guaranteed.
Schools
Schools nearby 3480 Lakeshore Boulevard
| Schools in attendance boundaries | Grades | Distance | Rating |
|---|---|---|---|
| Loading... | |||
| Schools nearby | Grades | Distance | Rating |
|---|---|---|---|
| Loading... | |||
Data powered by ATTOM Data Solutions. Copyright© 2025. Information deemed reliable but not guaranteed.
The schools shown represent both the assigned schools and schools by distance based on local school and district attendance boundaries. Attendance boundaries change based on various factors and proximity does not guarantee enrollment eligibility. Please consult your real estate agent and/or the school district to confirm the schools this property is zoned to attend. Information is deemed reliable but not guaranteed.
SchoolDigger ® Rating
The SchoolDigger rating system is a 1-5 scale with 5 as the highest rating. SchoolDigger ranks schools based on test scores supplied by each state's Department of Education. They calculate an average standard score by normalizing and averaging each school's test scores across all tests and grades.
Coming soon properties will soon be on the market, but are not yet available for showings.