3507 Saxon Drive New Smyrna Beach, FL 32169
For Sale MLS# NS1086084
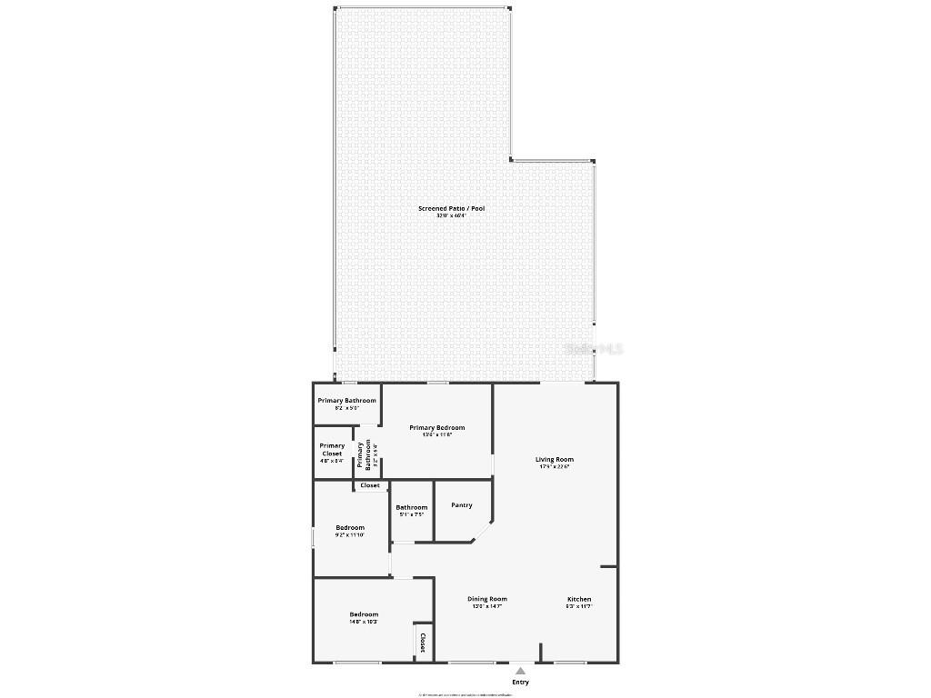
3 beds 2 baths 1,480 sq ft Single Family
Details for 3507 Saxon Drive
MLS# NS1086084
Description for 3507 Saxon Drive, New Smyrna Beach, FL, 32169
Beachside 3 Br, 2 Ba, screened in Pool Home! RV Parking, Year 2023 Screened Saltwater (heated 40x10) Pool with covered Lanai and Deck. Enjoy Beach Life. Open Floorplan with Large Living Room, Open Kitchen with Breakfast Bar, and Dining Room. The Primary Bedroom features an En-suite Bath. Features Include: Tile Throughout, Stainless Appliances, Roof in 2021, RV Parking Pad with 50 amp Hookup, Vinyl Fence, access to Alley off 25th Avenue from Bac kyard for extra parking of RV or Boat, Termite Bond, Quarterly Pest Control through October. Located in New Smyrna a couple of Blocks to the Beach, Walking Trails, Restaurants, Local Attraction, Shopping. Easy to View.
Listing Information
Property Type: Residential, Single Family Residence
Status: Active
Bedrooms: 3
Bathrooms: 2
Lot Size: 0.17 Acres
Square Feet: 1,480 sq ft
Year Built: 1957
Stories: 1 Story
Construction: Block,Stucco
Construction Display: New Construction
Subdivision: New Smyrna Beach
Foundation: Slab
County: Volusia
Construction Status: New Construction
Room Information
Main Floor
Primary Bathroom: 3.17x6.33
Bathroom 2: 5.08x7.42
Primary Bathroom: 5x8.17
Bedroom 3: 9.17x11.83
Bedroom 2: 10.25x14.67
Primary Bedroom: 11.67x13.5
Dining Room: 13x14.58
Kitchen: 9.25x11.58
Living Room: 17.75x22.5
Bathrooms
Full Baths: 2
Additonal Room Information
Laundry: Inside
Interior Features
Appliances: Electric Water Heater, Range, Refrigerator, Washer, Dishwasher, Dryer, Microwave
Flooring: Ceramic Tile
Additional Interior Features: Open Floorplan
Utilities
Water: Public
Sewer: Public Sewer
Other Utilities: Cable Connected,Electricity Connected,High Speed Internet Available,Municipal Utilities,Sewer Connected,Water Connected
Cooling: Central Air
Heating: Electric, Central
Exterior / Lot Features
Parking Description: driveway, Off Street
Roof: Shingle
Pool: In Ground
Lot View: Pool
Lot Dimensions: 50x145
Fencing: Other
Additional Exterior/Lot Features: Rain Gutters, Rear Porch, Enclosed, Screened, Covered, Landscaped, Cleared
Driving Directions
South Causeway (3rd Ave) - right on Saxon. Property will be on the left.
Financial Considerations
Terms: Cash,Conventional
Tax/Property ID: 74-22-01-57-0701
Tax Amount: 8822
Tax Year: 2024
A broker reciprocity listing courtesy: COLLADO REAL ESTATE
Based on information provided by Stellar MLS as distributed by the MLS GRID. Information from the Internet Data Exchange is provided exclusively for consumers’ personal, non-commercial use, and such information may not be used for any purpose other than to identify prospective properties consumers may be interested in purchasing. This data is deemed reliable but is not guaranteed to be accurate by Edina Realty, Inc., or by the MLS. Edina Realty, Inc., is not a multiple listing service (MLS), nor does it offer MLS access.
Copyright 2026 Stellar MLS as distributed by the MLS GRID. All Rights Reserved.
Payment Calculator
Interest rate and annual percentage rate (APR) are based on current market conditions, are for informational purposes only, are subject to change without notice and may be subject to pricing add-ons related to property type, loan amount, loan-to-value, credit score and other variables. Estimated closing costs used in the APR calculation are assumed to be paid by the borrower at closing. If the closing costs are financed, the loan, APR and payment amounts will be higher. If the down payment is less than 20%, mortgage insurance may be required and could increase the monthly payment and APR. Contact us for details. Additional loan programs may be available. Accuracy is not guaranteed, and all products may not be available in all borrower's geographical areas and are based on their individual situation. This is not a credit decision or a commitment to lend.
Sales History & Tax Summary for 3507 Saxon Drive
Sales History
| Date | Price | |
|---|---|---|
| Currently not available. | ||
Tax Summary
| Tax Year | Estimated Market Value | Total Tax |
|---|---|---|
| Currently not available. | ||
Data powered by ATTOM Data Solutions. Copyright© 2026. Information deemed reliable but not guaranteed.
Schools
Schools nearby 3507 Saxon Drive
| Schools in attendance boundaries | Grades | Distance | Rating |
|---|---|---|---|
| Loading... | |||
| Schools nearby | Grades | Distance | Rating |
|---|---|---|---|
| Loading... | |||
Data powered by ATTOM Data Solutions. Copyright© 2026. Information deemed reliable but not guaranteed.
The schools shown represent both the assigned schools and schools by distance based on local school and district attendance boundaries. Attendance boundaries change based on various factors and proximity does not guarantee enrollment eligibility. Please consult your real estate agent and/or the school district to confirm the schools this property is zoned to attend. Information is deemed reliable but not guaranteed.
SchoolDigger ® Rating
The SchoolDigger rating system is a 1-5 scale with 5 as the highest rating. SchoolDigger ranks schools based on test scores supplied by each state's Department of Education. They calculate an average standard score by normalizing and averaging each school's test scores across all tests and grades.
Coming soon properties will soon be on the market, but are not yet available for showings.