3509 Spring Creek Road Dundee, FL 33838
For Sale MLS# O6334000
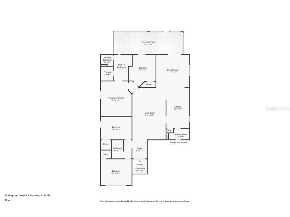
4 beds 2 baths 1,879 sq ft Single Family
Details for 3509 Spring Creek Road
MLS# O6334000
Description for 3509 Spring Creek Road, Dundee, FL, 33838
You’ll be impressed from the moment you arrive at this Striking & Captivating home highlighted by stunning brick detailing and situated on a desirable corner lot. Nestled in the highly sought-after Mabel Loop Ridge Subdivision, this 4-Bedroom, 2-Bedroom residence features an oversized yard and a long driveway affording plenty of parking. Upon entering, bask in the beautiful foyer, enhancing the overall aesthetic of the home. The seamless design effortlessly connects the living, dining, and kitchen area, creating an alluring ambiance perfect for hosting guests or unwinding with family. The well-appointed kitchen has all you need to prepare your culinary masterpieces, boasting granite countertops, new sleek stainless-steel appliances, and a breakfast nook. The convenience of a laundry room off the kitchen adds to the practicality of the layout. Additional enhancements includes a brand new HVAC System (2025) with a 10 Year Warranty. The Owner’s Suite offers a peaceful oasis to relax and unwind and benefits from a walk-in closet, a private En-Suite Bathroom, with his and her vanity, a garden tub, and a separate stand-alone shower. The additional bedrooms are versatile and perfect for accommodating family members, guests, or can be converted into a home office or gym. Outside you can relish in the privacy of your extended covered lanai by enjoying coffee conversations or a peaceful Florida afternoon. Strategically positioned near US-27, I-4, Disney, Tampa, Orlando, Parks, Shopping & dinning; owning this gem ensures seamless connectivity to the pulse of the city!
Listing Information
Property Type: Residential, Single Family Residence
Status: Active
Bedrooms: 4
Bathrooms: 2
Lot Size: 0.27 Acres
Square Feet: 1,879 sq ft
Year Built: 2013
Garage: Yes
Stories: 1 Story
Construction: Stucco
Subdivision: Mabel Loop Ridge Sub
Foundation: Slab
County: Polk
Room Information
Main Floor
Primary Bedroom:
Living Room:
Kitchen:
Bathrooms
Full Baths: 2
Additonal Room Information
Laundry: Laundry Room
Interior Features
Appliances: Washer, Dishwasher, Dryer, Microwave, Range, Refrigerator
Flooring: Ceramic Tile
Additional Interior Features: Ceiling Fan(s), Eat-In Kitchen, Walk-In Closet(s)
Utilities
Water: Public
Sewer: Public Sewer
Other Utilities: Electricity Connected
Cooling: Central Air, Ceiling Fan(s)
Heating: Central
Exterior / Lot Features
Attached Garage: Attached Garage
Garage Spaces: 2
Parking Description: driveway, Oversized
Roof: Shingle
Additional Exterior/Lot Features: Sprinkler/Irrigation, Screened, Covered, Corner Lot, Oversized Lot
Community Features
Community Features: Sidewalks
Homeowners Association: Yes
HOA Dues: $410 / Annually
Driving Directions
North on US 27, Turn Right onto Dundee Rd. Left on Lake Trask Rd., Turn into Lake Mabel Loop Rd. Left onto Sandhurst Pl. Turn onto Lynrock Ave, the home is on the left.
Financial Considerations
Terms: Cash,Conventional,FHA,USDA Loan,VA Loan
Tax/Property ID: 27-28-26-835302-000870
Tax Amount: 3128.33
Tax Year: 2024
A broker reciprocity listing courtesy: RE/MAX SELECT GROUP
Based on information provided by Stellar MLS as distributed by the MLS GRID. Information from the Internet Data Exchange is provided exclusively for consumers’ personal, non-commercial use, and such information may not be used for any purpose other than to identify prospective properties consumers may be interested in purchasing. This data is deemed reliable but is not guaranteed to be accurate by Edina Realty, Inc., or by the MLS. Edina Realty, Inc., is not a multiple listing service (MLS), nor does it offer MLS access.
Copyright 2025 Stellar MLS as distributed by the MLS GRID. All Rights Reserved.
Payment Calculator
Interest rate and annual percentage rate (APR) are based on current market conditions, are for informational purposes only, are subject to change without notice and may be subject to pricing add-ons related to property type, loan amount, loan-to-value, credit score and other variables. Estimated closing costs used in the APR calculation are assumed to be paid by the borrower at closing. If the closing costs are financed, the loan, APR and payment amounts will be higher. If the down payment is less than 20%, mortgage insurance may be required and could increase the monthly payment and APR. Contact us for details. Additional loan programs may be available. Accuracy is not guaranteed, and all products may not be available in all borrower's geographical areas and are based on their individual situation. This is not a credit decision or a commitment to lend.
Sales History & Tax Summary for 3509 Spring Creek Road
Sales History
| Date | Price | Change |
|---|---|---|
| Currently not available. | ||
Tax Summary
| Tax Year | Estimated Market Value | Total Tax |
|---|---|---|
| Currently not available. | ||
Data powered by ATTOM Data Solutions. Copyright© 2025. Information deemed reliable but not guaranteed.
Schools
Schools nearby 3509 Spring Creek Road
| Schools in attendance boundaries | Grades | Distance | Rating |
|---|---|---|---|
| Loading... | |||
| Schools nearby | Grades | Distance | Rating |
|---|---|---|---|
| Loading... | |||
Data powered by ATTOM Data Solutions. Copyright© 2025. Information deemed reliable but not guaranteed.
The schools shown represent both the assigned schools and schools by distance based on local school and district attendance boundaries. Attendance boundaries change based on various factors and proximity does not guarantee enrollment eligibility. Please consult your real estate agent and/or the school district to confirm the schools this property is zoned to attend. Information is deemed reliable but not guaranteed.
SchoolDigger ® Rating
The SchoolDigger rating system is a 1-5 scale with 5 as the highest rating. SchoolDigger ranks schools based on test scores supplied by each state's Department of Education. They calculate an average standard score by normalizing and averaging each school's test scores across all tests and grades.
Coming soon properties will soon be on the market, but are not yet available for showings.