3522 57th Avenue Circle W Bradenton, FL 34210
Pending MLS# A4640473
3 beds 2 baths 1,386 sq ft Single Family
Details for 3522 57th Avenue Circle W
MLS# A4640473
Description for 3522 57th Avenue Circle W, Bradenton, FL, 34210
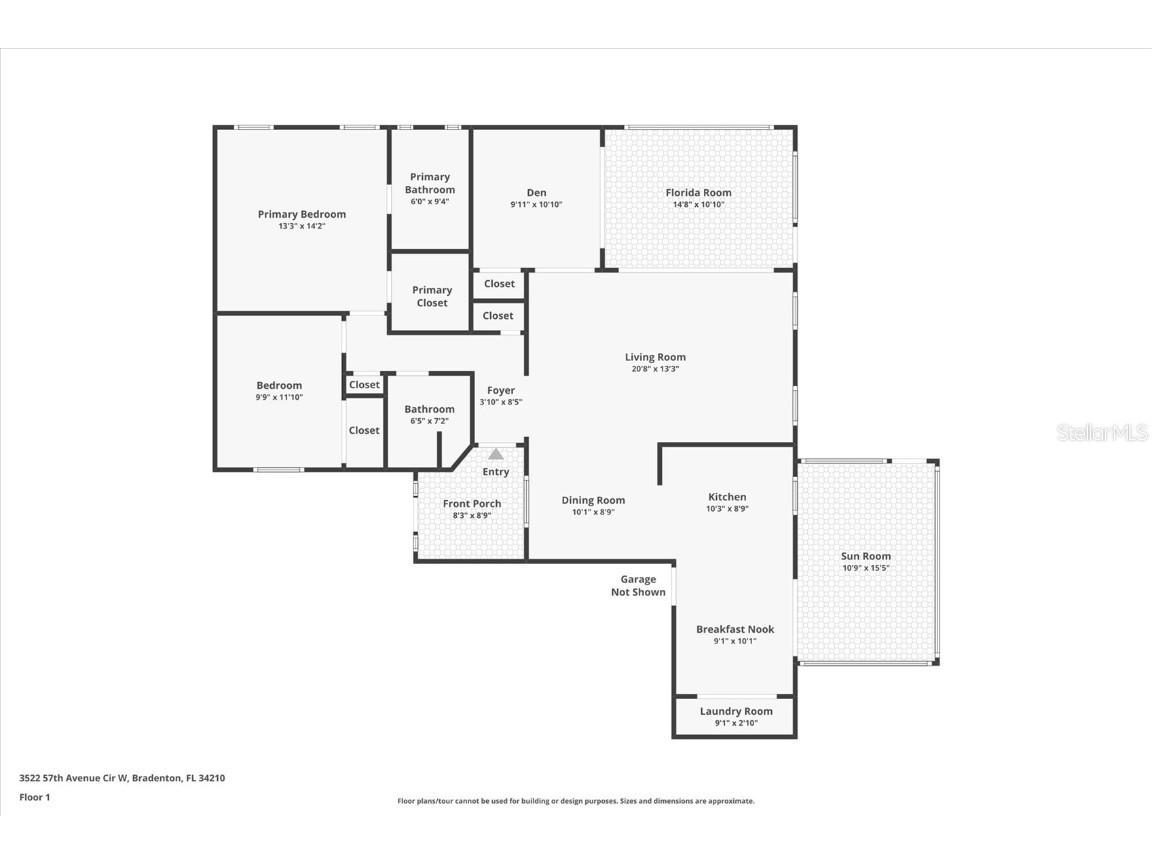
Welcome to this beautifully maintained 3-bedroom, 2-bathroom villa offering a serene and peaceful pond view and NEW ROOF IN NOV 2025. Perfectly designed for comfort, this home features a spacious layout with vaulted ceilings, creating a bright and open atmosphere throughout. The oversized 1-car garage provides plenty of storage, while the screened lanai with vinyl panels ensures year-round enjoyment, no matter the weather. Located in the popular Lakebridge community, a prime spot with easy access to plenty of shopping, dining, and entertainment options. This residence is also just a short drive from IMG Academy, making it an ideal choice for those seeking convenience and fun. Whether you're enjoying the peaceful pond view, partaking of a game of tennis or a swim in the community pool or exploring the nearby amenities, this villa offers the perfect balance of comfort and location. Don’t miss out on this fantastic opportunity to own a truly well-maintained home in an unbeatable location!
Listing Information
Property Type: Residential, Villa
Status: Pending
Bedrooms: 3
Bathrooms: 2
Lot Size: 0.07 Acres
Square Feet: 1,386 sq ft
Year Built: 1992
Garage: Yes
Stories: 1 Story
Construction: Block,Stucco
Subdivision: Lakebridge
Foundation: Slab
County: Manatee
Room Information
Main Floor
Porch: 15.8x10.4
Bedroom 3: 10.9x9.11
Bedroom 2: 11.7x9.7
Primary Bedroom: 14.2x13
Florida Room: 15.1x11.1
Dinette: 9.3x9
Kitchen: 10x9
Dining Room: 10.4x9.5
Great Room: 20.9x13.7
Bathrooms
Full Baths: 2
Additonal Room Information
Laundry: Inside, Laundry Closet, In Kitchen
Interior Features
Appliances: Electric Water Heater, Dishwasher, Disposal, Dryer, Microwave, Range, Refrigerator, Washer
Flooring: Carpet,Tile
Doors/Windows: Window Treatments, Shutters
Additional Interior Features: Eat-In Kitchen, Window Treatments, Ceiling Fan(s), Vaulted Ceiling(s), Solid Surface Counters, Walk-In Closet(s)
Utilities
Water: Public
Sewer: Public Sewer
Other Utilities: Cable Available,Electricity Connected,High Speed Internet Available,Municipal Utilities,Water Connected
Cooling: Ceiling Fan(s), Central Air
Heating: Electric, Central
Exterior / Lot Features
Attached Garage: Attached Garage
Garage Spaces: 1
Parking Description: driveway, Oversized, Garage, Garage Door Opener
Roof: Tile, Concrete
Pool: Association, Community
Lot View: Pond,Water
Additional Exterior/Lot Features: Awning(s), Lighting, Storm/Security Shutters, Rear Porch, Screened, Front Porch, Covered, Buyer Approval Required, Outside City Limits
Waterfront Details
Water Front Features: Pond
Community Features
Community Features: Community Mailbox, Gated, Pool, Tennis Court(s), Clubhouse
Security Features: Gated Community, Smoke Detector(s)
Association Amenities: Tennis Court(s), Pool, Clubhouse, Gated
HOA Dues Include: Common Areas, Maintenance Grounds, Reserve Fund, Road Maintenance, Association Management, Maintenance Structure, Pool(s), Taxes, Recreation Facilities
Driving Directions
Cortez Road or SR 70 (53rd Avenue) to south on 34th Street to right into Lakebridge entrance (57th Ave W). Once through the gate, turn right at stop sign (57th Ave Dr W) and follow around to left on 57th Ave Cir W. 3522 is on the right.
Financial Considerations
Terms: Cash,Conventional
Tax/Property ID: 6145531809
Tax Amount: 1252.37
Tax Year: 2024
A broker reciprocity listing courtesy: MICHAEL SAUNDERS & COMPANY
Based on information provided by Stellar MLS as distributed by the MLS GRID. Information from the Internet Data Exchange is provided exclusively for consumers’ personal, non-commercial use, and such information may not be used for any purpose other than to identify prospective properties consumers may be interested in purchasing. This data is deemed reliable but is not guaranteed to be accurate by Edina Realty, Inc., or by the MLS. Edina Realty, Inc., is not a multiple listing service (MLS), nor does it offer MLS access.
Copyright 2025 Stellar MLS as distributed by the MLS GRID. All Rights Reserved.
Sales History & Tax Summary for 3522 57th Avenue Circle W
Sales History
| Date | Price | Change |
|---|---|---|
| Currently not available. | ||
Tax Summary
| Tax Year | Estimated Market Value | Total Tax |
|---|---|---|
| Currently not available. | ||
Data powered by ATTOM Data Solutions. Copyright© 2025. Information deemed reliable but not guaranteed.
Schools
Schools nearby 3522 57th Avenue Circle W
| Schools in attendance boundaries | Grades | Distance | Rating |
|---|---|---|---|
| Loading... | |||
| Schools nearby | Grades | Distance | Rating |
|---|---|---|---|
| Loading... | |||
Data powered by ATTOM Data Solutions. Copyright© 2025. Information deemed reliable but not guaranteed.
The schools shown represent both the assigned schools and schools by distance based on local school and district attendance boundaries. Attendance boundaries change based on various factors and proximity does not guarantee enrollment eligibility. Please consult your real estate agent and/or the school district to confirm the schools this property is zoned to attend. Information is deemed reliable but not guaranteed.
SchoolDigger ® Rating
The SchoolDigger rating system is a 1-5 scale with 5 as the highest rating. SchoolDigger ranks schools based on test scores supplied by each state's Department of Education. They calculate an average standard score by normalizing and averaging each school's test scores across all tests and grades.
Coming soon properties will soon be on the market, but are not yet available for showings.