3536 Dileuca Street Punta Gorda, FL 33950 - ST. FLORENT CANAL
For Sale MLS# C7520520
3 beds 2 baths 1,958 sq ft Single Family
Details for 3536 Dileuca Street
MLS# C7520520
Description for 3536 Dileuca Street, Punta Gorda, FL, 33950 - ST. FLORENT CANAL
Welcome to your waterfront escape in the highly sought-after Burnt Store Isles community. Tucked away on a quiet street, this beautifully updated 3-bedroom, 2-bathroom, 2-car garage pool home offers the ideal blend of comfort, style, and true Florida boating lifestyle. Perfectly positioned on the St. Florent Canal, enjoy less than 25 minutes to open water, making this home a dream for boating enthusiasts. Inside, the light-filled layout is designed for effortless living and entertaining. The large kitchen is perfect for gatherings, featuring granite countertops and a clear view of the pool and patio, allowing you to stay connected with guests while hosting. Recent improvements that enhance comfort while enjoying the home’s stunning views include a new HVAC system installed in 2019, providing year-round reliability and efficiency. The spacious primary suite serves as a private retreat, highlighted by a remodeled walk-in shower completed in 2024 and a fully renovated primary bathroom finished in 2025, offering a refined, spa-inspired experience. Step outside to your own slice of paradise. The screened pool was completely refinished in 2023 with new coping, while the new pool heater, pump, and pool light installed in 2018 allow for enjoyment in every season. Elegant paver upgrades added in 2019 enhance both curb appeal and outdoor entertaining spaces, all set against peaceful canal views. Boaters will appreciate the private dock and 10,000-lb boat lift installed in 2018, providing quick and easy access to Charlotte Harbor and the Gulf of Mexico beyond. Whether heading out for a sunset cruise or a day on the water, this home delivers the waterfront lifestyle Punta Gorda Isles is known for. Ideally located just minutes from historic downtown Punta Gorda, Fishermen’s Village, waterfront dining, shopping, golf, and community events, this exceptional property offers the perfect balance of luxury, location, and relaxed coastal living.
Listing Information
Property Type: Residential, Single Family Residence
Status: Active
Bedrooms: 3
Bathrooms: 2
Lot Size: 0.23 Acres
Square Feet: 1,958 sq ft
Year Built: 1983
Garage: Yes
Stories: 1 Story
Construction: Block,Stucco
Subdivision: Punta Gorda Isles Sec 15
Foundation: Slab
County: Charlotte
School Information
Elementary: Sallie Jones Elementary
Middle: Punta Gorda Middle
High: Charlotte High
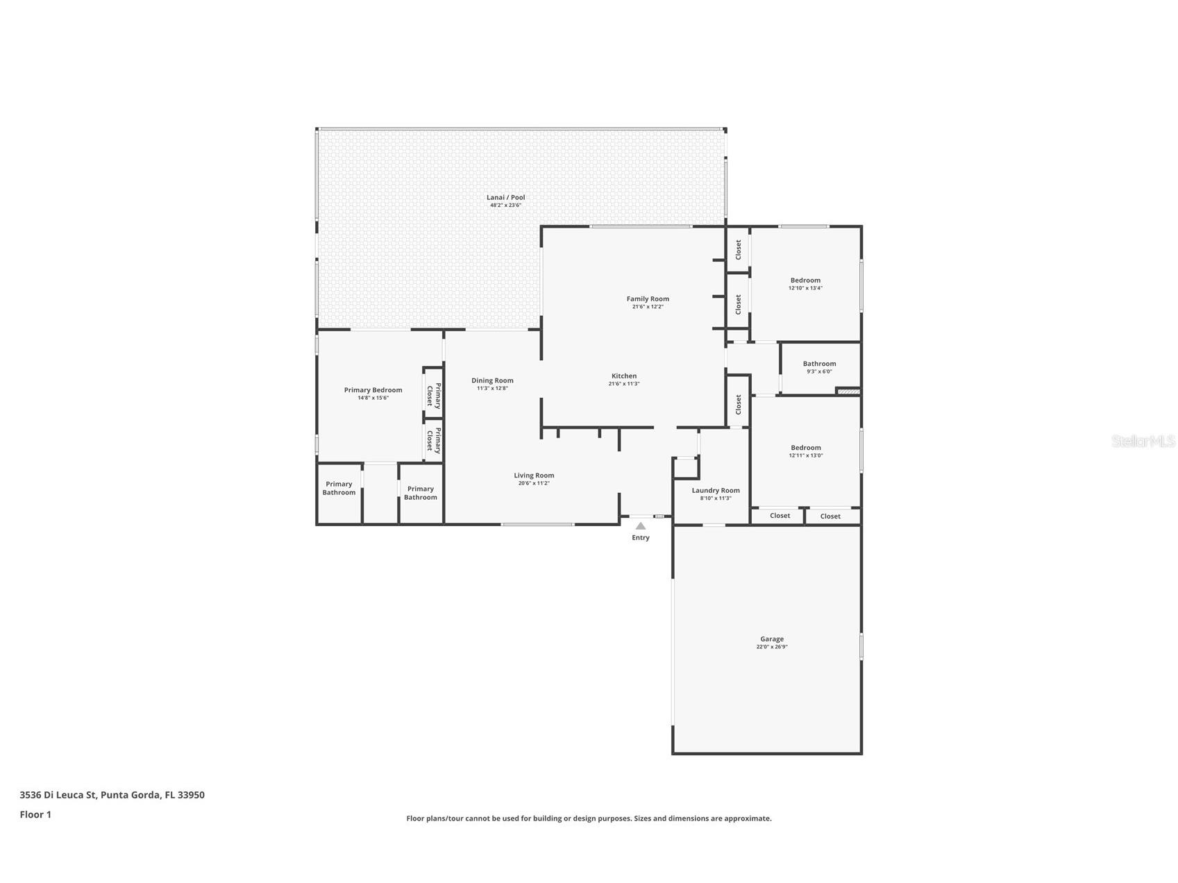
Room Information
Main Floor
Porch: 23.5x48.25
Living Room: 11.25x20.5
Bedroom 2: 13x13
Bathroom 1: 13.25x9.25
Bedroom 1: 13.25x12.75
Primary Bathroom: 14.75x6
Primary Bedroom: 15.5x14.75
Family Room: 12.25x21.5
Kitchen: 11.25x21.5
Dining Room: 12.75x11.25
Bathrooms
Full Baths: 2
Additonal Room Information
Laundry: Laundry Room, Inside
Interior Features
Appliances: Electric Water Heater, Microwave, Dishwasher, Disposal, Dryer, Refrigerator, Washer, Wine Refrigerator
Flooring: Carpet,Tile
Additional Interior Features: Eat-In Kitchen, Ceiling Fan(s), Split Bedrooms, Walk-In Closet(s), Living/Dining Room, Built-in Features, Stone Counters, Kitchen/Family Room Combo, Dry Bar, Wood Cabinets
Utilities
Water: Public
Sewer: Public Sewer
Other Utilities: Electricity Connected,High Speed Internet Available,Sewer Connected,Water Connected
Cooling: Ceiling Fan(s), Central Air
Heating: Central, Electric
Exterior / Lot Features
Attached Garage: Attached Garage
Garage Spaces: 2
Roof: Tile
Pool: Heated, Screen Enclosure, Gunite
Lot View: Bay,Canal,Ocean,Water
Additional Exterior/Lot Features: Storm/Security Shutters, Rain Gutters, Rear Porch, Porch, Landscaped
Waterfront Details
Standard Water Body: ST. FLORENT CANAL
Water Front Features: Canal Access, Bay Access, Gulf Access
Driving Directions
Head west from US-41 into the Burnt Store Isles neighborhood by turning onto Monaco Drive. Follow Monaco Drive a short distance and then turn right onto Tripoli Boulevard. Continue on Tripoli for a bit until you see Di Leuca Street, then turn right onto Di Leuca Street. Follow Di Leuca until you reach 3536 Di Leuca St on your right in the residential area.
Financial Considerations
Terms: Cash,Conventional,FHA,VA Loan
Tax/Property ID: 412319235013
Tax Amount: 9421.54
Tax Year: 2025
A broker reciprocity listing courtesy: GRANT TEAM REAL ESTATE, LLC
Based on information provided by Stellar MLS as distributed by the MLS GRID. Information from the Internet Data Exchange is provided exclusively for consumers’ personal, non-commercial use, and such information may not be used for any purpose other than to identify prospective properties consumers may be interested in purchasing. This data is deemed reliable but is not guaranteed to be accurate by Edina Realty, Inc., or by the MLS. Edina Realty, Inc., is not a multiple listing service (MLS), nor does it offer MLS access.
Copyright 2026 Stellar MLS as distributed by the MLS GRID. All Rights Reserved.
Payment Calculator
Interest rate and annual percentage rate (APR) are based on current market conditions, are for informational purposes only, are subject to change without notice and may be subject to pricing add-ons related to property type, loan amount, loan-to-value, credit score and other variables. Estimated closing costs used in the APR calculation are assumed to be paid by the borrower at closing. If the closing costs are financed, the loan, APR and payment amounts will be higher. If the down payment is less than 20%, mortgage insurance may be required and could increase the monthly payment and APR. Contact us for details. Additional loan programs may be available. Accuracy is not guaranteed, and all products may not be available in all borrower's geographical areas and are based on their individual situation. This is not a credit decision or a commitment to lend.
Sales History & Tax Summary for 3536 Dileuca Street
Sales History
| Date | Price | |
|---|---|---|
| Currently not available. | ||
Tax Summary
| Tax Year | Estimated Market Value | Total Tax |
|---|---|---|
| Currently not available. | ||
Data powered by ATTOM Data Solutions. Copyright© 2026. Information deemed reliable but not guaranteed.
Schools
Schools nearby 3536 Dileuca Street
| Schools in attendance boundaries | Grades | Distance | Rating |
|---|---|---|---|
| Loading... | |||
| Schools nearby | Grades | Distance | Rating |
|---|---|---|---|
| Loading... | |||
Data powered by ATTOM Data Solutions. Copyright© 2026. Information deemed reliable but not guaranteed.
The schools shown represent both the assigned schools and schools by distance based on local school and district attendance boundaries. Attendance boundaries change based on various factors and proximity does not guarantee enrollment eligibility. Please consult your real estate agent and/or the school district to confirm the schools this property is zoned to attend. Information is deemed reliable but not guaranteed.
SchoolDigger ® Rating
The SchoolDigger rating system is a 1-5 scale with 5 as the highest rating. SchoolDigger ranks schools based on test scores supplied by each state's Department of Education. They calculate an average standard score by normalizing and averaging each school's test scores across all tests and grades.
Coming soon properties will soon be on the market, but are not yet available for showings.