35548 Brick Church Loop Dade City, FL 33525
For Sale MLS# TB8427465
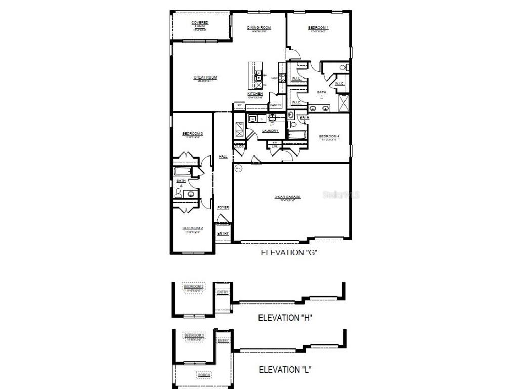
4 beds 3 baths 2,336 sq ft Single Family
Details for 35548 Brick Church Loop
MLS# TB8427465
Description for 35548 Brick Church Loop, Dade City, FL, 33525
One or more photo(s) has been virtually staged. Under Construction. The builder is offering buyers up to $25,000 towards closing costs with the use of a preferred lender and title company. Summit View, a beautiful new home community located off Happy Hill Road in Dade City, Florida. Nestled among the scenic rolling hills of Pasco County, Summit View offers a perfect blend of small-town charm and modern convenience. This community provides easy access to historic downtown Dade City, the Farmers Market and Lagoon at Mirada, Saint Leo University, and nearby golf courses like the Abbey Golf Course and Lake Jovita Golf and Country Club. While Summit View offers a peaceful retreat from the busier areas of Wesley Chapel, residents are close enough to enjoy its abundant shopping, dining, and entertainment options. Explore destinations like the Tampa Premium Outlets, Wiregrass Mall, KRATE at The Grove, and more—all just a short drive away. Additionally, the brand-new SR-52 extension ensures convenient access to Downtown Tampa, St. Petersburg, and Clearwater for work or leisure. The upcoming resort-style amenities at Summit View include two pickleball courts, a half basketball court, tot lot, pool, a covered cabana with outdoor gathering areas, and a dog park—perfect for creating a close-knit community feel. Summit View features thoughtfully designed, open-concept floorplans to suit every lifestyle. Each home is built with durable concrete block construction on the first and second stories and includes D.R. Horton’s Smart Home System for seamless modern living. Pictures, photographs, colors, features, and sizes are for illustration purposes only and will vary from the homes as built. Home and community information, including pricing, included features, terms, availability, and amenities, are subject to change and prior sale at any time without notice or obligation. Materials may vary based on availability. D.R. Horton Reserves all Rights.
Listing Information
Property Type: Residential, Single Family Residence
Status: Active
Bedrooms: 4
Bathrooms: 3
Lot Size: 0.16 Acres
Square Feet: 2,336 sq ft
Year Built: 2025
Garage: Yes
Stories: 1 Story
Construction: Block,Stucco
Construction Display: New Construction
Subdivision: Summit View
Builder: D.R.Horton
Foundation: Slab
County: Pasco
Construction Status: Under Construction
School Information
Elementary: San Antonio-Po
Middle: Pasco Middle-Po
High: Pasco High-Po
Room Information
Main Floor
Primary Bedroom: 13x17
Kitchen: 13x10
Great Room: 19x20
Bathrooms
Full Baths: 3
Additonal Room Information
Laundry: Laundry Room
Interior Features
Appliances: Range, Refrigerator, Washer, Dishwasher, Dryer, Microwave
Flooring: Carpet,Ceramic Tile,Tile
Doors/Windows: Low-Emissivity Windows, Blinds
Additional Interior Features: Open Floorplan
Utilities
Water: Public
Sewer: Public Sewer
Other Utilities: Municipal Utilities,Underground Utilities
Cooling: Central Air
Heating: Central, Heat Pump
Exterior / Lot Features
Attached Garage: Attached Garage
Garage Spaces: 3
Roof: Shingle
Pool: Community, Association, Other
Additional Exterior/Lot Features: Sprinkler/Irrigation
Community Features
Community Features: Pool, Park
Association Amenities: Pool, Clubhouse, Basketball Court
Homeowners Association: Yes
HOA Dues: $38 / Monthly
Driving Directions
Via I-75, take exit 285 toward Dade City/San Antonio. For less than half a mile, keep right to merge onto State Road 52 E. Keep right to stay on SR 52 for 5.3 miles. Turn left onto State Hwy 579/Happy Hill Rd. and continue for 1.1 miles. Turn right onto Ramapo Mountain Dr. to Mount Ivy Ct. to the model.
Financial Considerations
Tax/Property ID: 32-24-21-0050-00000-1570
Tax Year: 2025
A broker reciprocity listing courtesy: D R HORTON REALTY OF TAMPA LLC
Based on information provided by Stellar MLS as distributed by the MLS GRID. Information from the Internet Data Exchange is provided exclusively for consumers’ personal, non-commercial use, and such information may not be used for any purpose other than to identify prospective properties consumers may be interested in purchasing. This data is deemed reliable but is not guaranteed to be accurate by Edina Realty, Inc., or by the MLS. Edina Realty, Inc., is not a multiple listing service (MLS), nor does it offer MLS access.
Copyright 2025 Stellar MLS as distributed by the MLS GRID. All Rights Reserved.
Payment Calculator
Interest rate and annual percentage rate (APR) are based on current market conditions, are for informational purposes only, are subject to change without notice and may be subject to pricing add-ons related to property type, loan amount, loan-to-value, credit score and other variables. Estimated closing costs used in the APR calculation are assumed to be paid by the borrower at closing. If the closing costs are financed, the loan, APR and payment amounts will be higher. If the down payment is less than 20%, mortgage insurance may be required and could increase the monthly payment and APR. Contact us for details. Additional loan programs may be available. Accuracy is not guaranteed, and all products may not be available in all borrower's geographical areas and are based on their individual situation. This is not a credit decision or a commitment to lend.
Sales History & Tax Summary for 35548 Brick Church Loop
Sales History
| Date | Price | Change |
|---|---|---|
| Currently not available. | ||
Tax Summary
| Tax Year | Estimated Market Value | Total Tax |
|---|---|---|
| Currently not available. | ||
Data powered by ATTOM Data Solutions. Copyright© 2025. Information deemed reliable but not guaranteed.
Schools
Schools nearby 35548 Brick Church Loop
| Schools in attendance boundaries | Grades | Distance | Rating |
|---|---|---|---|
| Loading... | |||
| Schools nearby | Grades | Distance | Rating |
|---|---|---|---|
| Loading... | |||
Data powered by ATTOM Data Solutions. Copyright© 2025. Information deemed reliable but not guaranteed.
The schools shown represent both the assigned schools and schools by distance based on local school and district attendance boundaries. Attendance boundaries change based on various factors and proximity does not guarantee enrollment eligibility. Please consult your real estate agent and/or the school district to confirm the schools this property is zoned to attend. Information is deemed reliable but not guaranteed.
SchoolDigger ® Rating
The SchoolDigger rating system is a 1-5 scale with 5 as the highest rating. SchoolDigger ranks schools based on test scores supplied by each state's Department of Education. They calculate an average standard score by normalizing and averaging each school's test scores across all tests and grades.
Coming soon properties will soon be on the market, but are not yet available for showings.