$589,900
35647 Oxford Avenue Chisago Lake Twp, MN 55012
For Sale MLS# 6782638
Other
Details for 35647 Oxford Avenue
MLS# 6782638
Description for 35647 Oxford Avenue, Chisago Lake Twp, MN, 55012
Welcome to Trophy Lake Estates III — an exclusive gated water ski community where modern architecture meets serene lakefront living.This striking custom home sits on a protected Monarch Butterfly Sanctuary lot and boasts direct access to a fully stocked, private waterski lake — offering rare privacy, recreation, and tranquility just minutes outside the metro.Property Features Include:• Soaring 24’ vaulted ceilings with panoramic lakeshore views• Bright, open-concept layout flooded with natural light• Lofted primary suite with spa bath + oversized walk-in closet• Sleek, modern kitchen with clean lines • Slab-on-grade layout — no stairs to main living!Need a 3rd Bedroom?Here’s the opportunity: the screened-in porch is already built on the main foundation slab, making it a prime candidate for conversion into a third bedroom, office, or flex space. This easy upgrade provides immediate value and flexibility — perfect for buyers needing that extra room.Community Highlights:• Private ski lake stocked with walleye, smallmouth & largemouth bass• Exclusive resident use of a 2022 Malibu ski boat w/HOA Membership• Sand volleyball, basketball and tennis courts, baseball field, and more• Low HOA dues packed with lifestyle perks• Secure gated access and a peaceful, close-knit neighborhoodWhy This Home Stands Out:Unlike typical lakefront listings on Forest Lake or the Chisago Chain, this property offers a quieter, more private lifestyle with serious amenities — without the noise and congestion of a public lake.Showings Strongly EncouragedThis is not a drive-by home as it is a gated community. You must experience it in person to appreciate the layout, views, and lifestyle. Photos and videos can only show so much — the feel of this community and property is what truly sets it apart.Schedule a Private Tour TodayDon’t wait — call your agent or reach out directly to book a showing. Let’s walk the property, explore the 3-bedroom option, and talk through how this home could be the right fit for your lifestyle now and for years to come.
Listing Information
Property Type: Single Family
Status: Active
Bedrooms: 2
Bathrooms: 2
Lot Size: 1.01 Acres
Square Feet: 1,695 sq ft
Year Built: 2022
Foundation: 1,192 sq ft
Garage: Yes
Stories: 2 Stories
Subdivision: Trophy Lake Estates Three
County: Chisago
Days On Market: 117
Construction Status: Previously Owned
School Information
District: 2144 - Chisago Lakes
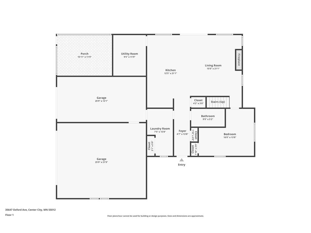
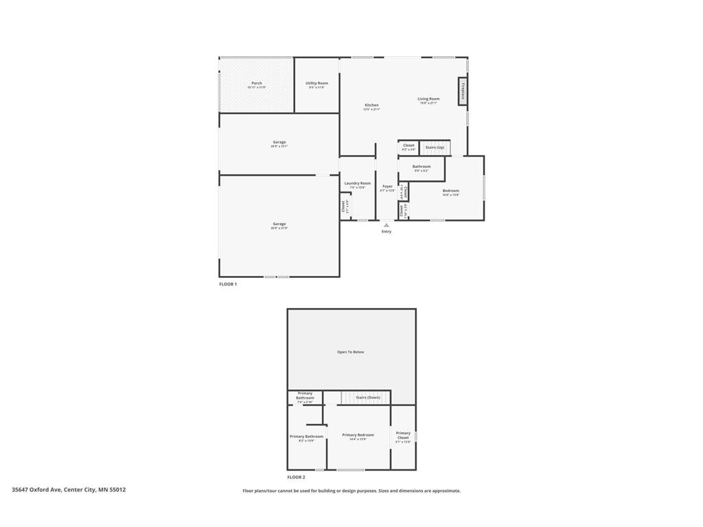
Room Information
Main Floor
Bathroom: 10x6
Bedroom 2: 14x12
Dining Room: 12 x 12
Kitchen: 14x10
Living Room: 18x18
Screened Porch: 16x12
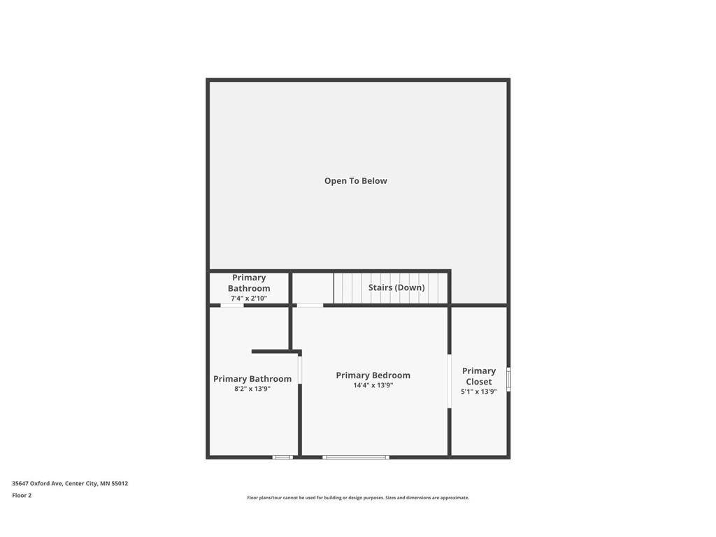
Upper Floor
Bathroom: 18x7
Bedroom 1: 15x18
Bathrooms
Full Baths: 1
3/4 Baths: 1
Additonal Room Information
Other: Laundry (16x6)
Family: 2 Story/High/Vaulted Ceilings,Main Level
Dining: Breakfast Area,Breakfast Bar,Eat In Kitchen,Kitchen/Dining Room,Living/Dining Room
Laundry: Laundry Closet, Laundry Room, Main Level, Sink
Bath Description: Double Sink,Bathroom Ensuite,Full Primary,Main Floor 3/4 Bath,Private Primary,Separate Tub & Shower,Upper Level Full Bath,Walk-In Shower Stall
Interior Features
Square Footage above: 1,695 sq ft
Appliances: Washer, Water Softener - Owned, Gas Water Heater, Stainless Steel Appliances, Range, Refrigerator, Furnace Humidifier, Microwave, Air-To-Air Exchanger, Dishwasher, Disposal, Dryer, Exhaust Fan/Hood
Fireplaces: 1, Living Room, Gas Burning
Accessibility: No Stairs External, Doors 36+, Hallways 42+
Additional Interior Features: Kitchen Window, Ceiling Fan(s), Vaulted Ceiling(s), Main Floor Laundry, Kitchen Center Island, Washer/Dryer Hookup, Walk-In Closet, Main Floor Bedroom, All Living Facilities on One Level, Primary Bdr Suite
Utilities
Water: Shared System
Sewer: Shared System
Cooling: Central
Heating: Forced Air, Natural Gas
Exterior / Lot Features
Attached Garage: Attached Garage
Garage Spaces: 3
Open Parking: 5
Parking Description: Garage Door Opener, Driveway - Asphalt, Heated Garage, Insulated Garage, Attached Garage, Garage Dimensions - 26 x 36, Garage Door Height - 7, Garage Sq Ft - 936.0
Exterior: Vinyl
Roof: Asphalt Shingles
Lot View: Lake,North,Panoramic
Lot Dimensions: 211x230x131x308
Zoning: Residential-Single Family,Shoreline
Additional Exterior/Lot Features: Tennis Court, Porch, Patio, Dock, Accessible Shoreline, Tree Coverage - Light, Road Frontage - Paved Streets
Waterfront Details
Boat Facilities: Boat Facilities
DNR Lake ID: 999999999
Water Front Features: Dock, Lake Front
Water Frontage Length: 131 Ft.
Lake Bottom: Sand
Community Features
HOA Dues Include: Controlled Access, Other, Shared Amenities, Water, Sewer
Homeowners Association: Yes
Association Name: TROPHY LAKE ESTATES THREE OWNERS ASSOCIATION
HOA Dues: $115 / Monthly
Driving Directions
Hwy 8 to CR 9, North to Park Trail (CR12), East to 355th, West to Patriot. Go thru gate take 1st left onto 356th St to 35647 Oxford Ave
Financial Considerations
Other Annual Tax: $51
Tax/Property ID: 020036010
Tax Amount: 3701
Tax Year: 2024
HomeStead Description: Homesteaded
A broker reciprocity listing courtesy: RE/MAX Preferred
The data relating to real estate for sale on this web site comes in part from the Broker Reciprocity℠ Program of the Regional Multiple Listing Service of Minnesota, Inc. Real estate listings held by brokerage firms other than Edina Realty, Inc. are marked with the Broker Reciprocity℠ logo or the Broker Reciprocity℠ thumbnail and detailed information about them includes the name of the listing brokers. Edina Realty, Inc. is not a Multiple Listing Service (MLS), nor does it offer MLS access. This website is a service of Edina Realty, Inc., a broker Participant of the Regional Multiple Listing Service of Minnesota, Inc. IDX information is provided exclusively for consumers personal, non-commercial use and may not be used for any purpose other than to identify prospective properties consumers may be interested in purchasing. Open House information is subject to change without notice. Information deemed reliable but not guaranteed.
Copyright 2025 Regional Multiple Listing Service of Minnesota, Inc. All Rights Reserved.
Payment Calculator
Interest rate and annual percentage rate (APR) are based on current market conditions, are for informational purposes only, are subject to change without notice and may be subject to pricing add-ons related to property type, loan amount, loan-to-value, credit score and other variables. Estimated closing costs used in the APR calculation are assumed to be paid by the borrower at closing. If the closing costs are financed, the loan, APR and payment amounts will be higher. If the down payment is less than 20%, mortgage insurance may be required and could increase the monthly payment and APR. Contact us for details. Additional loan programs may be available. Accuracy is not guaranteed, and all products may not be available in all borrower's geographical areas and are based on their individual situation. This is not a credit decision or a commitment to lend.
Sales History & Tax Summary for 35647 Oxford Avenue
Sales History
| Date | Price | Change |
|---|---|---|
| Currently not available. | ||
Tax Summary
| Tax Year | Estimated Market Value | Total Tax |
|---|---|---|
| Currently not available. | ||
Data powered by ATTOM Data Solutions. Copyright© 2025. Information deemed reliable but not guaranteed.
Schools
Schools nearby 35647 Oxford Avenue
| Schools in attendance boundaries | Grades | Distance | Rating |
|---|---|---|---|
| Loading... | |||
| Schools nearby | Grades | Distance | Rating |
|---|---|---|---|
| Loading... | |||
Data powered by ATTOM Data Solutions. Copyright© 2025. Information deemed reliable but not guaranteed.
The schools shown represent both the assigned schools and schools by distance based on local school and district attendance boundaries. Attendance boundaries change based on various factors and proximity does not guarantee enrollment eligibility. Please consult your real estate agent and/or the school district to confirm the schools this property is zoned to attend. Information is deemed reliable but not guaranteed.
SchoolDigger ® Rating
The SchoolDigger rating system is a 1-5 scale with 5 as the highest rating. SchoolDigger ranks schools based on test scores supplied by each state's Department of Education. They calculate an average standard score by normalizing and averaging each school's test scores across all tests and grades.
Coming soon properties will soon be on the market, but are not yet available for showings.