3565 284th Terrace Branford, FL 32008
Pending MLS# GC535613
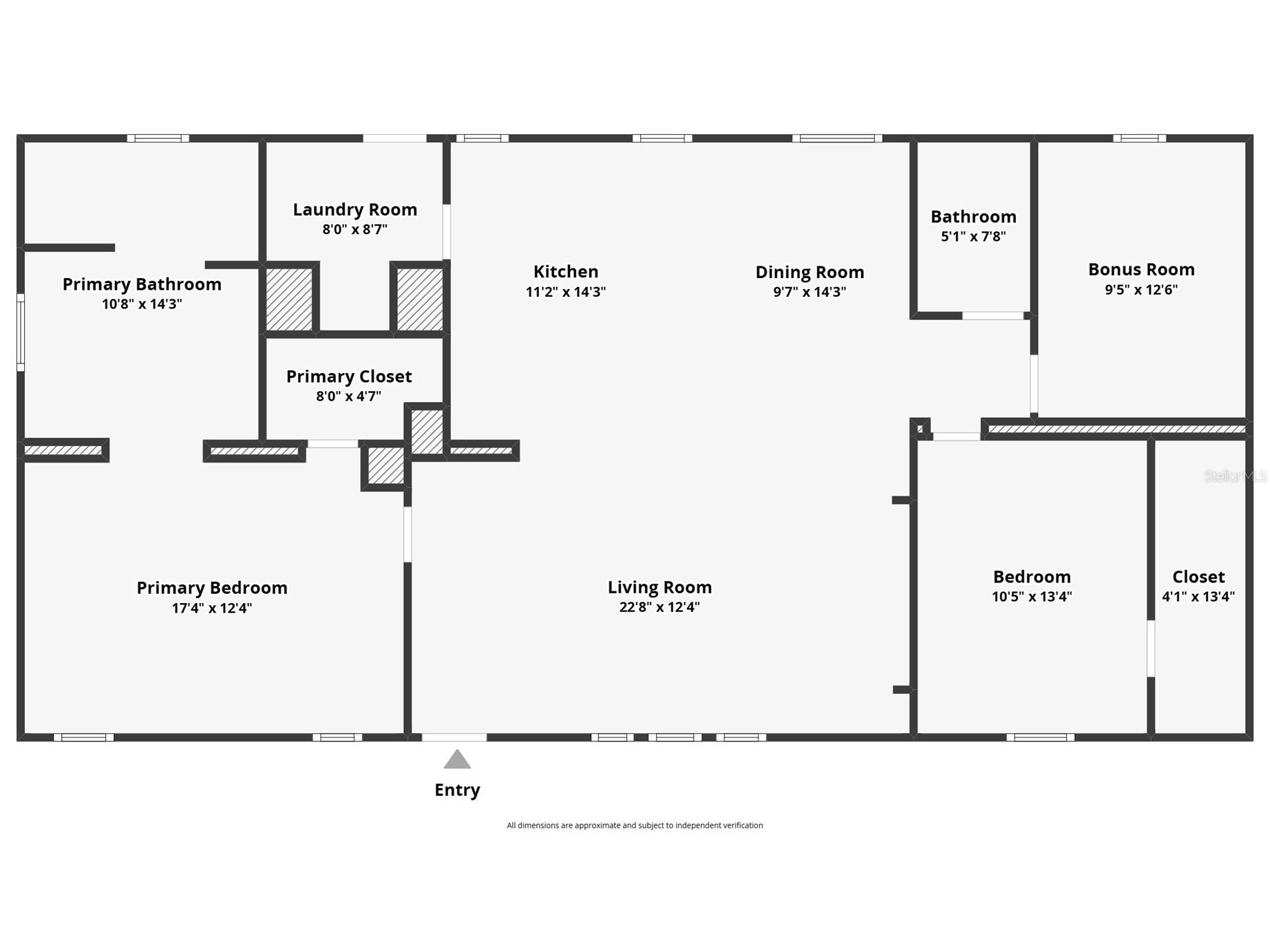
3 beds 2 baths 1,392 sq ft Single Family
Details for 3565 284th Terrace
MLS# GC535613
Description for 3565 284th Terrace, Branford, FL, 32008
Under contract-accepting backup offers. Experience peaceful river-community living on nearly 2 wooded acres in beautiful Three Rivers Estates. This charming, turn-key manufactured home offers the perfect blend of privacy, comfort, and outdoor lifestyle, with deeded access to exclusive boat ramps and parks on the Sante Fe, Ichetucknee, and Suwannee Rivers. Thoughtfully equipped for practical luxury, this property includes a full-service RV hookup for guests or extended stays, a home standby generator for year-round peace of mind, and a 24’x24’ enclosed detached garage ideal for storage, hobbies or recreational equipment! Inside you’ll find an inviting split floor plan with comfortable living spaces, stainless steel appliances, and a layout designed for everyday convenience. Step out onto the screened-in front porch to enjoy your morning coffee, fresh breezes, and frequent wildlife sightings. Surrounded by mature trees and natural beauty, this property offers the serenity of a private retreat while remaining close to North Florida’s most treasured waterways. Whether you’re seeking a full-time residence, weekend escape, or a unique vacation rental investment, this home is move-in ready and perfectly positioned to enjoy the best of Florida’s outdoors.
Listing Information
Property Type: Residential, Manufactured Home
Status: Pending
Bedrooms: 3
Bathrooms: 2
Lot Size: 1.84 Acres
Square Feet: 1,392 sq ft
Year Built: 2021
Garage: Yes
Stories: 1 Story
Construction: Vinyl Siding
Subdivision: Three Rivers Estate
Foundation: Pillar/Post/Pier
County: Suwannee
Room Information
Main Floor
Porch:
Primary Bedroom:
Laundry:
Bedroom 2:
Bedroom 1:
Dining Room:
Kitchen:
Living Room:
Bathroom 1:
Primary Bathroom:
Bathrooms
Full Baths: 2
Additonal Room Information
Laundry: Inside, Laundry Room
Interior Features
Appliances: Dishwasher, Dryer, Microwave, Range, Refrigerator, Washer, Electric Water Heater
Flooring: Carpet,Luxury Vinyl
Doors/Windows: Insulated Windows, Window Treatments, Drapes, Rods, Double Pane Windows
Fireplaces: Electric
Additional Interior Features: Ceiling Fan(s), Open Floorplan, Chair Rail, Window Treatments, Coffered Ceiling(s), Crown Molding
Utilities
Water: Well
Sewer: Septic Tank
Other Utilities: Electricity Connected,High Speed Internet Available
Cooling: Ceiling Fan(s), Central Air
Heating: Electric
Exterior / Lot Features
Garage Spaces: 1
Parking Description: driveway
Roof: Shingle
Lot Dimensions: 400x200
Additional Exterior/Lot Features: Rain Gutters, RV Hookup, Front Porch, Covered, Screened, Flood Zone
Out Buildings: Storage
Waterfront Details
Water Front Features: River Access
Driving Directions
US Hwy 27 east from Town of Branford, turn right onto Hwy 129, turn left onto 284th St, turn right onto 39th Dr, turn left onto 284th Ter.
Financial Considerations
Terms: Cash,Conventional,FHA,VA Loan
Tax/Property ID: 28-06S-15E-01513-760280
Tax Amount: 1931.84
Tax Year: 2024
A broker reciprocity listing courtesy: ENGEL & VOLKERS GAINESVILLE
Based on information provided by Stellar MLS as distributed by the MLS GRID. Information from the Internet Data Exchange is provided exclusively for consumers’ personal, non-commercial use, and such information may not be used for any purpose other than to identify prospective properties consumers may be interested in purchasing. This data is deemed reliable but is not guaranteed to be accurate by Edina Realty, Inc., or by the MLS. Edina Realty, Inc., is not a multiple listing service (MLS), nor does it offer MLS access.
Copyright 2026 Stellar MLS as distributed by the MLS GRID. All Rights Reserved.
Sales History & Tax Summary for 3565 284th Terrace
Sales History
| Date | Price | |
|---|---|---|
| Currently not available. | ||
Tax Summary
| Tax Year | Estimated Market Value | Total Tax |
|---|---|---|
| Currently not available. | ||
Data powered by ATTOM Data Solutions. Copyright© 2026. Information deemed reliable but not guaranteed.
Schools
Schools nearby 3565 284th Terrace
| Schools in attendance boundaries | Grades | Distance | Rating |
|---|---|---|---|
| Loading... | |||
| Schools nearby | Grades | Distance | Rating |
|---|---|---|---|
| Loading... | |||
Data powered by ATTOM Data Solutions. Copyright© 2026. Information deemed reliable but not guaranteed.
The schools shown represent both the assigned schools and schools by distance based on local school and district attendance boundaries. Attendance boundaries change based on various factors and proximity does not guarantee enrollment eligibility. Please consult your real estate agent and/or the school district to confirm the schools this property is zoned to attend. Information is deemed reliable but not guaranteed.
SchoolDigger ® Rating
The SchoolDigger rating system is a 1-5 scale with 5 as the highest rating. SchoolDigger ranks schools based on test scores supplied by each state's Department of Education. They calculate an average standard score by normalizing and averaging each school's test scores across all tests and grades.
Coming soon properties will soon be on the market, but are not yet available for showings.