3565 Clay Brick Road Harmony, FL 34773
For Sale MLS# TB8470753
3 beds 3 baths 1,855 sq ft Condo
OPEN HOUSE: Saturday, 5/30 11:00 AM - 02:00 PM
Details for 3565 Clay Brick Road
MLS# TB8470753
Description for 3565 Clay Brick Road, Harmony, FL, 34773
Welcome to this beautifully renovated 3-bedroom, 2.5-bath condominium located in the peaceful and highly sought-after Harmony community. Updated in 2023 and meticulously maintained, this home offers modern finishes, comfortable living spaces, and a tranquil, nature-rich setting. The kitchen is thoughtfully designed with stainless steel appliances and granite countertops, providing both style and functionality for everyday living and entertaining. The open-concept layout flows seamlessly into the living and dining areas, creating a warm and inviting atmosphere. Upstairs, the generously sized bedrooms offer privacy and comfort, with the primary suite featuring an en-suite bath. The additional half bath adds convenience for guests. Surrounded by scenic lakes, conservation areas, and miles of walking and biking trails, Harmony delivers a lifestyle centered on outdoor living and community connection. Residents enjoy access to parks, pools, and a golf preserve, all while remaining within easy reach of Lake Nona, St. Cloud, and major roadways. This move-in-ready condominium is an excellent opportunity for those seeking a well-updated home in a serene Central Florida setting—where modern living meets natural beauty.
Listing Information
Property Type: Residential, Condominium
Status: Active
Bedrooms: 3
Bathrooms: 3
Lot Size: 0.08 Acres
Square Feet: 1,855 sq ft
Year Built: 2006
Garage: Yes
Stories: 2 Story
Construction: Block,Stucco
Subdivision: Ashley Park At Harmony Condo
Foundation: Slab
County: Osceola
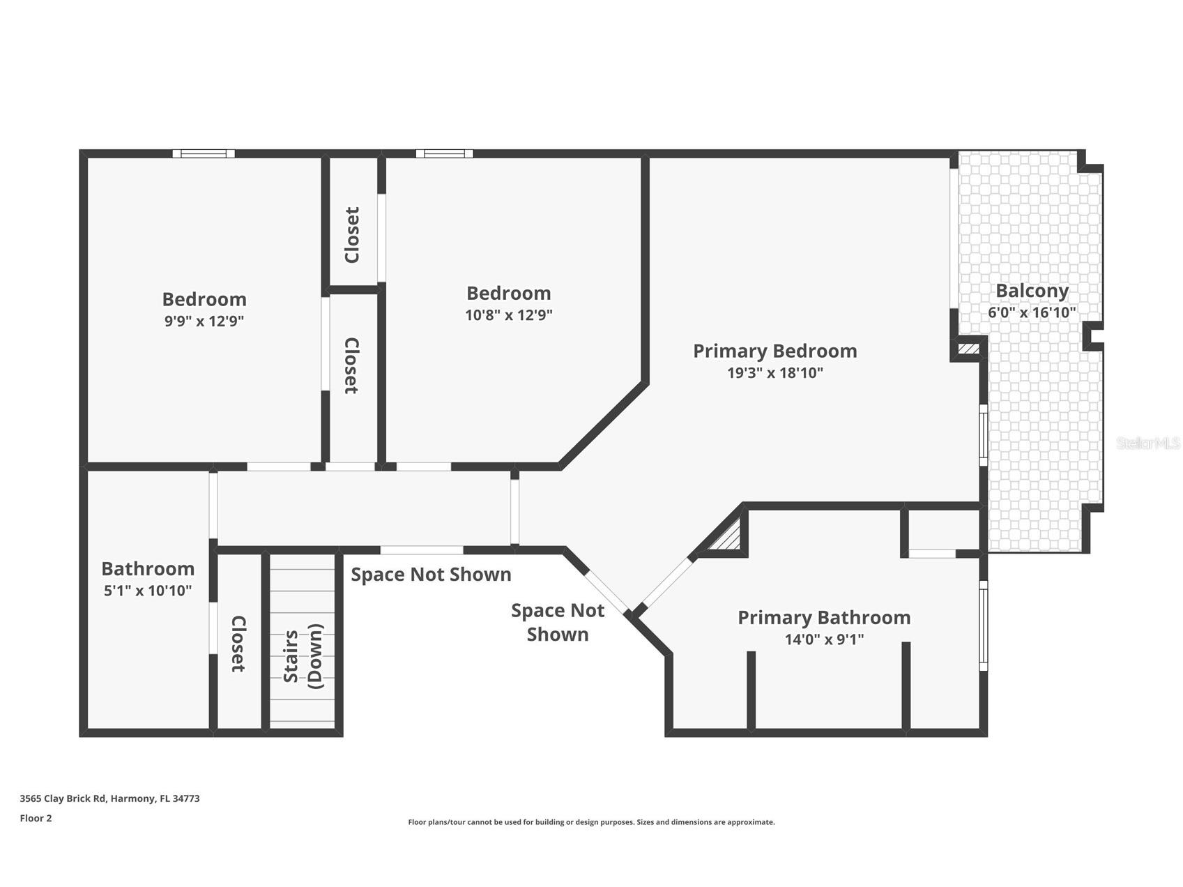
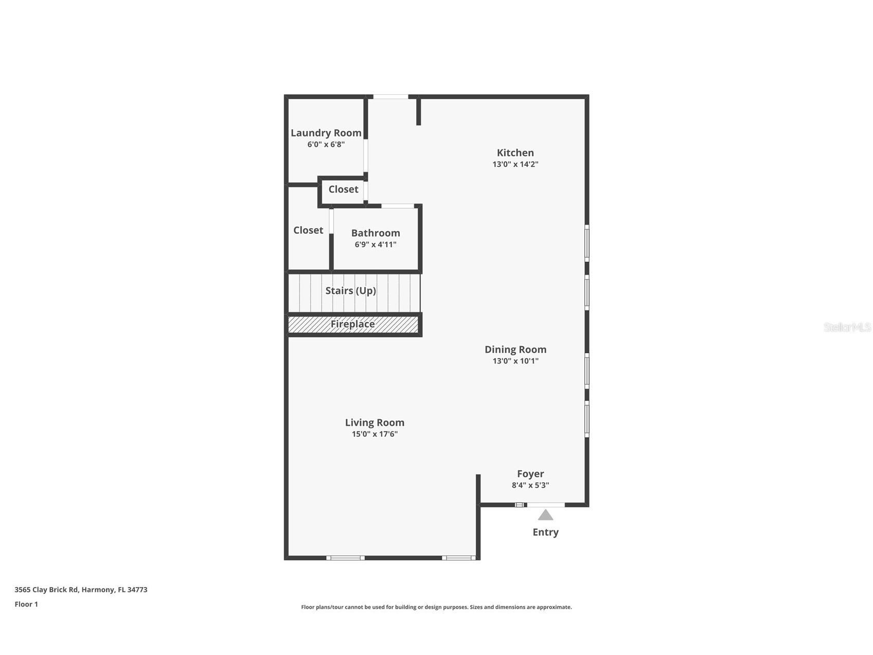
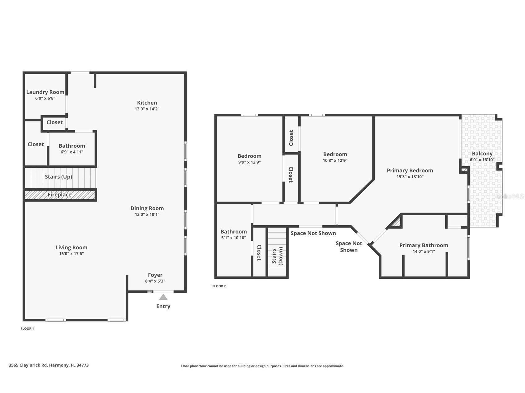
Room Information
Main Floor
Living Room: 17x15
Dining Room: x1310
Laundry: 6x6
Kitchen: 14x13
Upper Floor
Porch: 6x6
Bathroom 2: 10x5
Primary Bathroom: 19x14
Bedroom 3: 2x9
Bedroom 2: 12x10
Primary Bedroom: 18x19
Bathrooms
Full Baths: 2
1/2 Baths: 1
Additonal Room Information
Laundry: Laundry Room
Interior Features
Appliances: Built-In Oven, Range Hood, Washer, Dishwasher, Dryer, Microwave, Range, Refrigerator
Flooring: Tile
Additional Interior Features: Ceiling Fan(s), Eat-In Kitchen, Walk-In Closet(s), Upper Level Primary, Open Floorplan
Utilities
Water: Public
Sewer: Public Sewer
Other Utilities: Cable Available,Electricity Available,High Speed Internet Available,Phone Available,Sewer Available,Water Available
Cooling: Central Air, Ceiling Fan(s)
Heating: Central
Exterior / Lot Features
Attached Garage: Attached Garage
Garage Spaces: 2
Roof: Shingle
Pool: Community
Additional Exterior/Lot Features: Lighting, Sprinkler/Irrigation, Dog Run, Balcony, Balcony, Covered, Front Porch, Landscaped, Near Golf Course, Outside City Limits
Community Features
Community Features: Pool, Playground, Sidewalks, Golf, Park, Fitness, Golf Carts OK
Association Amenities: Park, Playground
HOA Dues Include: Cable TV, Maintenance Grounds, Pool(s)
Driving Directions
From US-192, head east toward Harmony. Turn right onto Harmony Square Dr, then right onto Clay Brick Rd. Continue to 3565 Clay Brick Rd, Unit #47. The property will be on the right.
Financial Considerations
Terms: Cash,Conventional,FHA,VA Loan
Tax/Property ID: 30-26-32-2569-0001-047C
Tax Amount: 4730.48
Tax Year: 2025
A broker reciprocity listing courtesy: LPT REALTY, LLC
Based on information provided by Stellar MLS as distributed by the MLS GRID. Information from the Internet Data Exchange is provided exclusively for consumers’ personal, non-commercial use, and such information may not be used for any purpose other than to identify prospective properties consumers may be interested in purchasing. This data is deemed reliable but is not guaranteed to be accurate by Edina Realty, Inc., or by the MLS. Edina Realty, Inc., is not a multiple listing service (MLS), nor does it offer MLS access.
Copyright 2026 Stellar MLS as distributed by the MLS GRID. All Rights Reserved.
Payment Calculator
Interest rate and annual percentage rate (APR) are based on current market conditions, are for informational purposes only, are subject to change without notice and may be subject to pricing add-ons related to property type, loan amount, loan-to-value, credit score and other variables. Estimated closing costs used in the APR calculation are assumed to be paid by the borrower at closing. If the closing costs are financed, the loan, APR and payment amounts will be higher. If the down payment is less than 20%, mortgage insurance may be required and could increase the monthly payment and APR. Contact us for details. Additional loan programs may be available. Accuracy is not guaranteed, and all products may not be available in all borrower's geographical areas and are based on their individual situation. This is not a credit decision or a commitment to lend.
Sales History & Tax Summary for 3565 Clay Brick Road
Sales History
| Date | Price | |
|---|---|---|
| Currently not available. | ||
Tax Summary
| Tax Year | Estimated Market Value | Total Tax |
|---|---|---|
| Currently not available. | ||
Data powered by ATTOM Data Solutions. Copyright© 2026. Information deemed reliable but not guaranteed.
Schools
Schools nearby 3565 Clay Brick Road
| Schools in attendance boundaries | Grades | Distance | Rating |
|---|---|---|---|
| Loading... | |||
| Schools nearby | Grades | Distance | Rating |
|---|---|---|---|
| Loading... | |||
Data powered by ATTOM Data Solutions. Copyright© 2026. Information deemed reliable but not guaranteed.
The schools shown represent both the assigned schools and schools by distance based on local school and district attendance boundaries. Attendance boundaries change based on various factors and proximity does not guarantee enrollment eligibility. Please consult your real estate agent and/or the school district to confirm the schools this property is zoned to attend. Information is deemed reliable but not guaranteed.
SchoolDigger ® Rating
The SchoolDigger rating system is a 1-5 scale with 5 as the highest rating. SchoolDigger ranks schools based on test scores supplied by each state's Department of Education. They calculate an average standard score by normalizing and averaging each school's test scores across all tests and grades.
Coming soon properties will soon be on the market, but are not yet available for showings.